[content:title] - [content:ext_jb]
入行時間:[content:ext_time] 年 職稱:[content:ext_jb]
項目地址:西北湖中心
項目面積:190㎡
項目風格:新中式風
項目施工:山水人家裝飾
工程造價:40w

本案業主品味出眾,裝修以接待親朋為主,追求初訪即驚艷的“高大上”效果。設計融合東方美學與現代需求,以沉穩木色與米白為基調,營造文化底蘊與當代舒適并重的氛圍。開放式布局呼吸自如,留白如潑墨寫意,最終呈現“晨起推窗見青翠,午后煮茶聽風吟”的詩意境界。
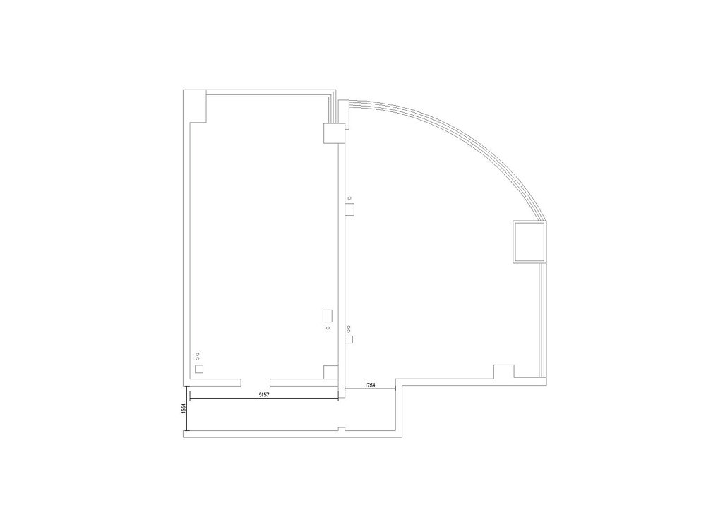
戶型解析

本案戶型方正,采光通透,整體包括兩層。

一層是公共開放區,主要包括客廳、餐廳、茶室、廚房等。整體做開放式設計,動線流暢,能夠為訪客提供舒適體驗。

二層是休息放松區,主要包括臥室、休閑室等。通過踐行動靜分離,保障了二樓休息區的安穩氛圍,同時滿足業主更多生活需求。
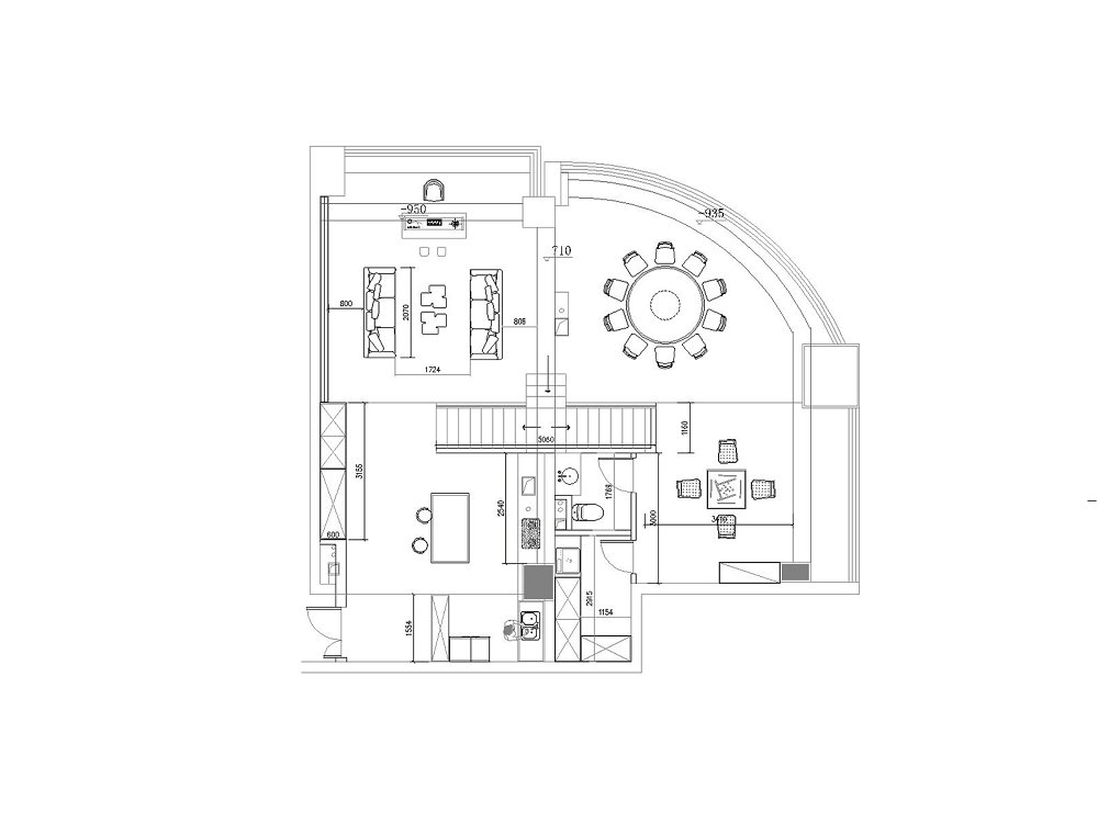
玄關

初進門,便見一整面深黑色定制收納柜,柜體嵌入線性燈帶,形成明暗對比,柜面還放置了木質擺件,兼具收納與裝飾性。除此之外,潔白墻面懸掛一幅“竹”主題的中式卷軸畫,筆墨雅致。下方搭配青花纏枝紋瓷瓶,強化新中式韻味。
客廳

六米的客廳挑高,讓整個區域顯得通透大氣。搭配無主燈設計,進一步凸顯層高。配合整面大落地窗,室外的自然光線毫無保留地傾瀉而入,使得客廳明亮而溫暖。地面鋪設大塊的亮面瓷磚,與整體新中式風格相得益彰。

電視背景墻大面積鋪貼黑白根大理石,紋理自然且延伸至頂面,強化空間立體感。中間嵌入黑色大屏電視,簡約又具視覺張力。側面做了一組展示柜,既能擺放藏品又能滿足收納。

客廳里還布置了休閑品茶區,黑檀木的桌面搭配圈椅造型,線條簡約又保留中式韻味。角落點綴綠植花藝,為空間增添禪意與自然氣息。平常閑暇時分,坐在這里品茗賞景,別有一番韻味。
餐廳

餐廳旁有深黑色方形承重柱,起到分隔空間的效果。整體采用同色系飾面處理,與旁邊的黑色定制柜形成統一視覺,進而弱化了建筑結構的突兀感。頂面是多層次白色吊頂,嵌入筒燈與中央空調出風口,兼顧功能性與簡潔度。

落地窗采用大弧度的圓弧設計,從地面延伸至頂面,最大化拓展了窗面面積。這樣做同樣打破了傳統直線窗型的刻板感,柔化了空間線條,讓新中式風格更具靈動性。

餐廳選用圓形大餐桌,以 “圓” 寓意團團圓圓,特別是呼應了旁邊的圓弧落地窗,營造出包容、溫馨的聚餐氛圍。黑檀木餐椅搭配孔雀藍坐墊,在深色木色的襯托下瞬間提亮,在層次上提升了輕奢感。
廚房

餐邊柜采用上下一體的通頂柜體設計,強化了整體的空間感與高級感。柜體采用深黑色飾面,視覺上極具收縮感,顯得沉穩而貴氣。柜子內嵌了蒸烤箱、洗碗機等電器,渾然一色,自帶冷冽質感。

廚房采用開放式設計,與其他空間形成流暢互動。以深灰色石材飾面的承重柱為界,利用L型櫥柜布局打造出豐富餐廚功能區。櫥柜采用上白下灰的配色,在沉穩中透著清爽,同時滿足大量的儲物需求。
樓梯

挑高設計搭配玻璃護欄的二層回廊,整個空間看起來通透不壓抑,復式的層次感瞬間拉滿。地面臺階選用水墨紋大理石,質感溫潤,整體感極強。

黑色護欄線條硬朗利落,完美定義了樓梯的輪廓;而透明玻璃最大程度保證了空間的通透性,不會阻擋挑高客廳的光線和視野,讓樓梯區域與客廳、餐廳無縫流通。
主臥

主臥墻面大面積留白,結合分層設計,視覺上溫暖又舒緩。地面則鋪陳實木地板,溫潤的木質中和了全屋黑色柜體的冷硬,無比契合主臥的休憩氛圍。
會客廳
新中式風格對家具配置有著嚴格要求,二樓的待客區都配備了紅木家具。搭配青藍色絨布坐墊,在深沉的木色中注入靈動色彩,既保留中式家具的儒雅質感,又提升坐感舒適度。

對于業主而言,墻上軟裝字畫石頭是缺一不可的,能夠很好地彰顯業主的格調與品味。橙色裝飾柜收藏著主人珍愛的陶瓷、玉器等古玩擺件,散發著歲月的沉淀與文化的氣息。
衛生間

衛生間采用干濕分離設計,完美劃分了洗浴區域。干區鏡柜搭配懸空浴室柜,實現了洗漱用品的分類收納。馬桶同樣懸空,進而減少了衛生死角,讓清潔打理更為便捷。
一江璟城129平現代混搭風格裝修效果圖
金域天下二期溫馨現代風格裝修效果圖
龍湖春江酈城現代中式風格裝修效果圖
置頂—— 知精準報價 避裝修深坑 ——
平均七年以上的設計經驗資深設計師為您服務