黎林 - 首席設計師
入行時間:2008 年 職稱:首席設計師
項目地址:長存花園
項目面積:150㎡
項目風格:輕奢風
項目施工:山水人家裝飾
工程造價:21.5w
封面標題:150㎡四室改兩室,打造專屬顏值之家
一個人的時光悠遠,一個人的紙短情長。一個人的房子,寬敞大氣,擁有著無限的空間與可能。業主是一位漂亮大方的小姐姐,作為公司高管的她,擁有非凡的思維邏輯,講究生活中的品質與細節,熱愛健身熱愛生活。小姐姐偏好現代輕奢質感的風格,同我們設計師交談時,她希望擁有一個能完全為其生活習慣而定制的居家環境。一個人住,房間無須太多,夠住足矣。她心目中的家是溫柔的、多功能的,能夠滿足日常起居和生活中的小情調。于是通過打破原戶型格局,四室兩廳改兩室兩廳,在奶咖色中奠定溫馨、柔軟的基調。整屋大面積做開放式布局,弱化空間的邊界感,進而勾勒出家的專屬輪廓。
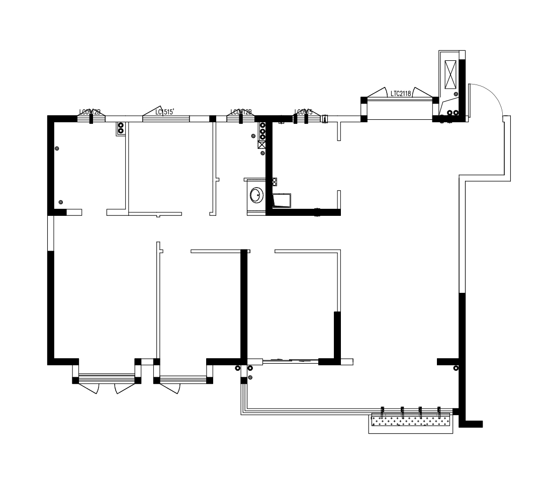
房屋信息:兩室兩廳(原戶型四室兩廳),精裝房改造。

業主需求:小姐姐一個人住,喜歡輕奢風格,希望擁有一個能完全為其生活習慣而定制的居家環境;不喜歡被約束,希望空間沒有邊界感;想要更多的生活體驗感,衣帽間、浴缸屬于標準配置。

由于是精裝房,有些水電走線難以調整,原戶型的廚房、衛生間就沒有做相應的空間改造,只在功能性方面略做修整。同時為進一步滿足小姐姐的實際生活需要,戶型做出如下調整:(1)原戶型的四室兩廳格局,小姐姐一個人用不上,于是改成了兩室兩廳格局;(2)原始主臥門封起來,次臥改成衣帽間,并套進主臥;(3)書房墻拆掉,開放融進客廳,增強通透感;(4)餐廚空間做了開放式布局,增加整體的活動面積;(5)居室布置有兩個衛生間,其中一個用作日常起居,一個用作放松泡澡。
入戶設計是進門的第一眼,是一套住房給人的第一印象。精心布置的入戶能有效提升整體裝修的檔次,讓人一見傾心。

玄關區域入眼便是咖色,在燈光的映射下,顯得軟糯糯的。女生下班回到家里,卸去一身的疲憊,輕松地享受一下家的甜蜜。側面是咖色墻布打造的墻,而正面則是膚感膜材質的玄關柜,保持一如既往的美觀同時,兼具鞋帽的儲藏功能。
為了營造恰如其分的輕奢之美,設計師對原始戶型進行空間上的解析和重構,并且融入了金屬、輕質以及ins元素,營造出溫馨時尚的生活家居氛圍。通過將后方的書房墻拆掉,整體開放融進客廳里,由此呈現更開闊的空間視野及通透的采光。硬裝部分大面積應用奶咖色調,加之簡潔利落的線條輔助,更添一份清麗甜美之感。

沙發背景墻用到奶黃色墻布,搭配著棕色沙發,交融出明快時尚的格調。各種精心布置的家具,包括橘色單人沙發、巖板茶幾等在內。所有的呈現讓一切看上去井然有序,小姐姐完完全全能在這里達成內心的富足。

電視背景墻改用定制柜體做背景,進一步鞏固收納需求。大面積的淺色膚感膜柜面,創造出一種豐厚的視覺感。其中下方還用柜子的板子調了色,深淺之間,給人一種明亮溫潤的感覺。其中一部分柜面還用到長虹玻璃,增添更多精致之感。

陽臺沒有安裝門,整體完完全全同客廳融為一體。超大落地窗擁有絕佳的采光與視野,從清晨到日暮,從藍天到星夜,一天的寧靜與美好,都可以在這里看到。除此之外,一面墻體還合理規劃了洗烘區域,小吉洗烘套裝總高度達到了170cm,滿足更大空間的洗護需求。造型設計也完美適配膚感膜柜體,搭在一起毫無違和感。
由于拆除了書房墻,將書房巧妙地融進客廳里,兩者有著緊密的聯系。書房的整體布局比較簡易,借助一面薄墻,藏住書桌隱隱約約的美。輕奢樣式的黑色書桌,看似簡約的外在有著豐富和精致的細節。深色部分由整塊皮革包裹,靈感來源于奢侈箱包,顯得更有溫度。ins風的桌椅設計,可以是書桌、電腦臺,也可以是梳妝臺,具有一定的普適性。

身后則是一整面的到頂柜墻。刨除基礎收納的功能外,有著更多的展示空間,擺放著小姐姐琳瑯滿目的收藏品。這里也有門與陽臺連通,動線分布愈加合理透徹。
天花應用回字型吊頂,并在一圈布置了射燈,進一步增加居室的氛圍感。地面則使用暖白色石材鋪貼,天然的質感,穩重而不失溫馨。尤其是餐廳這里的創意燈具,在諸多金屬材質的應襯下,顯得格外閃亮。

從入戶區域出來,便來到我們的餐廳空間。開放式的客餐廳布局把整個公共區域打開,廚房甚至沒有安裝玻璃移門,各空間之間形成了流動的滲透互動關系。側面的餐柜柜墻擁有極致的收納,整體配色同客廳保持一致,加上泡泡瑪特大號宇航員娃娃的擺放,平添更多生活的逸趣。

餐廳各種家具的陳設,彰顯了精致的生活狀態。潘多拉巖板餐桌的應用,造型非常地簡約優雅。鍍金底座沉穩大氣,顏值與優質工藝并重。搭配著舒適餐椅,這都屬于生活的沉淀,時光濃郁讓生活變得更有品質。
廚房做的是半開放式布局,無形之間視野和面積都仿佛變大了些。埡口還做了金屬框線的修飾,分出明顯層次感。常規的U型櫥柜布局,最大化廚房的操作臺面,進而滿足小姐姐更多的烹飪需要。

廚房設計在保障功能的同時,小姐姐也在追求美感的路上越走越遠。廚房的吊柜地柜都用的是膚感膜材質,觸感顏值各有提升。不大的空間里,特意還留出一個大的冰箱位,以此形成合理的科學動線。對小姐姐而言,所有的人間煙火都在廚房,唯有美食與愛不可辜負。
主臥藉由保留內飄窗,利于大面積的玻璃采光。寬敞的窗臺,小姐姐又多了一個方便臥躺的地方。主臥背景大量應用淺色系,無論是墻面還是地毯,盡顯品質格調。

主臥背景是墻板的造型,并做了淺藍色和咖色的分色。質感顯而突出,視覺亦得以明快簡潔。獨特床頭符合人體工程學設計,依靠舒適,全身放松,由此營造靜謐安寧的睡眠氛圍。

由于主臥與衣帽間互有連通,就沒有在主臥布置多余柜體,整體空間顯得更為寬敞明亮。為數不多的收納就存在于靠近主衛的過道柜,色調同床頭保持一致。這里專門放置著一些生活用品,極大提升居住的便利性和舒適感。
通過將一個次臥空間改成衣帽間,直接給套進主臥,以獲得更大的活動面積。墻面用奶咖色墻布鋪貼,顯得分外溫馨。衣帽間鏡子自然也是不能少的,直接一面全身鏡掛在梳妝臺對側,時時刻刻照亮生活的美。

衣帽間是女人的秘密基地,一個精致的衣帽間,是一天好心情的開始。靠墻直接打了一面到頂衣柜墻,可想而知里面有多少漂亮好看的衣服。在此基礎上,還布置了同系梳妝臺,色彩與材質一脈相承,搭配著ins風橘色梳妝凳,無聲中綻芳華。
主衛三分離是當前最舒服的布局方式,墻地一體的通鋪磚,讓空間更顯通透。偏暖色調的居室概況,更好地調和了空間情調。鏡柜+隔板架的應用,更是滿足基礎衛浴的收納需求。

舒舒服服地泡在浴缸里,好整以暇地刷著劇,這是小姐姐設想過最好的休閑畫面。于是設計師盡可能地在主衛空間里放入浴缸,品牌和樣式都是在主材館精挑細選的成果。最終一切落地,小姐姐還是非常滿意的。
國博城鳳棲居122平中古風格裝修效果圖
【福星惠譽國際城三期】140平后現代風格裝修效
復地東湖國際142平現代混搭風格裝修效果圖
置頂—— 知精準報價 避裝修深坑 ——
平均七年以上的設計經驗資深設計師為您服務