劉浩 - 高級主任設計師
入行時間:2012 年 職稱:高級主任設計師
項目地址:中交澄園
項目面積:130㎡
項目風格:現代風
項目施工:山水人家裝飾
工程造價:20w

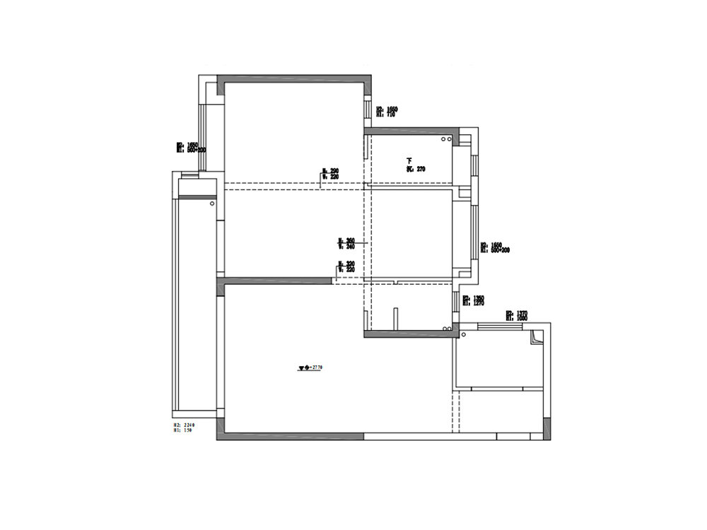
戶型解析

業主一家喜歡干凈簡潔的風格,空間以奶白色為基底,搭配原木色的溫潤質感,營造出溫馨舒適的居住氛圍。又因為是三代人同住,考慮到家庭成員的習慣差異,需要在細節處融入諸多人性化考量,空間的動靜分區也尤為清晰,既保證了公共區域的互動交流,又保留了各自的獨立休息空間。

本案戶型方正,由于業主有著較多的生活需求,需要對房型做出部分調整規劃:(1)原封閉式廚房改成開放式,并利用折疊玻璃門區分空間;(2)打通客廳和陽臺,使客廳開間達到5m,獲得更多空間拓展的機會;(3)主臥做成大套間,內含衛生間,摒棄L型衣帽間,床尾設計整面柜子;(4)次衛干濕分離,干區外置方便使用。
客廳

打通客廳和陽臺,搭配整面落地陽臺窗,確保整個空間的通透明亮。整體以奶白色和原木色為基調,營造出溫暖、治愈的居家氛圍。

客廳開間有5米,頂面做無主燈設計,造型極簡,視覺上延伸了空間尺度。沙發不靠墻,背后留出空間打造了開放式辦公學習區,提升利用率。

飽滿的奶白色沙發居中擺放,柔軟舒適的坐感為日常休憩提供了絕佳體驗。并用亮橙色軟裝靠墊作為點綴,使客廳環境愈加鮮活生動。沙發前是一張深灰色的圓形茶幾,這樣既保障了日常使用的安全性,又與整體柔和氛圍相呼應。

紅色小馬椅是當之無愧的視覺焦點,醒目的色彩為客廳注入了活力和趣味。無獨有偶,靠近陽臺同樣擺放了一張橙色沙發,層次豐富,質感柔軟。

電視墻用白色石膏線做懸空設計,下方搭配咖色落地電視柜,呈現出簡潔大氣的層次感。這樣不僅讓電視墻顯得輕盈不壓抑,還方便日常清潔地面,避免衛生死角。大抽屜可以儲物,配上墻面的藝術裝置,滿足更多實用需求。

沙發后方定制了專屬的辦公學習區,打了一整墻的收納柜。柜體以奶白色為主,一部分設有帶暖黃色燈帶的木色開放格,用于展示綠植、裝飾品等,整潔且有氛圍。
餐廳
餐廳和廚房相連,整體過渡自然且流暢。做了整墻餐邊柜設計,白色柜面搭配黑色拉手,更顯簡潔清爽。提前預留了精準的冰箱尺寸,所以能把冰箱完美嵌入餐邊柜里。

餐廳選用設計感極強的巖板餐桌,搭配同款式餐椅,打造出一個舒適用餐環境。墻面錯落懸掛裝飾掛畫,點綴有亮黃色與紅棕色的色塊,質感碰撞提升了層次。
廚房
原本廚房是封閉式,為強化使用感,特意將其改成開放式。充分應用折疊玻璃門,拉開時則能形成有效的隔斷,隔絕油煙擴散到客餐廳區域,兼顧了開放式廚房的互動性與封閉式廚房的實用性。

廚房內部采用U型布局,最大化利用轉角空間。和餐桌緊密貼合,形成流暢高效動線。櫥柜以白色為主,視覺上干凈利落,同時配備了充足的抽屜和拉籃,實現各類廚具和食材的分類收納。
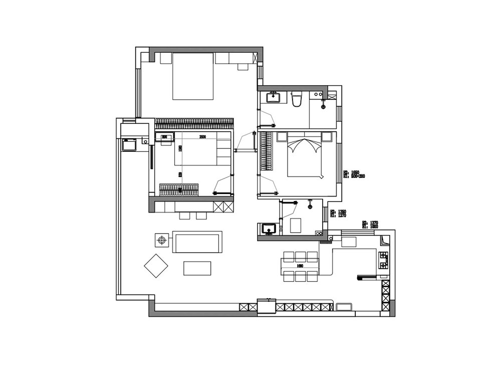
主臥

主臥通鋪啞光地磚,奠定沉穩干凈的基調。頂面采用純白色平頂+無主燈設計,僅以石膏線勾勒,極致簡約。床頭背景墻則做了分層設計,白色和咖色搭配,輔以格柵木+燈條提升氛圍。

主臥實際是個大套間,內含衛生間。通過摒棄L型衣帽間,在床尾位置設計到頂衣柜,進而承擔更多收納要務。衣柜采用與床頭背景墻同色系板材,搭配隱形拉
手設計,視覺上和諧自然。

同時利用梳妝臺巧妙銜接了臥室區和衛生間,體現了功能區的流暢過渡。中心是一體化的白色梳妝臺,線條極致簡潔,很好地滿足了業主化妝打扮的實際需求。
次臥

次臥簡單溫馨,整體選用溫暖的白色乳膠漆,大面積留白讓人頓感清涼。充分考慮到老人的生活習慣和需求,房間內放置一張1.5米寬的靠背床,搭配兩個小巧的床頭柜,營造出寧靜舒適的休憩氛圍。

兒童房布置比較簡潔,為后續的童趣布置留出充足空間。房間布置了定制高低床,相應滿足女孩的使用需求、側邊爬梯與嵌入式收納,實用性滿分。同時用粉色渲染出溫柔夢幻的氛圍,富有活力與童真。
衛生間

衛生間通鋪墻地一體磚,在視覺上拉伸了縱深感。干區整合如廁和洗漱功能,重點表現在蛋形智能馬桶上。同時借助玻璃隔斷門,有效實現干濕分離,以此保證淋浴區的使用體驗。
中建鉑公館現代簡約風格裝修效果圖
碧樂城50平loft現代風格裝修效果圖
綠地公館118平現代黑白灰裝修效果圖
置頂—— 知精準報價 避裝修深坑 ——
平均七年以上的設計經驗資深設計師為您服務