劉浩 - 高級主任設計師
入行時間:2012 年 職稱:高級主任設計師
項目地址:雅居樂花園
項目面積:105㎡
項目風格:現代風
項目施工:山水人家裝飾
工程造價:14w

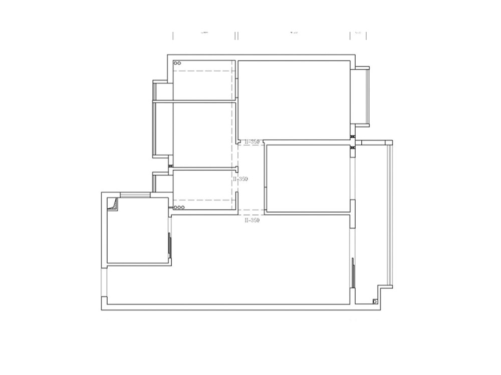
戶型解析
窗含湖景,家如靜畫。本案為婚房打造,緣起老友推薦,業主是因為樓下鄰居的推薦選擇了我們。以經典黑白灰為基調,營造簡約而高級的靜謐感??臻g大幅開放,引光納景,讓滿目湖色成為生活日常。于細節處融入質感、溫度與個性,讓愛意在新家悄然生長。

本案戶型方正,南北通透,基礎結構沒有改動,主要進行了微調:

(1)打掉陽臺門,使其連接客廳及次臥,形成通暢動線,同時使得窗外湖景一覽無余;(2)房間內部拆掉飄窗,騰出更多收納空間;(3)公衛干區外置,有效實現干濕分離。
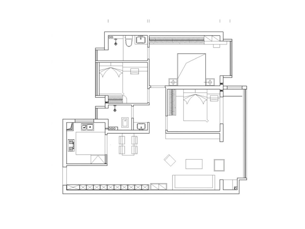
客廳

打通客廳和陽臺,提供大面積玻璃設計,透出窗外湖景,視野開闊寧靜??臻g主色調以黑白灰為主,搭配亮色點綴,營造出簡潔溫馨的生活氣息。

客廳采用無主燈設計,一定程度上起到拉長層高的效果,整體照明更均勻。背景墻嵌入壁燈提供柔和間接光,提升空間層次。淺色地毯鋪陳地面,界定主要活動區域。

黑色皮沙發靠墻放置,散落花色毛絨玩偶,強化生活趣味感。緊鄰黑色落地燈,打造溫馨角落。黑色圓形茶幾居中擺放,上置一本雜志,體現整潔有序。

黑色大屏電視懸掛墻面,與純白背景互為照應。下方設置黑白拼色電視柜,上方陳列彩色玩偶,活躍靈動氣氛。右側配黑色玻璃柜,內置裝飾品提升藝術感。

大面積落地窗展現秀色湖景,帶給人一種寧靜平和的心境。陽臺里側巧設功能區,洗衣機和臺盆區嵌入白色定制柜,兼顧實用與美觀。
餐廳

開放設計串聯廚房和餐廳,動線流暢無絲毫阻隔??繅Χㄖ祈斕炝⒌匕咨吖瘢谏_放格內置直飲水機+移動插排,滿足生活便利性。

餐廳布置較為簡單,擺放了巖板餐桌,耐臟實用。搭配同系列餐椅跳色組合,打破空間單調感,有效增加家庭互動。
廚房
利用冷色調和隱形設計弱化廚房雜亂感,U型櫥柜設計進一步實現功能分區,形成“洗-切-炒”完整流程。嵌入式冰箱與白色高柜無縫銜接,節省空間。

白色吊柜采用無把手設計,保持立面簡潔,提供大容量收納。黑色地柜形成撞色,營造豐富現代感。亮面瓷磚鋪貼,反射光線提亮空間。
主臥

主臥空間寬敞明亮,窗景借光同樣能看到滿屏湖景。整體應用到純白色系,視覺顯高顯大。地面通鋪自然紋理木地板,溫潤又舒適。

臥室選用黑色軟包床頭,同整體白墻形成鮮明對比。搭上配套床頭柜,啞光黑材質呼應床體,強化空間寧靜感。懸浮床下暗藏柔和暖光,營造溫馨氛圍。

床尾定制頂天立地白色高柜,黑色細長拉手強化垂直線條。無框設計實現隱形收納,極大擴容視覺空間。靠窗區域布置梳妝區,以滿足業主的使用需求。
次臥

次臥連接陽臺,達到一個連貫的視覺效果,同時形成次臥-陽臺-客廳的溯回動線。整體以淺色調為主,打造明亮極簡空間,富含療愈感。

房間定制到頂白色衣柜,通高設計擴容收納空間。按壓式開門無外露把手,黑色細線條裝飾打破單調,實現最大限度的潔凈感。
衛生間

衛生間整體采用淺色基調,視覺上延伸了空間感。墻地一體通鋪,無縫設計減少藏污,更顯利落整潔。淋浴區巧妙嵌入壁龕,兼顧實用收納,于簡約中詮釋功能美學。
江南新天地新中式風格裝修效果圖
金地格林小城美式風格裝修效果圖欣賞
復地東湖國際108平現代風格裝修效果圖欣賞
置頂—— 知精準報價 避裝修深坑 ——
平均七年以上的設計經驗資深設計師為您服務