劉浩 - 高級主任設計師
入行時間:2012 年 職稱:高級主任設計師
項目地址:雅居樂花園
項目面積:105㎡
項目風格:奶油風
項目施工:山水人家裝飾
工程造價:14w

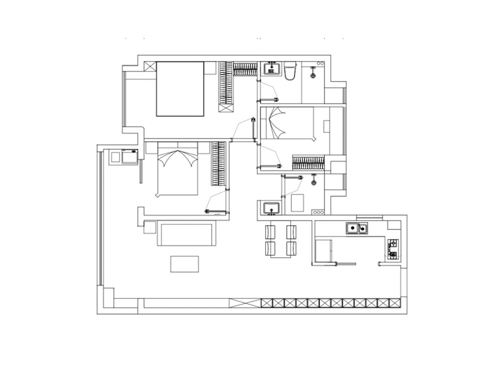
戶型解析

本案業主是一對新婚夫妻,對家的規劃有著自己的向往。他們偏愛浪漫溫馨格調,且不喜歡過多的裝飾,為此選擇了奶油風格。全屋大量采用低飽和度色調,讓光線與空間相得益彰,直接化身高樓林宇間的居心地~

本案戶型方正,基于業主的實際需求,對房型做出如下調整:(1)打通陽臺和客廳,打造客廳-陽臺-次臥優良動線;(2)入戶鞋柜餐邊柜一體設計,實現極致收納;(3)公衛干區外置,有效實現干濕分離。
客廳

打通陽臺并連接客廳,增加室內采光,視覺延伸感更強。定制弧形門洞提升氛圍,窗邊另置有綠植,充分引入自然元素,無形點綴空間。

客廳以奶白色為主基調,兼具現代簡潔和生活溫馨感。云朵造型吊燈懸掛于天花板,提供柔和主照明,設計新穎有趣。地面統一材質,讓陽臺與客廳無縫銜接,增強整體感。

客廳擺放云朵沙發,給人舒適的坐臥體驗。靠背上陳列一排毛絨玩偶,增添愈多童趣與活力。背景墻嵌入多盞柔和射燈,營造溫暖氛圍。面前搭配圓弧茶幾,安全感滿滿~~

奶油色背景墻搭配黑色電視,層次感分明。下方配木質+白色電視柜,提供隱蔽收納。旁邊還定制了黑玻展柜,用以陳列玩偶及相框。

合理利用陽臺區,設置了到頂家政柜,內嵌了洗衣機和烘干機,節省空間。同時定制整面落地窗,將窗外湖景充分引入室內,帶來陣陣心靈漣漪。
餐廳
入戶即溫柔!鞋柜與餐邊柜一體化設計,奶油色柜體無縫銜接,強化整體性,滿足收納與家電隱藏的需求。餐邊柜上下做柜子,中間嵌入開放式隔層,更好提升細節收納。

餐廳與客廳之間用白色拱門連接,柔化分區的同時增強通透感。純白墻面無冗余裝飾,長條吊燈光線聚焦用餐區,提升舒適度與空間層次。

餐桌選用純白臺面搭配木質錐形腿,邊緣做了圓潤處理,有效防止磕碰。桌面用柿子花枝做了撞色搭配,自然野趣躍然眼前。
主臥
主臥設置大面積窗戶,室內變得明亮大氣,掛上粉色亞麻窗簾,透光柔和??繅Χㄖ屏藨铱兆烂?,滿足業主梳妝打扮的需求。上方設有懸掛式柜體,補齊收納。

主臥墻面鋪貼淺米色乳膠漆,實現視覺擴容。搭配米白色軟包床頭,打造寧靜睡眠環境,家真正成為“療愈之所”。

側面貼墻定制了到頂衣柜,有效釋放活動區。整體選用白色柜門覆蓋,更顯干凈溫馨,同時與房間墻面相襯,豐富觸感體驗。
次臥

次臥大量應用低飽和度色彩,保持空間整潔。側面定制到頂衣柜,白色門板配黑色拉手,打破單調感,功能方面極佳滿足衣物儲放的需求。
書房
書房墻面做了分色處理,上半純白墻面+下半木色護墻板,更好提升層次感,同時整體木紋呼應書桌材質,營造專注氛圍。頂部設置圓形吸頂燈,光線覆蓋全屋,保障工作照明透亮。

工作區借木色桌面搭配簡潔線條,造就出極佳的體驗感。飄窗保留下來,設置成生態綠植區,得以讓業主在工作之余能更好地放松。
衛生間

衛生間以淺米色基底營造舒緩氛圍,墻地一體磚紋理細膩防滑,視覺延伸空間。懸空浴室柜搭配鏡柜,隱藏較多清潔用品。借用黑框玻璃隔斷劃分干濕區,保障內部干凈與衛生。
華僑城紅坊右岸140平法式香奈兒風格裝修效果圖
興華尚都國際133平現代輕奢風格裝修效果圖
保利城110平北歐風格裝修效果圖
置頂—— 知精準報價 避裝修深坑 ——
平均七年以上的設計經驗資深設計師為您服務