張林 - 首席設計師
入行時間:2010 年 職稱:首席設計師
項目地址:綠地中央廣場
項目面積:320㎡
項目風格:現代風
項目施工:山水人家裝飾
工程造價:51w

這是一個320㎡的大別墅,由于業主對于港式風格頗為熱愛,尤以上世紀香港黃金時代的經典為最。通過將都市繁華與家的溫馨完美融合,創造出一種既復古又不失時尚感的獨特氛圍。采用超絕的空間布置+玻璃吊頂,營造超乎想象的開闊與自由。精妙的裝置造型和家具擺件點綴空間,由此呈現出一個氣質優雅的港風別墅,像是置身于經典港片的場景里,每一步都踏著歲月的回響。
房屋信息:別墅,新房裝修。
這個大house總共有五樓(包括地上三層和地下二層),目前只有業主兩人居住。每一層樓都有著專屬功能,以此滿足他們的實際生活需要。

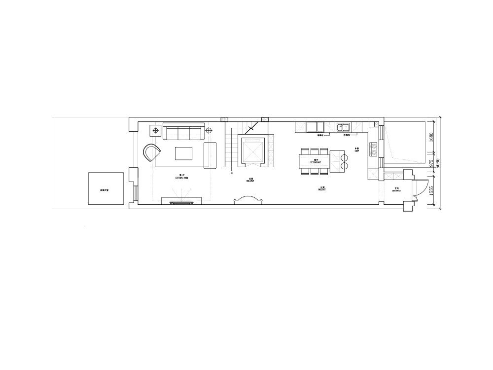
一樓作為公共生活區,包括客餐廚在內,整體做成開放式。

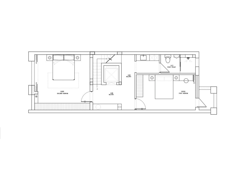
二樓作為休息區,合理布置了各個臥室。

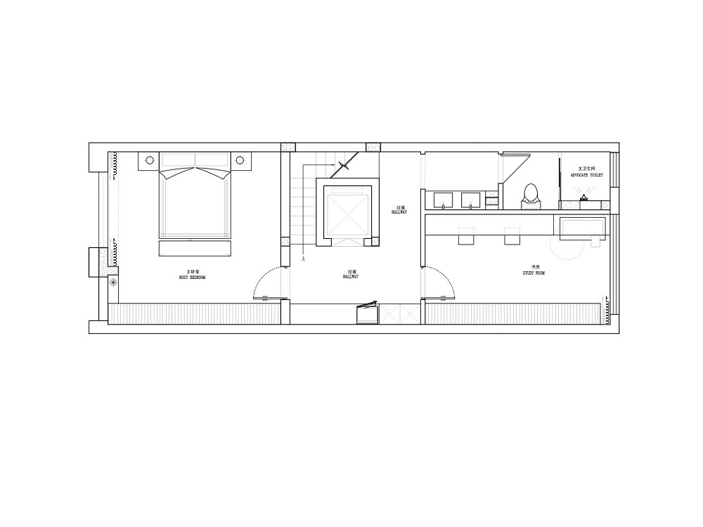
三樓主臥睡眠區、衣帽間和書房合并為一體,更注重舒適性和私密感。

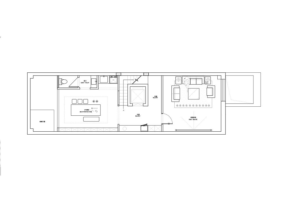
地下二層則是業主夫婦的休閑天地,負一茶室,負二目前空置,將來或許就是寶寶的活動室!

客廳空間大面積留白,不僅簡潔明亮,而且還能營造寬敞大氣的空間效果。結合大的玻璃陽臺,采光通透,搭配自然窗簾,讓家里氣氛升級,品位加分。

客廳采用平面吊頂造型,局部鏤空,強化層次感,同時安裝了風管機。無主燈設計簡約不張揚,營造空間高級感。側面利用鏤空屏風隔斷,實現分區的同時,更增加了美觀度和隱蔽性。

L型豆腐塊沙發搭配白色方形茶幾相得益彰,設計飽滿立體,彰顯方正秩序。抱枕做了跳色處理,搭配淺色地磚,讓整個氛圍更加和諧。

電視墻采用留白設計,進一步放大視覺空間。定制懸空電視柜和到頂展示柜,滿足客廳的整體收納,不會顯得凌亂。
從入戶進來,餐廳廚房連為一體,開放式布局讓空間流線更通暢。吊頂搭配半圓形創意鏡面,拉伸視覺感,更好提升空間層次。

靠墻定制了一組到頂餐邊柜,很好地滿足日常的儲物需要。冰箱內嵌,精簡空間,兩側和柜子的距離幾乎沒有,相應解決了冰箱縫隙積塵問題。

L型的櫥柜布局,給中間區域留出很大空間。通過將美觀實用的餐桌和廚房緊密相連,形成一個開放式的烹飪環境。保留充足柜體,且內置了洗碗機及一體式集成灶等,完全滿足中西廚做飯的需求。

餐廳采用餐桌+島臺的造型,貼合家里的使用情境,空間的利用愈加靈活。大理石餐桌安全可靠,厚重感強,淺白色也能很好地調動胃口。而島臺可以充當餐桌輔助,進而擴展操作臺,提升整體的用餐體驗感。

沿著環抱式大理石樓梯,提步向上,就來到我們的主臥區??臻g寬敞明亮,給人的感覺非常舒爽,地面通鋪實木地板,光腳踩都特別輕盈,顯得簡潔耐臟。

主臥墻面做了分色處理,原木色板面搭配上奶白色乳膠漆,呈現出溫暖空間背景。擺放一張復古大氣的床,搭配精致床腿,讓人頓感“高大上”,營造舒適睡眠氛圍。

床尾定制一整面衣柜墻,收納功能超級強大。直接拉到頂,不留絲毫縫隙,顯得簡約美觀??耖T自帶醇厚氣息,搭配黑色豎條形拉手,更富層次感。

柜子一角做了一體式的梳妝臺,更好提升空間利用率。巧用鏡面元素提亮空間,懸空桌面設計簡約時尚,便于業主坐著化妝休閑。

次臥用墻面顏色做了調和,使得簡潔臥室也有豐富的感覺。亮色窗簾搭配,沒有絲毫沉悶感。堅硬的墻面與柔軟的布藝相襯,產生濃厚的趣味。

舒適的靠背床搭配柔軟床墊,更好打造了溫馨的睡眠環境??繅Χㄖ频巾斠鹿?,儲物量驚人,咖色柜門更顯清新。
書房朝北,整體空間寬敞明亮,一邊安排了坐臥區,擺放了一張舒適沙發,平??梢栽谶@邊品茗看書或是小寐,留出足夠過道,便于做一些開心的事情。

另一邊則定制了超大的雙人位辦公區,可以盡情地放飛自我,享受電腦娛樂自由。同時書桌內部還打造了充足吊柜,對側還定制了到頂的黑色玻璃柜,裝飾效果顯著,裝滿了業主喜歡的物件。

業主把地下室打造成接待朋友的主要空間,主要表現為茶室,更顯親近。采用無主燈設計,讓空間更加靈動,層次更加豐富。側面定制一整面茶柜,開放格布置專門擺放名貴茶品,彰顯氣質。

茶室內部擺放一張超大茶桌,搭配同比例茶椅,蘊含豐厚的原木氣息。業主獨處之時可以在茶室修生養性,也可以以茶會友。一隅茶室里,領悟茶香茶意,此中愜意,足以平息所有內心不安。

除去茶室空間外,還布置了日常的家政區。洗烘套裝+洗手池成為個中標配,極佳滿足業主的使用需求。打造吊柜補齊收納,底部放置掃地機器人,方便衛生清潔。

影音室的設計獨具創意,墻面大面積用實木墻板,視覺上十分清爽。圓形吊燈彌補了上方空間的空白,搭配明裝燈帶,營造氛圍感。擺放一張奶油色沙發和按摩椅,增添生活的舒適度。

相對封閉型的設計,讓整體聲音效果更容易控制。搭配大屏投影和環繞音響,在家也能享受沉浸式觀影體驗,視聽盛宴就此開啟……
衛生間將干區外置,很好地實現了干濕分離,同時提升不少使用效率。采用懸空浴室柜+壁柜造型,增加收納。超薄鏡面不占空間,強化通透感,效果明顯。

衛生間內部墻地一體磚通鋪,更顯空間寬敞整潔。其中馬桶區和淋浴區用雙推拉門隔開,相互之間互不影響,方便日常使用。且這樣的設計將水汽很好地隔絕,以維持干凈穩定的衛浴環境。
伊頓陽光90平現代風格裝修效果圖
雅居樂花園105平奶油風格裝修效果圖
璟悅城140平極簡風格裝修案例欣賞
置頂—— 知精準報價 避裝修深坑 ——
平均七年以上的設計經驗資深設計師為您服務