毛凱 - 首席設計師
入行時間:2006 年 職稱:首席設計師
項目地址:美聯城觀
項目面積:120㎡
項目風格:奶油風
項目施工:山水人家裝飾
工程造價:17w

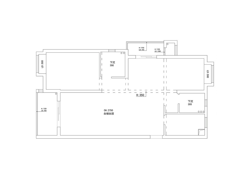
戶型解析

本案業主是幸福的一家三口,夫妻二人工作節奏快,對居住空間的需求聚焦于高效實用與溫馨舒適的平衡。家中的小公主則需要獨立且充滿童趣的成長天地。為此全屋采用奶油系中性配色,營造一種放松、自由的感覺。同時定制充足的收納空間來保持家的整潔,從容締造超寬敞學習玩樂天地。

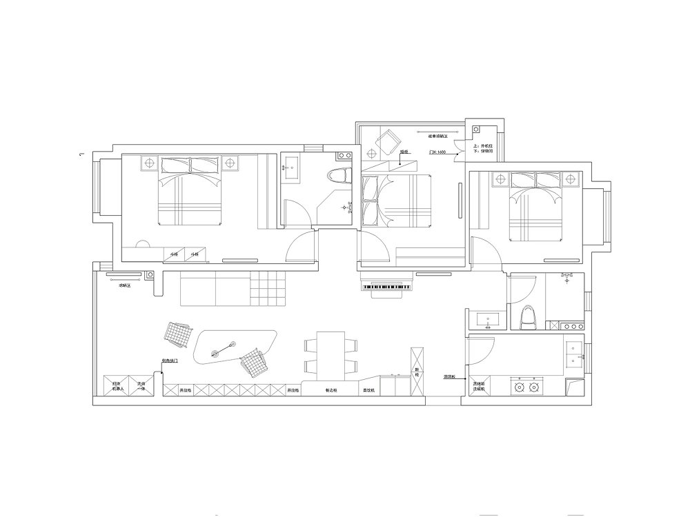
本案戶型方正,沒有太大的房型硬傷。根據業主的實際需求,對房屋做出調整:(1)打通客廳和陽臺,并采用去客廳化處理,打造寬敞明亮生活空間;(2)女孩房相應擴大,有足夠的學習區。
玄關

玄關區域設置到頂白色立柜,中間設開放格,底部留空用以放置鞋位。在此基礎上,還定制了木質隔斷+分層鞋架,起到視覺分區及提供隱蔽性等效果。頂部懸掛黑色吊燈,線條簡潔利落。
客廳

客廳與陽臺通過一個拱形門洞連接,增加了空間的層次感和儀式感。陽臺安裝了白色紗簾,提供柔和采光。左側疊放著洗衣機和烘干機,彰顯更多生活氣息。

客廳整體以米白、淺灰等中性色為基調,營造出寧靜舒適的氛圍。頂部設置木質風扇燈,兼具裝飾與實用功能。地面淺色瓷磚通鋪,以此增強空間連貫感。

純白墻面無額外裝飾,營造留白感。淺色布藝沙發搭配同色系靠墊,風格素雅干凈。采用去客廳化設計,中間沒有擺放茶幾,留出足夠的走廊空間。

另一側墻面定制了整面白色儲物柜,提供了強大的收納功能,保持空間整潔。其中用黑玻柜+深色開放格充當撞色,形成鮮明的色彩對比。電視沒有上墻,而是用支架固定,使得電視角度可以靈活調節。
餐廳
餐廳與客廳相連,視覺擴大小空間。飛碟燈懸垂上方,為餐桌區域鍍上一層溫馨的光暈。墻面巧妙定制了藝術裝置,黑膠唱片+小提琴模型,整體形成質感碰撞。

靠墻定制到頂餐邊柜,整體由黑白棕三色組成,分出明顯層次感。柜體內置直飲水機,側邊擺放了雙開門冰箱,精簡空間,提供舒適生活體驗。
白色圓形餐桌+四把布藝餐椅,滿足一家人的用餐需求。深木色椅腿呼應錐形桌腿,更符合整體空間的素雅風格,透著生活的小確幸。
廚房
廚房采用L型櫥柜布局,所有功能區沿墻壁一字排開,實現了從取材、清洗到烹飪的流暢動線??拷鼜N房門口的位置,內嵌了烤箱,充分利用垂直空間,讓廚房的整體布局更加緊湊有序。

廚房采用深棕色地柜+白色吊柜,形成經典配色,保持了視覺上的整潔協調,且提供了強大的收納功能。通過色彩的搭配和細節的處理,營造出簡潔溫馨的烹飪氛圍。
主臥
主臥空間極大,全屋采用淺色系搭配,打造極致溫馨感。床尾墻面用到墻板裝飾,搭配格柵條增強線條感,層次上更顯豐富。

主臥飄窗保留下來,與工作區實現一體化設計,兼具坐榻與置物功能。旁邊是梳妝臺,白色桌面+懸浮設計,保持視覺輕盈。搭配白色蝴蝶椅,提供舒適化妝體驗。

純色背景墻充分留白,讓視覺效果很是清新。米白色軟包床頭搭配木質裝飾條,超有高級感。旁邊放置白色床頭柜,與整體輕盈感設計相呼應。

靠近床側位置,定制了到頂的白色衣柜,內置掛衣區、疊放區和抽屜等。中部用黑色裝飾線條點綴,增強延伸感。同時燈帶向上洗墻照明,消除頂面壓迫感。

女孩房以淺粉+米白為主基調,營造夢幻柔和的少女氛圍。粉色心型床頭充滿童趣元素,達到一種跳躍活潑的感覺。

房間采用大尺寸窗戶,引入自然光,打造明亮學習環境??看安贾肔型書桌,白色桌面干凈整潔,粉白雙色兒童椅可調節高度適應孩子的成長需求。
次臥

次臥配色非常簡單,墻面刷淺色乳膠漆,柔和不壓抑。定制的淺灰色布藝床搭配白色床頭柜,線條簡潔流暢,營造出寧靜安穩的休憩氛圍。
衛生間

衛生間巧妙規劃布局,將洗漱區、馬桶區與淋浴區徹底分開。洗漱區定制懸空浴室柜,方便日常洗漱。馬桶區與淋浴區用簾子隔開,確保淋浴時的水花不會濺濕其他區域。
越秀星匯君泊132m^2美式風格裝修效果圖
綠色家園復式樓現代極簡風格裝修效果圖
融創臨江府120平現代風格裝修效果圖
置頂—— 知精準報價 避裝修深坑 ——
平均七年以上的設計經驗資深設計師為您服務