劉佳怡 - 高級主任設計師
入行時間:2015 年 職稱:高級主任設計師
項目地址:中建星光城
項目面積:126㎡
項目風格:現代風
項目施工:山水人家裝飾
工程造價:16w

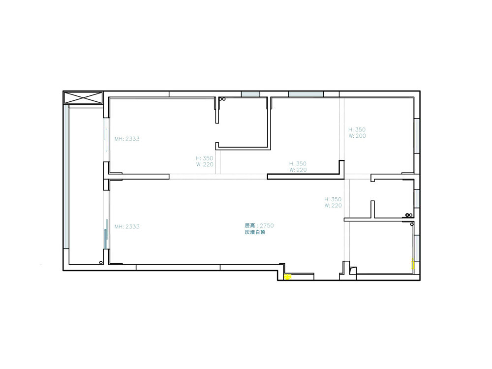
戶型解析

本案業主是一位非常漂亮的小姐姐,家裝風格想要簡約高級,于是新家定調黑白灰風格,讓人有一種低調、有品質的感覺。同時用泡泡瑪特玩偶裝點整體空間,充分彰顯個性時尚感,推開門,不再是眼花繚亂的色彩,而是一個由黑、白、灰交織成的純粹世界。

本案戶型方正,南北通透,整體打造成舒適三居格局,具體包括:(1)打通客廳和陽臺,整體形成客廳—陽臺—主臥的溯回動線;(2)餐廚空間做成半開放式,保障優良互動性;(3)公衛采用干濕三分離設計,提供格外便利。
客廳

全屋以黑白灰主色調為呈現,營造冷靜高級感。搭配簡潔的線條、舒適的家具,勾勒絕佳現代感。盡頭的大窗配白色紗簾引入自然光,空間明亮開闊。

簡潔平頂無額外裝飾,借助燈光線條切割空間,搭配無主燈照明,增加空間層次感。光滑的淺灰色地磚反射光線,增強通透性,整體呼應極簡理念。

勞倫斯黑直排沙發居中擺放,質感光滑。旁邊放置醒目的小馬椅,一抹跳色增添空間趣味性。背景墻是灰色墻板+巖板混搭,材質對比鮮明。旁設同色系開放展架,保持視覺統一,藝術擺件提升格調。

電視背景墻選用巖板材質,保留水墨般自然肌理。整體采用懸浮式設計,電視內嵌其中,底部留空增強輕盈感。旁邊增設黑色開放架,擺放不同造型的泡泡瑪特玩偶,十分時髦潮流。
餐廳

寬敞過道連接客餐廳,與廚房用玻璃門隔斷,吊軌設計可將門完全隱藏在墻體之內,整體形成高效互動空間。整體設色以黑白灰為主,奠定沉穩生活基調。

靠墻定制通頂餐邊柜,整體選用灰色面板,保持立面極致簡潔。其中中部留空,用以擺放生活用品。旁側定制開放架及黑玻柜,彰顯非凡氣質。

方形餐桌靠墻布置,采用巖板易潔材質,兼顧美觀與耐用性。餐椅跳色打破單調,再配上桌上花束及玩偶的點綴,增添生活趣味性。
廚房

廚房采用傳統U型櫥柜設計,合理布置了冰箱、水槽區及灶臺等位置,整體形成優良的烹飪動線。深灰地柜搭配白色吊柜,有效實現雙層收納。
主臥

主臥空間較大,玻璃推拉門連接外部,借此增加室內的采光和視野。全屋采用淺色系基底,將舒適感發揮到極致。地面通鋪木色地磚,耐臟且易打理。

沙發背景墻做了米白+深灰的分色處理,提升空間溫度感。床頭懸掛一盞玻璃吊燈,搭配同色系床品床飾,營造寧靜舒緩的休憩氛圍。

通頂衣柜縱向拉伸層高,白色柜門緩解大面積柜體壓抑感。整體提供了充沛的收納空間,可以將多余的物品都收起來。
衛生間
公衛將干區外置,有效實現干濕三分離。洗漱臺采用白色大理石臺面,下方是深灰色浴室柜懸空設計,避免衛生死角,更顯視覺輕盈。上方是鏡柜覆蓋墻面,內置隱藏儲物格,兼顧擴容與收納。

主衛功能區分布合理,淋浴房做成鉆石型,絲毫不影響外界。冷灰色基調借助燈光營造靜謐高級感。搭配上深灰色儲物柜,懸空又防潮。
融創瀾岸簡約美式風格裝修效果圖
藍光林肯公園100平北歐風格裝修效果圖實景案例
鵬程天地匯160平現代輕奢風格裝修效果圖
置頂—— 知精準報價 避裝修深坑 ——
平均七年以上的設計經驗資深設計師為您服務