柯小芳中建南湖壹號124現代輕奢

中建南湖壹號--輕奢之家
800實拍案例
項目地址:中建南湖壹號
項目面積:124m^2
設計風格:現代輕奢
項目耗時:90天
戶型:三室兩廳改四室兩廳

年輕的小夫妻+兩歲的小寶貝,組成了本案的三口之家,因為家中有小寶貝,所以健康的選材成為必備條件,在洽談合作時,柯工帶著兩位“健康專家”瀏覽了我們徐東總店的萬平主材管和山水人家的徽派工藝,終俘獲了兩位“專家”的心。
在方案制作中,柯工考慮到家中有小可愛,對儲物空間的需求變高,于是在客餐廳、陽臺、門廳、房間中,見縫插針的增加了柜子,讓整個設計的人性化與實用性提高。

輕奢感必不可少的金屬細節我們來者不拒,從吊頂的線條到紅猴擺件的托盤,既不會膩人,又顯得溫暖。客廳的米色墻是精挑細選后的成果。

既不會膩人,又顯得溫暖。

大理石的電視背景墻和金屬線條是絕配,在整個暖色系中點亮高級感,大理石的茶幾與背景墻相呼應。

入戶是從餐廳分割出來的空間,量身定制了一整面墻的鞋柜。

從而讓客餐廳與入戶之間,也有了一個小小的隔斷,成為單獨的一個空間。

展示柜+酒柜一體的設計,使整組酒柜在餐廳也不顯擁擠。

足夠大的空間讓整個家都通透起來。

主臥的深咖色硬包背景墻是空間的主色調,深沉又柔和的色彩有助于睡眠,白色衣柜提亮空間。

臥室連著主衛,形成了一整個套間,玻璃浴房將主衛進行了干濕分區。

走廊上的幾何體壁燈原本是作為裝飾用的,沒想到在夜晚點亮后有了幾分天文奇觀的意境。

星河長廊的盡頭就是次衛的干區,金屬線條勾勒提亮了這個小小空間,視覺效果更加完美。

次臥的空間用溫暖的鵝黃涂抹,金屬的北歐系主燈也讓人眼前一亮。

廚房是長方形的空間,白色的柜體柜門加原木色彩的把手點綴,是最為經典的配色選擇。家里的每一個小擺件與裝飾物,都仿佛在向來訪者講述這個家的故事!

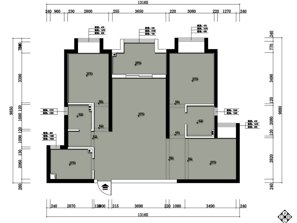
原始戶型圖:
1、入戶可以直接看到整個室內結構,私密性不佳
2、業主想在保留三個臥室的結構下有一個獨立的辦公區域
3、客廳大陽臺右側拐角空間可利用

平面布局圖:
1、入戶設計到頂鞋柜增加儲物,同時扮演著玄關的功能
2、餐廳空間大,利用次臥旁的區域隔一個書房,滿足辦公需求
3、將客廳陽臺與主臥陽臺連接,增加儲物空間
華星融城現代風格裝修效果圖
花樣年花郡90平時尚北歐裝修效果圖
碧桂園別墅美式風格裝修效果圖
置頂—— 知精準報價 避裝修深坑 ——
平均七年以上的設計經驗資深設計師為您服務