張天 - 主任設計師
入行時間:2014 年 職稱:主任設計師
項目地址:二十四城
項目面積:98㎡
項目風格:簡約原木風
項目施工:山水人家裝飾
工程造價:15w

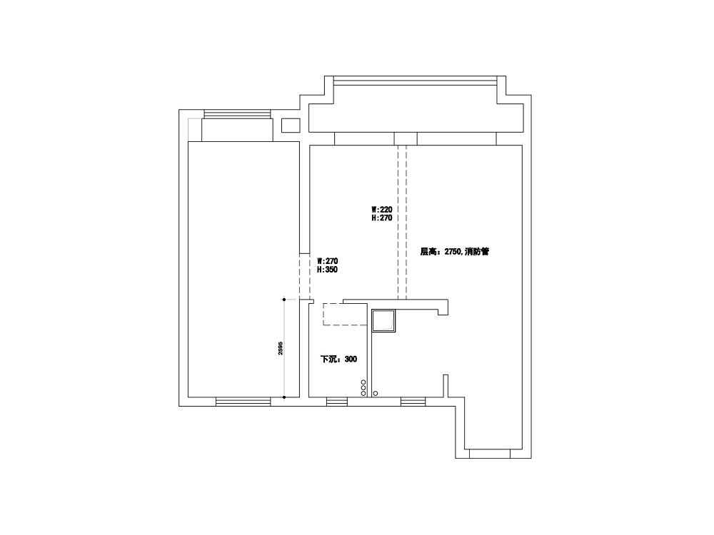
戶型解析

業主希望自己的家簡單自在,喜歡原木風格。于是全屋采用奶白+原木配色,放大純凈空間感。再結合秀氣的軟裝配飾,凸顯家的溫暖。拱窗引入柔光,打造“素簡中見豐盈”的清新空間。

本案戶型方正,主要的空間調整點在于:(1)打通客餐廳,并連接陽臺,增加空間采光及生活面積,視野愈加開闊;(2)入戶到餐廳直接打造了整面收納柜,且定制卡座承擔餐椅功能;(3)衛生間干區外置,有效實現干濕三分離。
客廳

純白墻面奠定空間純凈基底,給人一種溫暖安謐的感覺??看岸ㄖ苹⌒伍T洞,調和空間,柔化線條。大面積白紗簾過濾陽光,保持通透感。

全屋采用簡潔平頂設計,能感受到空間非常大氣耐看。無主燈設計提供均勻照明,暖色調木地板貫穿全室,與原木風格相匹配。

深綠色沙發搭配木質茶幾、圓幾,營造松弛氛圍。墻面擺放裝飾掛畫,有效提升文化格調。旁側落地燈散發柔和光線,無形點綴淺色空間。

客廳沒有布置傳統電視背景墻,而是打造了巨型投影幕布,占據主要的視覺焦點。側面還配有一把舒適搖椅,置于淺色地毯上,增添休閑娛樂感。
餐廳
客餐廳相連,利用頭頂燈帶及投影幕布充當空間隔斷,使得區域間獨立又分離。白色柜體沿墻布置,延伸視覺高度,中部木質裝飾板則進一步提升空間層次。

餐廳選用木質餐桌,搭配同色系鑰匙椅,打造清新靚麗感。側面用卡座代替餐椅,白色軟包靠墻延伸,節省空間的同時容納多人用餐。

另一邊則定制了通頂餐邊柜,純白無把手柜門+淺木色開放格,垂直分區兼顧收納與展示。冰箱完全嵌入柜體,與墻面平齊,減少凸出感。
廚房

廚房采用U型櫥柜布局,合理劃分洗切炒區域,打造流暢操作動線。白色吊柜+淺木色地柜的組合,賦予廚房更多生活溫度。洞洞板、調料架、隱藏垃圾桶等物品的存在,實現高效收納。
主臥

主臥采用低飽和度色調,營造清新寧靜氛圍。右側是黑色細框大窗,增強延伸感。自然光透過窗簾形成柔光效果,中國結更是完美點綴空間。

床頭選用白色軟包靠背,線條簡潔柔和,帶來舒適的睡眠體驗。旁邊是梳妝臺,立體切割造型形成層次感,整體兼具置物與坐靠功能。
次臥

榻榻米床倚窗放置,搭配淺藍色床墊,形成清新視覺層次。窗戶上方嵌入白色空調,維持墻面整潔。另一側是工作收納區,配有白色懸浮式書桌,延伸出淺木色開放式擱架,分格設計容納書籍、裝飾品。
衛生間

衛生間采用干濕分離設計,極佳滿足業主的使用需求。其中干區定制半墻造型,保障隱私性,內部預留收納空間,強化極簡感。洗漱臺+鏡柜組合,延續整體功能性。
藍光林肯公園100平北歐風格裝修效果圖實景案例
復地悅城90平地中海風格完工照實景拍攝
長源假日港灣別墅現代美式風格別墅裝修效果圖
置頂—— 知精準報價 避裝修深坑 ——
平均七年以上的設計經驗資深設計師為您服務