王爽 - 首席設計師
入行時間:2013 年 職稱:首席設計師
項目地址:海格公館
項目面積:103㎡
項目風格:法式復古風
項目施工:山水人家裝飾
工程造價:17w

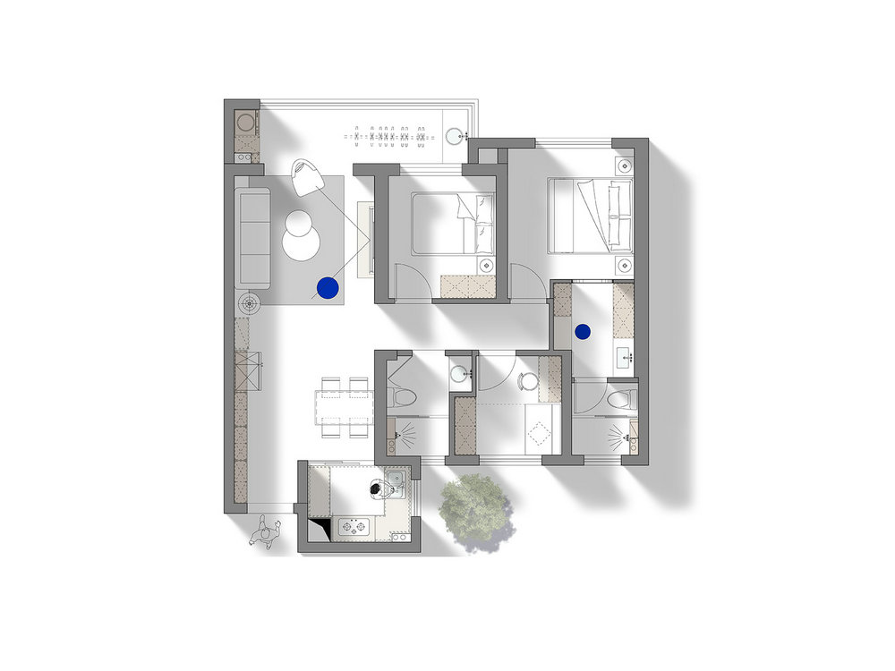
戶型解析
本案業主是一個95后小姐姐,作為工作達人,經常出差,家里偶爾父母和閨蜜朋友會過來。小姐姐本人喜歡復古元素,希望家里優雅有腔調,拒絕容易過時的網紅裝修,最后確定了法式復古風格。
空間色調以臟粉色和復古綠為主,搭配pu線條+角花的背景裝飾,自帶復古優雅感。全屋搭配胡桃色的實木家具,營造了一個輕松舒適的優雅空間。
房屋信息:三室兩廳,新房裝修。

本案的戶型缺點在于:(1)廚房比較小,沒有冰箱位置;(2)衛生間沒有干濕分離,不能實現業主想要的大洗漱臺的想法;(3)主臥衣柜位置比較尷尬,影響動線的同時,顯得主臥空間較小。

具體調整包括:(1)冰箱借用客廳餐邊柜與沙發中間的空間,擺放了復古冰箱;(2)客衛生間借用書房空間,實現了獨立的洗臉臺區域,并且確保了淋浴房濕區獨立性;(3)調整主臥門洞位置,打造雙排式衣帽間。
客廳

客廳連通陽臺,讓陽臺成為客廳延伸的一部分,進而提升整體的采光。拱形門洞造型優雅大氣,愈加美化空間。陽臺選用雙層紗簾,遮光性好,彰顯浪漫氣質。

地面通鋪柔光磚,增添幾分溫和,像是在家里沐浴著陽光。全屋通刷大面積的杏子灰乳膠漆,顯得明亮清爽。頂部設置了綠色系的飛盤燈,完美適配復古法式風。

沙發背景墻采用優雅的pu線條+角花,配合臟粉色的乳膠漆,濃濃的復古優雅感撲面而來。家具則選用綠色系的沙發,為整個客廳營造了和諧統一的色彩配搭。

客廳搭配胡桃色的實木電視柜和綠色植物,營造了一個輕松舒適的優雅空間。銜接置物落地燈,如同日落般的濃彩艷抹,格外絢爛。整體有著充足的收納環境,分區收納不雜亂。
餐廳
餐廳設計極為合理,整體豐富了空間動線。餐廳墻面用到拼色處理,低飽和的復古綠點綴其上,給人一種冷艷優雅的既視感。頂面搭配單頭的飛盤燈,烘托溫馨的餐廳氛圍。

靠墻定制了到頂的餐邊柜,選擇了帶線條的膚感模壓門。冰箱借用客廳餐邊柜與沙發中間的空間,考慮了小吉的復古冰箱,與整體的法式復古風格自然融入,不顯違和。

餐桌選用胡桃色的圓桌,經過精細的打磨和拋光,使得整體更添質感。上面擺放一些水果或餐具,提供了一個舒適的用餐環境。平常父母或閨蜜朋友到家做客,大家圍坐一起好吃好喝。
主臥

主臥采光非常好,每天早上都有朝陽作伴,再利用浪漫雙層紗簾+粉色窗簾,有種明媚公主房的感覺。房間地面通鋪實木地板,打造了一個沉靜舒適的臥室環境。

主臥墻面同樣采用pu線條結合角花設計,凸顯更多法式元素。整體用乳膠漆通刷,并做了臟粉色的分色處理,更加貼合房間主題。木色床頭搭配胡桃色床頭柜,顏色溫暖,更助于睡眠。

主臥內部還做了一個拱形門洞造型,更富有復古韻味,高級上檔次。里側打造雙排式衣帽間,且在過道盡頭定制了端景,更顯秀逸。

其中衣帽間里梳妝臺、疊衣區、抽屜都配備齊全,滿足多樣性的收納需求。尤其是將主衛洗漱臺外置,和衣帽間衣柜統一起來,從而實現了主衛的干濕分離。
次臥

次臥設計略顯簡潔,空間大面積留白,呈現干凈整潔的臥室環境。搭配同色調的到頂衣柜,保持視覺上的統一性。床鋪乃至窗簾的選擇,都用的是青綠色,更顯清爽自然。
衛生間
客衛借用一部分書房空間,實現了獨立的洗漱臺區域,其中書房備用儲物柜的深度與洗漱臺的深度剛好里外鑲嵌。洗漱臺采用臺上盆設計,整體看起來更大氣,且充滿美感。搭配圓鏡造型,增加空間通透感。

衛生間墻面鋪貼了極富法式元素的花鳥藤蔓啞光磚,給人的感覺極度舒適愜意。淋浴區被玻璃門隔在里面,相應保障了隱私性和獨立性。墻壁采用壁龕設計,便于置物。
漢江華府119平法式復古風格裝修效果圖
書院世家現代簡約風格別墅裝修效果圖
奧山世紀城歐式風格裝修效果圖
置頂—— 知精準報價 避裝修深坑 ——
平均七年以上的設計經驗資深設計師為您服務