武漢
家裝服務熱線 400-666-4637
當前位置:首頁 >裝修案例 >案例詳情

碧樂城50平loft現代風格裝修效果圖

來源:山水人家裝飾 瀏覽人數:200次 更新時間:2025-02-22

作品信息

  1. 現代 案例風格
  2. 50平方米 房屋面積
  3. 11萬 參考造價

作品詳情

項目地址:碧樂城

項目面積:50㎡

項目風格:現代風

項目施工:山水人家裝飾

工程造價:11w


碧樂城50平loft現代風格裝修效果圖


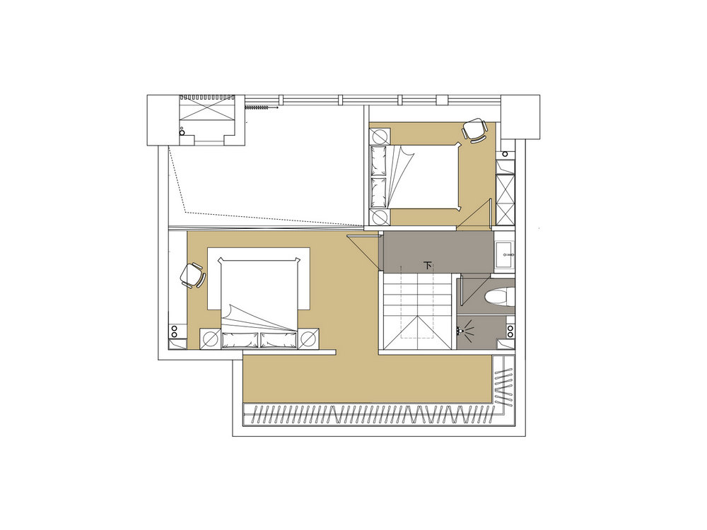
戶型解析


本案是業主買來給家里母親養老居住,常住人口為阿姨一人,業主小姐姐偶爾過來住,因而貴精不貴多,選擇了loft結構。通過打造雙層空間,實現功能分區。業主比較注重收納設計,因而要充分利用每一寸空間,將空間利用率最大化,由此打造了一個功能齊全、舒適溫馨且充滿個性的家。


碧樂城50平loft現代風格裝修效果圖


原始戶型是一個正正方方的格局,層高4.3m,相對偏矮。

 

方案設計上將客廳、廚房等公共空間留在一樓,既做了全開放式的設計,又將客廳區域做了挑空處理。這樣一方面保證了每個空間的功能性,又能讓空間之間更加融合,也使得一樓并沒有受層高影響而顯得壓抑。


碧樂城50平loft現代風格裝修效果圖


二樓則根據居住需求設計了兩個臥室和一個衛生間,附帶贈送的樓梯間設計成衣帽間,增加基礎收納。


客廳

 

碧樂城50平loft現代風格裝修效果圖


在設計伊始,充分考慮到層高問題,整體做了挑高處理。其中客廳采用開放式設計,與餐廳、廚房相連,增加空間感。大面積落地窗為室內帶來充足采光,保障了客廳的開闊明亮。

 

碧樂城50平loft現代風格裝修效果圖


入戶靠墻定制了嵌入式柜體,方便收納物品,保持空間整潔。同時洗衣機、烘干機擺在同側,并做了隱藏式處理,不露絲毫痕跡。洗手池底部懸空設計,合理放置了掃地機器人,維護地面干凈。

 

碧樂城50平loft現代風格裝修效果圖


客廳沒有布置隔斷墻,更顯通透。家具主體包括了黑色皮沙發,不過多綴飾更多在細節處作拉點元素,搭配同色調圓茶幾,打造舒適愜意的家居格調。

 

碧樂城50平loft現代風格裝修效果圖


電視背景墻采用簡約的白色墻面,加上電視內嵌,營造明顯的視覺反差。中間部分鏤空,并暗藏燈帶。底部則是黑色電視柜,和空間互為表里。吊頂自上而下懸掛了一盞大吊燈,光感十足,營造溫馨舒適的氛圍。


餐廳

 

碧樂城50平loft現代風格裝修效果圖


餐廚區域兩面均設置了聯動推拉門,黑色極窄邊框凸顯現代質感。整體可開闔可關閉,保證內外部的互動性,讓空間更加通透,從而營造大氣的餐廚區氛圍。

 

碧樂城50平loft現代風格裝修效果圖


餐廳內部做了餐島一體設計,不僅節省空間,還增加了家居的趣味性和個性化。島臺使用洞石巖板,強化了材質的肌理感,搭配天然的木質餐桌,使得一家人的就餐時光愈加親切。


廚房

 

因為做成開放式布局,廚房空間變得極大。整體采用L型的櫥柜設計,很好地劃分了實際功能區。櫥柜內嵌了各種廚房電器,節省空間之余,讓廚房更顯整潔。

 

碧樂城50平loft現代風格裝修效果圖


廚房選用原木色櫥柜和白色臺面,彰顯簡潔干凈的使用環境。大冰箱嵌于進門區域,與櫥柜完美貼合,使用動線更為流暢。


主臥

 

碧樂城50平loft現代風格裝修效果圖


二樓臥室整體以黑白灰色為呈現,使得空間相對簡約而不失單調。窗戶位置采光非常好,搭配木色百葉簾,更添幾分慵懶時尚。面前還擺放了書桌,滿足業主工作和學習需求。

 

碧樂城50平loft現代風格裝修效果圖


臥室擺放一張雙人床,床頭背景墻充分留白,營造靜謐安逸的睡眠氛圍。黑色床頭及床頭柜稍加組合,打造出一種簡潔、優雅的感覺。

 

碧樂城50平loft現代風格裝修效果圖


床尾位置定制了一組衣柜,借以增加收納空間。柜子選用實木材質,更貼近自然。整體有藏有露,相應劃分了收納區域,放置物品省心省力。


次臥

 

碧樂城50平loft現代風格裝修效果圖


房間靠墻布置了一塊擱板,原木質感讓人心曠神怡。上方可以擺放書籍及裝飾品,增加空間利用率。在床尾還設置了玻璃隔斷,起到保護作用的同時,增加通透感。

 

碧樂城50平loft現代風格裝修效果圖


臥室背景墻同樣大面積留白,搭配兩盞懸掛吊燈,營造舒適氛圍。床頭選擇暖色調,帶來自然溫馨的感覺,業主媽媽可以安心享受養老時光。

 

碧樂城50平loft現代風格裝修效果圖


同時利用墻面和角落空間,布置了一組柜子,強化家里的收納概念。借以采用階梯設計,兼具造型與個性,讓空間更顯輕盈、實在。


衛生間

 

良好的衛生間設計能極大提升家庭的生活幸福感。通過將干區外置,很好地實現干濕分離。采用壁掛式的浴室柜設計,能夠很好地消除衛生死角,展現干凈舒適的使用環境。

 

碧樂城50平loft現代風格裝修效果圖


衛生間內部安排了智能鏡,提供了優良的照明效果。旁邊是馬桶及洗手池,實際使用非常方便。濕區做了下沉式處理,水流能快速通過地漏排出,保證衛生間的干爽、清潔。





TAG標簽: 碧樂城 現代風格 關婉娟

關婉娟 - 首席設計師

入行時間:2013 年 職稱:首席設計師

算一算

我家裝修需要多少錢?

173739
m2

猜你喜歡

查看更多 >>
置頂

免費報價量房

×

算一算,你家裝修要花多少錢?

—— 知精準報價 避裝修深坑 ——

您的報價已生成完畢

  • 材料費用:21000
  • 人工費用:39000
  • 設計費用:0
  • 管理費用:0
×

預約您的設計師

平均七年以上的設計經驗資深設計師為您服務

您的稱呼:
手機號碼:
裝修小區:
房屋面積:
* 為了您的權益,您的一切信息將被嚴格保密
×

預約線下參觀

您的稱呼:
手機號碼:
* 為了您的權益,您的一切信息將被嚴格保密