盛夢婷 - 首席設計師
入行時間:2012 年 職稱:首席設計師
項目地址:國采光立方
項目面積:260㎡
項目風格:現代風
項目施工:山水人家裝飾
工程造價:40w

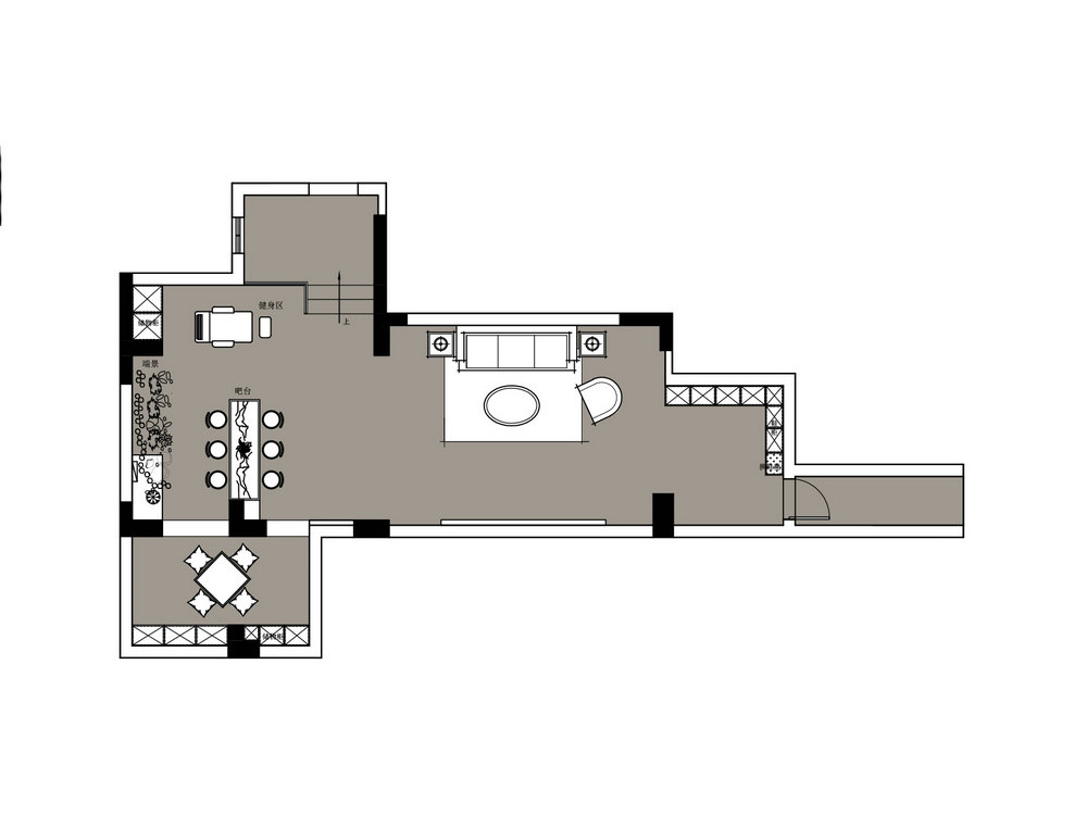
戶型解析
本案屬于別墅裝修,業主是一位優雅有氣質的女士,一家三口準備長期居住。她們覺得新家要精致有品位,同時還要賦予更多的內容與價值。空間定調現代風格,旨在打造一個奢華中帶著浪漫氣質的居住空間。整體色調以暖色調為主,搭配深色邊框點綴,冷暖色調和諧搭配,氤氳出一段雅致舒適時光。
房屋信息:別墅,新房裝修。

本案是一個大別墅,總共有三層。每一層都配備了專屬功能,以滿足業主的實際需求。
一層是公共活動區,主要的設計調整在于:(1)陽臺一分為二,并做了空間隔斷。整體融入客廳和老人房,增加空間采光和通透性;(2)客餐廳做一體設計,擴大生活面積,半開放式廚房提升生活效率。

二層是臥室休息區,保留了三個臥房功能,要求各空間功能分布合理,同時實現空間質感與韻味相結合。

地下一層是休閑娛樂區,合理配置了影音室、茶室、健身區等等,讓業主獲得更多消遣放松的機會。
門廳
別墅門廳給人的第一印象非常之寬敞豪華。直通到底式的空間設計,充分彰顯業主的身份及品位。自然采光較為充足,搭配環形吊頂及主燈照明,提供足夠的亮度來營造歡迎的氛圍。
在玄關處擺放了造型精美的過道柜,瞬間提升檔次。優雅的金屬元素與大理石搭配,視覺上形成強烈藝術張力,提升空間奢華感。尤其是地面做了一圈波導線,凸顯空間寬敞感。
客廳

客廳和陽臺打通之后,有更充足的光線進入室內,保留極佳的觀景視野。墻面采用柔和的米色,更好強化空間質感。局部運用亮色點綴,溫度與活力日益凸顯。

客廳采用無主燈設計,借助更多、更具體的局部照明,讓家變得更有高級感。墻面與天花留白,搭配柔和的燈帶,營造靜謐優雅的氛圍。地面通鋪亮面瓷磚,超顯空間大。

客廳家具的選配也極富條理品味,棉花糖大沙發擺在正中,舒適靠感讓人難以忘懷。邊上搭配巖板茶幾,真是耐看又時尚。整體用到矩形框架+橢圓邊角處理,線條流暢,富有韻律感。

電視背景墻以素雅為基調,采用簡潔利落的線條勾勒細節輪廓。電視及柜子做嵌入設計,精簡空間,騰出不少儲物及展示區域,提升家居美觀度。
餐廳
餐廳與客廳巧妙融合,打造出一個開放式的用餐區。靠墻定制組合柜,強化空間區域的收納功能。其中墻面用到紋理優美的大理石,搭配金屬框架的酒柜,凸顯奢華感。都說好馬配好鞍,好酒當然也要配好柜啦!
靠近廚房的位置,設置了一整面的餐邊柜。功能區分布合理,里側嵌入了各種電器,滿足日常生活準備的需求。冰箱更靠近廚房,優化烹飪動線,拿取物品更方便。

餐廳布置別出心裁,采用餐桌+島臺設計,實現更高規格的餐飲需要。業主喜歡做西餐和烘焙,做到一個中島臺,可以當做料理臺使用。回字型動線流暢,大家坐在一起享用美食,提升整體用餐的體驗感。
廚房
廚房櫥柜呈U型布局,采用淺灰色+黑色的色調,給人一種沉穩冷靜的感覺。深色大理石紋理的操作臺面不僅美觀,還很耐用。同時劃分了洗切炒區域,動線自然流暢,方便日常烹飪。

櫥柜的設計非常合理,上方采用淺灰色面板搭配無把手設計,使得廚房空間更輕盈協調。下方則是白色面板+金色局部點綴,顯得簡潔純凈,進而營造出舒適烹飪環境。
樓梯
L型的樓梯設計,更好精簡空間。主體部分采用大理石踏板,紋理如同天然的水墨畫,增添幾分藝術美感。底部暗藏暖光燈帶,與大理石的質感相得益彰,讓整個樓梯區域顯得高端大氣。

樓梯兩側的欄桿采用玻璃材質,不僅保證了樓梯的安全性,還增添了空間通透感。樓梯之上還有一個小陽臺,靠窗采光視野好,非常適合作為休息的小角落。
主臥

二樓陽臺一分為二,分別填補給主臥和兒童房,增加空間通透性。擁有一面超大落地窗,業主得以舒適地躺在沙發上消遣日常。搭配白色紗簾,為臥室提供一定的私密性,隨風輕輕搖曳,帶來寧靜安逸的時光。

臥室背景墻采用墻板搭配木質元素,和諧共生中彰顯秩序感。內嵌燈帶和筒燈提供均勻照明,讓整個空間變得柔和而舒適,營造溫馨睡眠氛圍。

主臥實際上做成一個大套間,內部設置了超大的衣帽間。整體做成L型,利用柜體充當空間隔斷,巧妙地實現功能分區。衣帽間柜子又大又多,能夠裝滿業主的衣服包包。其中還布置出梳妝臺,功能靈活多變。

靠近主衛的位置同樣定制了到頂衣柜,收納性能直接拉滿。主衛門采用墻體與藝術玻璃隔斷,既有效遮擋視線,又提升空間高級感。
兒童房空間大量留白,營造出寧靜和諧的氛圍。米色床頭設計獨具匠心,為孩子提供了額外的支撐和舒適度。床上鋪著粉色床單,增添一絲活潑和溫馨,躺上去更有助眠的效果。

床尾位置物盡其用,打造了一整面的衣柜兼書柜。一邊是衣柜,淺色柜門搭配金色拉手,富有品質感。另一邊則設置了學習區,擺放了書桌書椅,方便小孩平時讀書學習。其中書柜頂端安裝了燈條,利于小孩挑選書籍,細節處理滿分。
次臥

淺色調的臥室背景墻很好貫徹了簡潔裝飾風格,搭配地面的實木地板,給人一種穩重大方的感覺??繅ν瑯佣ㄖ屏艘婚T到頂的衣柜,高大簡潔的設計,讓空間更顯寬敞明亮。
書房

書桌上方制作吊柜,吊柜鏤空部分為開放格,可以放置一些書籍和擺件,既實用又美觀。兩面環窗,擁有極佳的觀景視野,窗前搭配百葉簾,將采光和景色悉數珍藏。
茶室
地下一層作為休閑娛樂區,相應配備了茶室及影音室等。下沉式設計給了茶室更多沉淀的空間,頂面鏤空,展現極致通透感。墻面鋪貼淡黃色瓷磚,搭配高大綠色植物,更顯溫馨宜人。旁邊還嵌入了到頂收納柜,可以放置一些茶具用具。

茶桌茶椅采用自然木紋設計,這種天然的質感使得空間更加貼近自然,讓人感到徹底地放松。大家坐在一起圍爐煮茶,空氣里彌漫著淡淡的茶香,讓人不禁回味無窮……
影音室

超寬敞的私人影音室,集美觀實用于一體,帶來極佳的生活體驗。墻面采用木飾面板,凸顯溫柔細膩的氣質,內置明裝燈帶,有助于營造氛圍,有明有暗,視覺感觀更立體。

灰色弧形沙發優雅大氣,局部運用亮色點綴,如亮色茶幾、裝飾擺件等,整體看上去豪華又高級。周末的時候一家人可以坐著看幾部經典電影,度過甜美的交互時光。

影音室內部裝飾比較簡潔大方,背景墻采用柔和的米色,有效提升空間質感。這樣的布置避免了干擾觀看電影時的注意力,同時更好保護眼睛及視力。
衛生間
衛生間浴室柜采用掛墻式設計,有效阻止潮氣延伸到柜子里面。雙盆浴室柜質地優良,美觀大方,十分顯檔次。大家再也不用為了搶衛生間而著急,極大提升了整體的使用效率。

淋浴區用玻璃門做了保護,使得洗漱區和淋浴區完全分隔,可以供多人使用。經典的黑白配色,為浴室增加更多活力。
露臺

家里二樓還有一處超大的露臺,向陽的位置可以栽花種樹。自然景觀的融入,使得空間愈加寬敞開闊。地板墻面均采用了木質材料,給人一種溫暖而自然的感覺。

露臺一側還打造了舒適的陽光房。一排大型玻璃窗戶構成了主要的視覺焦點,不僅提供了極佳的視野,還讓室內與室外空間形成了無縫連接。旁邊還有一個超大的遮陽棚,為露臺增添了幾分時尚感。

陽光房內部擺放了一套木質家具,整體設計簡約而不失現代感。無論是用餐、燒烤、休息或是閱讀,都是非常理想的選擇!
漢口新界89平兩室兩廳森系北歐風格裝修案例實景拍攝
百瑞景100平現代風格裝修效果圖
金都漢宮185平輕奢風格裝修效果圖
置頂—— 知精準報價 避裝修深坑 ——
平均七年以上的設計經驗資深設計師為您服務