武漢
家裝服務熱線 400-666-4637
當前位置:首頁 >裝修案例 >案例詳情

雙墩社區130平現代風格裝修效果圖

來源:山水人家裝飾 瀏覽人數:254次 更新時間:2023-10-31

作品信息

  1. 現代 案例風格
  2. 130平方米 房屋面積
  3. 18萬 參考造價

作品詳情

項目地址:雙墩社區

項目面積:130㎡

項目風格:現代風

項目施工:山水人家裝飾

工程造價:18w


雙墩社區130平現代風格裝修效果圖


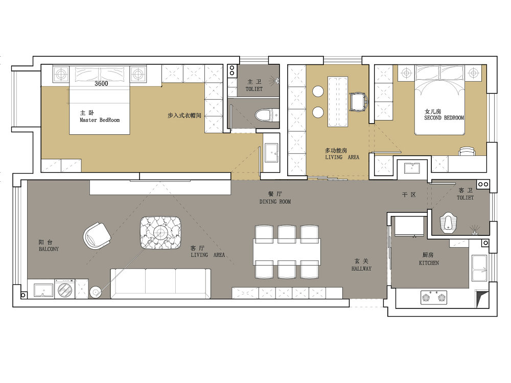
戶型解析


生活本該處處都有溫度。本案業主是溫馨的一家三口,他們對于品質生活格外追求,通過重新規劃家居布局,以期展示一個有溫度、有品質的家。全房色調以暖灰色、木色和木紋色為主,搭配類似巖板、墻板等材質,從而打造出一個現代有格調的生活空間。


雙墩社區130平現代風格裝修效果圖


房屋信息:三室兩廳,新房裝修。


雙墩社區130平現代風格裝修效果圖


本案戶型周正,南北通透,且擁有不錯的采光通風條件。根據業主生活需求,對房子進行重新規劃設計:(1)客餐廳一體化設計,陽臺完全打通,融入客廳,從而放大空間;(2)主臥做成套間,并設計開放式衣帽間,整體既實用又有品質。(3)兩個次臥合并成一個大臥室,并設計衣帽間兼多功能房。


客廳


雙墩社區130平現代風格裝修效果圖


通過采用客餐廳一體化設計,延伸出不少視覺感,讓客廳使用愈加方便。陽臺完全打通,整體融入客廳,放大空間的同時,強化更多采光效果。


雙墩社區130平現代風格裝修效果圖


地面通鋪大塊暖灰色地磚,空間更顯通透自然。頂上是懸浮吊頂的設計,搭配無主燈及軌道燈設計,讓空間看上去更為寬敞,整體感覺更具現代韻味。


雙墩社區130平現代風格裝修效果圖


沙發背景墻選用墻板+木格柵,張弛有度,無時無刻散發著靈動的美?;疑嘲l正中擺放,搭配圓形巖板材質茶幾,彰顯更多時尚氣質。同時利用墻體空隙定制柜體,內置燈帶,使寬敞客廳更顯明亮。


雙墩社區130平現代風格裝修效果圖


電視背景墻采用巖板搭配實木墻板設計,兼具了品質和溫度。整體以白色+木色為主,打造出多層次的精致家居氛圍。


雙墩社區130平現代風格裝修效果圖


為極致利用空間,陽臺區域合理打造出晾曬洗衣區。整面到頂的柜墻,便于平時的家政收納,洗手池+洗衣機的布置擺放,進一步滿足業主的實際需要。對面則預備了閑適桌椅,家里來客時可以隨時安排。


餐廳


雙墩社區130平現代風格裝修效果圖


客餐廳同屬于一片空間,搭配上統一的吊頂設計,更顯大氣寬敞還好看。而針對空間區分問題,客廳用地毯鋪墊,柜體的點到為止則更好地界定餐廳區域。


雙墩社區130平現代風格裝修效果圖


進門左手邊的柜體既是鞋柜,也是餐邊柜。暖灰色柜門搭配木紋色背景,讓整個空間在視覺上趨近統一,使其成為這個家較為吸睛的一處景致。大范圍的開放格布置,不僅方便坐著換鞋,還擔任了裝飾收納的功能。


雙墩社區130平現代風格裝修效果圖


廚房在餐廳對面,兩個功能區之間利用黑框玻璃門進行隔斷,這樣既保證了室內的通透感,又避免了油煙蔓延帶來的困擾。白色墻面用時鐘掛飾作為點綴,精致而且很低調。


雙墩社區130平現代風格裝修效果圖


巖板餐桌搭配米白色餐椅,充分彰顯裝飾性元素,完美還原空間的融合美。在暖色燈光的映照下,整體搭配相得益彰,使餐廳空間充滿生活的氣息。


廚房


廚房空間相對寬敞,整體打造了U型櫥柜,最大化利用廚房臺面。由此合理規劃出臺盆區、炒菜區及準備區等位置,借此滿足更多廚房實需。


雙墩社區130平現代風格裝修效果圖


櫥柜選用淺咖色柜門,顏色非常好看,且更上檔次。強大的儲物功能,同樣很好地滿足了業主的日常收納需求。在白色墻面和燈光的襯托下,顯得簡潔又大方。


主臥


主臥整體以淺色系為主,柔和的色彩賦予了臥室平靜的氛圍。石膏線裝飾的天花板搭配無主燈設計,致使空間視覺感無限延展。


雙墩社區130平現代風格裝修效果圖


床頭背景墻定制了半墻造型,一半墻板一半木飾面,更富時尚潮流。搭配隱藏燈帶,強化視覺效果。舒適床品的自然融入,愈加烘托了溫馨舒適的睡眠氛圍。


雙墩社區130平現代風格裝修效果圖


主臥設計了開放式衣帽間,毫無任何遮掩,看著格外寬敞。L型的柜體設計具備強大的儲物功能與實用性,同時留出足夠寬敞的過道,用作休閑放松區也未嘗不可。身后則是家里的主衛,整體設計環環相扣。


雙墩社區130平現代風格裝修效果圖


衣帽間柜面選用淺咖色調,搭配黑色豎條形拉手,給人營造一種美的視覺沖擊。結合地面的實木地板,更顯一份溫暖自在。


女兒房


女兒房的設計較為清新自然,簡單的雙眼皮吊頂設計,呈現簡潔清爽的視覺效果。窗戶設計得很大,以此保留充沛的采光通風環境,特別好看實用。


雙墩社區130平現代風格裝修效果圖


裝修一切從簡,為的是營造一個靜謐、易于入睡的氛圍。隱藏式的燈帶設計,既有照明功能又能渲染空間。藍灰色的床頭背景安靜沉穩,美好的空間能讓人卸掉一天的疲憊。


雙墩社區130平現代風格裝修效果圖


床尾處設置了小女兒最喜歡的梳妝臺。墻面定制了格柵造型,富有層次感。上方安裝擱板架,方便儲存各類化妝用品。加上梳妝桌椅的準備,這里還可以成為房間的辦公區域,一舉多得。


雙墩社區130平現代風格裝修效果圖


一整面咖色衣柜搭配條紋拉手不僅提升質感,同時也大大提高了空間的收納需求。這樣的色彩搭配給空間帶來輕奢的同時,又保持了溫馨的調性。


雙墩社區130平現代風格裝修效果圖


臥室背后則是一個大的步入式衣帽間,設計得非常合理、井井有條,會讓空間看起來充滿格調,這符合業主對于生活的追求,更經得起時間的洗禮。衣帽間里面功能分區包括了掛放區、疊放區、內衣區等,功能詳盡齊備。


衛生間


通過將干區外置,很好地實現衛生間干濕分離。深藍色浴室柜選用懸浮樣式,不沾地,便于衛生清潔。搭配鏡柜,整體呈現美觀時尚,同時保留了充足的儲物空間。


雙墩社區130平現代風格裝修效果圖


衛生間內部借助玻璃隔斷,有效隔開馬桶區和洗浴區,彼此之間互不干擾,避免水汽侵襲。衛生間通鋪墻地一體磚,空間更顯通透大氣。






TAG標簽: 雙墩社區 現代風格 盧可為

盧可為 - 主任設計師

入行時間:2015 年 職稱:主任設計師

算一算

我家裝修需要多少錢?

173739
m2

猜你喜歡

查看更多 >>
置頂

免費報價量房

×

算一算,你家裝修要花多少錢?

—— 知精準報價 避裝修深坑 ——

您的報價已生成完畢

  • 材料費用:21000
  • 人工費用:39000
  • 設計費用:0
  • 管理費用:0
×

預約您的設計師

平均七年以上的設計經驗資深設計師為您服務

您的稱呼:
手機號碼:
裝修小區:
房屋面積:
* 為了您的權益,您的一切信息將被嚴格保密
×

預約線下參觀

您的稱呼:
手機號碼:
* 為了您的權益,您的一切信息將被嚴格保密