項目地址:漢陽印象
項目面積:135㎡
項目風格:現代風
項目施工:山水人家裝飾
工程造價:25w

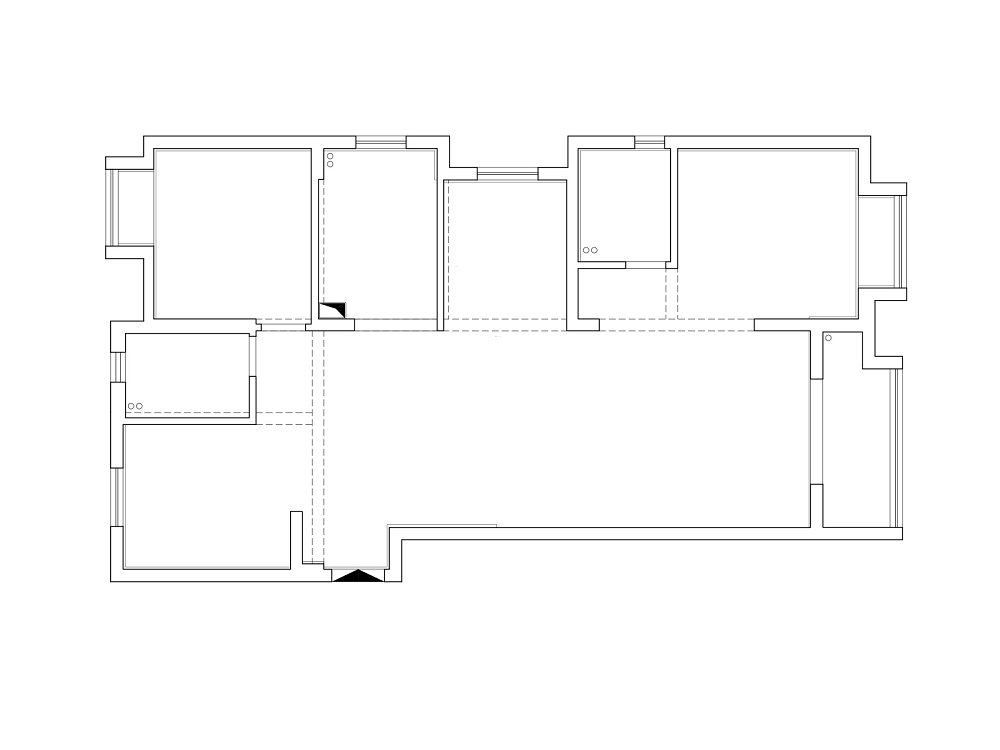
戶型解析

本案完美詮釋了現代極簡風格的本質——「以簡馭繁」。全屋大量運用黑白色系搭配,在冷調空間中注入沉穩氣質。流暢線條搭配時尚家具,勾勒出生活的精致品位。從智能家電的隱藏式設計到裝飾品的藝術化表達,極簡空間處處充滿著感性的生活溫度,化身業主身心休憩的治愈天地。

本案戶型方正,南北通透,針對業主的居住需求,對房型做出如下調整:(1)打通陽臺和客廳,增加生活面積;(2)客餐廳采用開放式布局,保持空間通透感;(3)原本廚房較小,通過納入部分空間,擴大其使用面積,并定制了島臺;(4)公衛向外規劃了干區,有效實現干濕三分離,提升使用效率。
客廳

打通陽臺并連接客廳,空間頓時豁然開朗。整面落地窗將戶外光線引入室內,仿佛為客廳鍍上一層柔和的光暈。一盆大型琴葉榕綠植倚墻而立,給極簡空間注入了自然生命力。

天花板采用懸浮頂+無主燈設計,嵌入式筒燈與軌道燈相結合,既滿足日常的功能照明,又提升了空間層次感??臻g色調以黑白色為主,提高了空間線條的流暢度,整體更顯明快干凈。

墻面應用白色乳膠漆,搭配藝術掛畫,打破色彩單調,豐富不少生活情境。深色皮沙發勾勒出優雅輪廓,其低矮的扶手與寬大坐墊暗示著極佳的包裹感,舒適度滿分。沒有選用茶幾,而是靠墻擺放了黑色斗柜,這樣不僅擴大了活動空間,還充分彰顯業主品味。

背景通過黑色面板與白色乳膠漆的拼接處理,在簡潔中注入層次變化。其中電視墻采用懸空設計,凸顯層次感,并借助弧形處理,絲滑過渡到陽臺區。底部安裝地臺,整體形成視覺平衡,更顯踏實可感。值得注意的是,墻面還做了隱形門的設計,隱蔽性極強。
餐廳

客餐廳采用開放式布局,與廚房區域形成視覺銜接,打造出寬敞明亮的流動空間。入戶墻面采用鏤空設計,更有造型感,同時強化了空間通透性。

餐廳定制了一整面的餐邊柜,整體用到白色柜門搭配黑色裝飾線條,既滿足日常的儲物需求,又成為視覺延伸的載體。中間陳列區利用材質混搭增強空間層次感,利于營造雅致氛圍。

黑色餐桌穩居餐廳中央,四把白色餐椅環繞擺放,椅背與餐桌邊緣保持恰到好處的距離,預留出流暢的通行動線。同時借助花藝擺件,提升餐廳美觀度,打造舒適用餐環境。
廚房

廚房空間比較大,采用環形布局,以中央島臺為核心形成黃金三角動線。一側配置了灶具和水槽,滿足了日常烹飪、準備的需求。另一側則安裝了嵌入烤箱和冰箱,中西廚分離,實現飲食的更多可能性。

中央島臺既作為操作延伸區,又承擔著早餐吧臺的功能,確保了烹飪流程的流暢性。白色臺面搭配黑色高腳椅,簡潔實在,能讓業主的使用體驗舒適而愜意。
主臥

主臥整體色調以淺色系為主,墻面采用珍珠白乳膠漆,搭配壁燈采光,營造溫馨自然的背景氛圍。1.8m的大床安然擺放,兩側床頭柜形成對稱平衡。黑白條紋床品以3:7的比例分布,既顯簡潔干練,又避免過度刻板。

房間內部打造通頂衣柜,一門到頂的造型,既滿足儲物需求,又形成功能分區的隱性界定。白色柜門同墻面實現柔和過渡,空間更顯整潔清爽,更利于業主身心休憩。

兒童房墻面做了白色+木色的分色處理,增加溫暖和親近自然的感覺。床頭壁燈和頂部吸頂燈形成形態呼應,保障了優良的照明效果。藍色布藝床格外顯眼,搭配可愛造型的床頭柜,以強化房間的活力和趣味性。

臥室靠墻定制了整面白色衣柜,保留了充足的收納空間。其中柜子做了五個圓形鏤空開口,形成天然的裝飾元素,內置LED燈帶,方便衣物取放。
書房

懸浮書桌沿墻面展開,形成高效的使用動線。同側定制內嵌式書柜,既滿足收納需求,又借助開放格設計增強空間互動性。當百葉簾過濾進柔和的光線,整個書房環境煥然新生。
衛生間

衛生間懸浮式洗手臺搭配鏡柜,使用起來更便利。緊鄰智能馬桶,其隱藏式水箱設計節省空間。淋浴房借助玻璃隔斷實現干濕分離,確??臻g清爽。
東興天地現代風格裝修效果圖
中建鉑公館現代風格實景裝修效果圖
聯通佳苑簡歐風格裝修效果圖
置頂—— 知精準報價 避裝修深坑 ——
平均七年以上的設計經驗資深設計師為您服務