武漢
家裝服務熱線 400-666-4637
當前位置:首頁 >裝修案例 >案例詳情

金龍花園100平現代風格裝修效果圖

來源:山水人家裝飾 瀏覽人數:219次 更新時間:2024-06-21

作品信息

  1. 現代 案例風格
  2. 100平方米 房屋面積
  3. 15萬 參考造價

作品詳情

項目地址:金龍花園

項目面積:100㎡

項目風格:現代風

項目施工:山水人家裝飾

工程造價:15w

金龍花園100平現代風格裝修效果圖

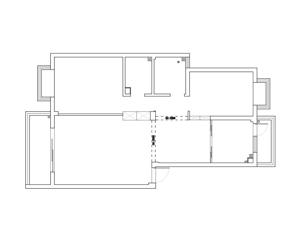
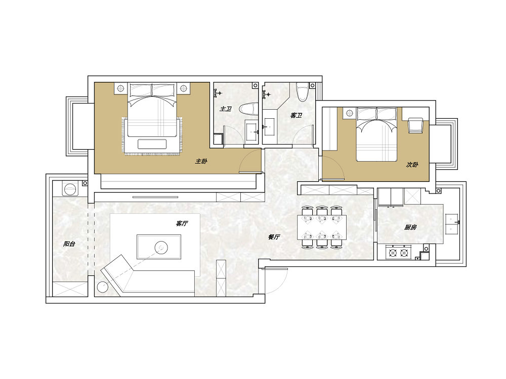
戶型解析


本案屬于舊房改造,業主是國企職員,一家三口居住,家庭注重實用性,希望家里色彩鮮明,簡潔明了。為此以明確的現代風格為基底,散發出一種獨特的藝術魅力。清新的色調搭配天然石材、實木墻板,呈現出時尚新穎的空間氛圍。業主得以在優雅美好的藝術氣息中享受溫暖陽光下的藍調生活,體味屬于自己的靜謐時光。


金龍花園100平現代風格裝修效果圖


房屋信息:兩室兩廳(改),舊房改造。


金龍花園100平現代風格裝修效果圖


原始戶型中,入戶門正對陽臺,風水不好,所以在入戶門設計了玄關,改善風水的同時,增加儲物空間;另外將主臥與客廳的隔墻改成整面的衣柜,大大提高了主臥的收納性。


客廳


金龍花園100平現代風格裝修效果圖


陽臺打通,直接連結客廳,視野愈加開闊。整體生活面積大幅增加,空間明朗開放。大面積的玻璃采光+紗簾裝飾,更好強化家的空間感。


金龍花園100平現代風格裝修效果圖


客廳裝上有層次感的跌級吊頂,顯得更加美觀。在兩級的中間位置安裝有燈,很好地兼顧四周照明,營造優良的居住氛圍。地面800*800的磚料通鋪,效果真是透亮清爽!


金龍花園100平現代風格裝修效果圖


客廳墻面滿刷乳膠漆,使得整個層面愈加整潔,也更有光澤度。選用咖色調大象耳朵沙發,很搭客廳色調,給人以舒適安穩的體驗。綠色毛毛蟲沙發充當跳色,同綠植盆栽實現優雅互動,凸出幾分清新之意。


金龍花園100平現代風格裝修效果圖


電視背景墻運用簡明的波斯灰天然石材與暖色的實木墻板,單調的墻面頓時鮮活起來,呈現出優雅沉著的格調。地臺位置做收納柜,滿足更多的儲物需求。


金龍花園100平現代風格裝修效果圖


陽臺更多當做生活功能區在使用,靠墻位置安裝了洗手池+洗衣機,滿足一定的洗衣晾曬需要。上方定制吊柜,起到輔助收納的作用。


餐廳


鑒于業主對餐食有著高標準高要求,整體餐廳設計顯得格外大氣?;刈中蔚巾斖癸@層次感,配上四周射燈,打造通透明亮的餐廳格局。


金龍花園100平現代風格裝修效果圖


為滿足更多儲物需要,餐廳內部定制了整面餐邊柜,直接拉到頂。白色柜門搭配木色開放格,在視覺上更顯敞亮和溫馨。旁邊黑色玻璃柜作為點綴,里面可以擺放各種酒品及裝飾物。


金龍花園100平現代風格裝修效果圖


巖板餐桌整潔耐臟,更好打理。用橙色和灰色餐椅加以裝飾,增添餐廳更多色調,讓人有一種眼前一亮的感覺。大家和睦地坐在一起吃飯聊天,分享日常。


廚房


廚房空間寬敞大氣,整體布局合理規范。用雙聯動推拉門隔開餐廳和廚房,保障了空間的通透性。尤其是把冰箱放在開頭位置,確保了拿放物品的便捷性。


金龍花園100平現代風格裝修效果圖


廚房做了U型的櫥柜布局,最大化利用內部空間。同時很好地劃分了烹飪區、臺盆區等區域,以此實現優良的洗切炒動線。淺色調的櫥柜,給人以干凈整潔的視覺感受。


主臥


金龍花園100平現代風格裝修效果圖


因人們對于找尋內心精神體驗的愿望不斷強烈,主臥設計更加簡潔化、輕便化。沒有物品的大量堆砌,愈加注重由內向外的氣質衍生,包括飄窗的設計在內,使得整體空間更具獨特的設計氣息與藝術品味。


金龍花園100平現代風格裝修效果圖


主臥大面積留白,以保持白色墻面的純凈和包容,讓軟裝表現更為出眾。那一抹清新的抹茶色,讓人感受最沁人心脾的舒爽味道。就像是陰影婆娑的草地,帶著被軟化的觸感,恬淡又安逸。


金龍花園100平現代風格裝修效果圖


另外將主臥與客廳的隔墻改成了整面的衣柜,從而大大提高了主臥的收納性,整體布置更顯干凈清爽??衩娼Y合木色地板,鋪陳出和諧自然的居室韻味。


次臥


金龍花園100平現代風格裝修效果圖


次臥布置同主臥保持一貫性,給人的感覺甚是清爽。相比于主臥的抹茶色,次臥更多用到了奶油色調,更加地甜糯溫馨。


金龍花園100平現代風格裝修效果圖


空間色調明亮,凸顯出簡潔大氣的質感。奶油色床頭+床頭柜,共營清爽的家居氛圍感。結合到頂的衣柜,滿足日常生活的各種需要。


衛生間


淺色調的衛生間,通鋪墻地一體磚,擺脫了原本形式上的單調。懸空浴室柜搭配鏡柜,滿足更多收納功能,同時也強化了實際體驗感。


金龍花園100平現代風格裝修效果圖


衛生間內部進行了合理地規劃布置,打造鉆石型淋浴間,并用玻璃護門整體隔開,保障了一定的私密性。旁邊則是馬桶區,區域之間互不影響,相應避免水汽滋擾。




TAG標簽: 金龍花園 現代風格 毛凱

毛凱 - 首席設計師

入行時間:2006 年 職稱:首席設計師

算一算

我家裝修需要多少錢?

173739
m2

猜你喜歡

查看更多 >>
置頂

免費報價量房

×

算一算,你家裝修要花多少錢?

—— 知精準報價 避裝修深坑 ——

您的報價已生成完畢

  • 材料費用:21000
  • 人工費用:39000
  • 設計費用:0
  • 管理費用:0
×

預約您的設計師

平均七年以上的設計經驗資深設計師為您服務

您的稱呼:
手機號碼:
裝修小區:
房屋面積:
* 為了您的權益,您的一切信息將被嚴格保密
×

預約線下參觀

您的稱呼:
手機號碼:
* 為了您的權益,您的一切信息將被嚴格保密