武漢
家裝服務熱線 400-666-4637
當前位置:首頁 >裝修案例 >案例詳情

琨瑜府188平美式輕奢風格裝修效果圖

來源:山水人家裝飾 瀏覽人數:253次 更新時間:2023-10-27

作品信息

  1. 輕奢 案例風格
  2. 188平方米 房屋面積
  3. 35萬 參考造價

作品詳情

項目地址:琨瑜府

項目面積:188㎡

項目風格:美式輕奢風

項目施工:山水人家裝飾

工程造價:35w


琨瑜府188平美式輕奢風格裝修效果圖


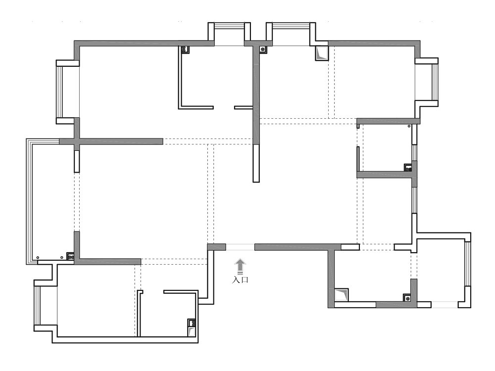
戶型解析


偏愛美奢的人骨子里都住著一個薩凡納,他們希望讓柴米油鹽的日子充滿詩意,給生活些許精致、爛漫與靈動…本案業主是幸福的一家三口,平時偶爾父母會來小住片刻。房屋整體風格以女主喜愛的暖調美+男主偏愛的冷調奢為主,簡凈雅致的冷暖交替,即使褪去所有家具軟裝僅存留硬體結構,依舊透散著優雅純凈的韻味,讓人難以忘懷……


房屋信息:四室兩廳,新房裝修。


琨瑜府188平美式輕奢風格裝修效果圖


本案戶型方正,南北通透,主要的戶型問題在于:(1)客廳梭門小,采光度過低;(2)廚房空間偏??;(3)主臥缺少衣帽間;(4)衛生間劃分不合理,主衛功能性不夠,老人房衛生間采光不足。


琨瑜府188平美式輕奢風格裝修效果圖


為此針對如上問題,相應提出改良方案:(1)客廳和陽臺實現通體化,增加采光度;(2)廚房以中西結合形式呈現,外面保留吧臺區域;(3)主臥做成套間樣式,合理設計出衣帽間;(4)重新設計主衛區域,并做了三分離式設計,老人房實現最大儲物的同時提升衛生間采光。


客廳


琨瑜府188平美式輕奢風格裝修效果圖


陽臺整體納入客廳,整個空間格局變得寬敞大氣。陽臺采用弧形門套設計,相應柔化空間。大大的落地窗采光效果很好,搭配潔白窗簾,營造極佳的氛圍感。


琨瑜府188平美式輕奢風格裝修效果圖


空間整體采用清爽干凈的淺色系,頂部大面積石膏線條的裝飾有效提升空間質感。地面通鋪灰色地磚,大氣又端莊。


琨瑜府188平美式輕奢風格裝修效果圖


沙發背景墻大面積應用了巖板,質感非常不錯。細節處加入了部分銅制金屬,讓整體看起來更加精致優雅。家具方面,深藍色半月沙發為主體,坐感輕松又顯自然。


琨瑜府188平美式輕奢風格裝修效果圖


旁邊還有紅色單人位沙發作為跳色搭配,豐富了客廳的鮮艷色調。電視背景墻則用了護墻板,并定制了內嵌柜體,兼具顏值與實用性。


琨瑜府188平美式輕奢風格裝修效果圖


針對業主提出的個性化需求,在陽臺位置打造了一個電腦區。并利用到頂展示柜充當空間隔斷,上方同樣打造灰色吊柜,儲物性能拉滿,平時IT辦公也有了足夠保障。


餐廳


琨瑜府188平美式輕奢風格裝修效果圖


餐廳延續客廳的主調,圓形餐桌搭配深藍色+灰色餐椅簡約優雅。搭配墻面的藤編造型,看起來格外時尚大方。美輪美奐的輕奢吊燈,給每日用餐烘托了溫馨情調。


琨瑜府188平美式輕奢風格裝修效果圖


餐廳靠墻打造了整面餐邊柜,直接拉到頂。帶紋路的灰色柜門簡潔低調,中間鏤空的位置由大理石點綴,透著一絲輕奢質感。儲藏功能也很強大,便于業主放置一些酒品飲料。


琨瑜府188平美式輕奢風格裝修效果圖


除此之外,空間里還打造了一塊吧臺區域,進而有效實現中西廚分離,家里類似烤面包、做西餐等事宜都會在這里展開。又因廚房面積不夠大,將雙開門冰箱外置,整體形成優良的烹煮動線。


琨瑜府188平美式輕奢風格裝修效果圖


吧臺整體做成U字型,環形設計讓做飯的人更易上手準備。一同打造了灰色吊柜+櫥柜,顯得簡約時尚還特別地干凈,有助于實現其的價值最大化。


過道


客廳和餐廳采用開放式布局的手法,保證了大面積空間的通透感。整體視距被無限拉伸,格局更顯寬敞自在,身處這樣的大宅子,心里別提有多美啦!


琨瑜府188平美式輕奢風格裝修效果圖


同時墻面還做了燈光的點綴,給空間披上一層溫柔的外衣。尤其是C位的銀質裝飾物,讓家美出新感覺。下方的位置擺放了一個金屬過道柜,增添更多美觀性。


廚房


琨瑜府188平美式輕奢風格裝修效果圖


廚房采用聯動推拉門,很好地隔絕外部環境帶來的不利影響,整體形成通透的廚房空間。櫥柜做成傳統的L型,各區配置合理,這樣的工作臺面更是滿足多人合作烹飪的需要。


琨瑜府188平美式輕奢風格裝修效果圖


大面積臺面留給臺盆區及準備區,而將烹飪區放在邊角區域,最大化利用廚房空間。魚肚白瓷磚鋪滿廚房,在淺色系吊柜+地柜的組合搭配下,呈現出干凈整潔的廚房環境。


主臥


簡約的咖色系讓臥室在整體看起來比較寬敞,地面滿鋪實木地板,為空間增添了一絲柔和感。同時保留原有飄窗,保障日常采光充足強烈。


琨瑜府188平美式輕奢風格裝修效果圖


臥室的飄窗被調整成更實用的空間,打造出得天獨厚的書桌區。寬大的書桌臺面滿足任意工作學習事宜,墻壁留空的部分,可收納書籍、小物品,讓整體看起來充滿書卷氣。


琨瑜府188平美式輕奢風格裝修效果圖


大面積的純色設計,難免會帶來單調感,而灰色的融入卻恰到好處,使空間氛圍得以緩和,冷暖色交替看起來更協調平衡。同時墻面做了造型設計,搭配明晃晃的吊燈,增添更多層次美。


琨瑜府188平美式輕奢風格裝修效果圖


臥室的另一邊,則設置了寬敞的衣帽間區域。利用柜體充當臥床區和衛生間的隔斷,彼此之間互不影響,保障了一定的私密性。


琨瑜府188平美式輕奢風格裝修效果圖


大面積的柜體設計,讓房間看起來整潔又明亮??耖T搭配金色拉手,有股天然的貴氣。整體收容量驚人,通過對柜內進行合理規劃,更好地滿足業主各項的儲衣實需。


次臥


次臥設計整體延續主臥的風格,賦予了豐富的風格個性。飄窗區域同樣被改造成書桌區,實用性很強。整個設計和諧統一,給人以溫馨舒適的感覺。


琨瑜府188平美式輕奢風格裝修效果圖


咖色背景的空間搭配深色靠背床,凸顯出更多自然與親切感。點綴了個性十足的吊燈,使空間變得活力時尚,符合當代年輕人的審美觀念。


琨瑜府188平美式輕奢風格裝修效果圖


靠床的位置沒有定制衣柜,而是在進門口就設置了到頂柜體。整體采用入墻式的安裝方式,和墻壁很好地結合在一起,一體無縫,顯得更為緊湊嚴密。


書房


琨瑜府188平美式輕奢風格裝修效果圖


書房區域地面做了部分抬升,將空間隔成兩部分:一個是辦公區,一個是休閑放松區。墻面同樣定制了通頂柜體,內置開放格,以此滿足業主更多的收納需要。業主可以舒適地在上面休息、做瑜伽,享受陽光從窗戶灑落的剎那美好。


琨瑜府188平美式輕奢風格裝修效果圖


辦公區域采用懸空書桌設計,方便下腳的同時,易于日常清潔衛生。側面打造了一體式的原木柜體,獨具造型美,內含玻璃柜門,在暖光燈飾的映襯下,散發著智慧的光芒。


衛生間


衛生間采用了干濕三分離的設計手法,極大程度提升了整體的使用效率。浴室柜采用雙盆設計,方便家里人同時使用,并不顯擁擠。搭配智能鏡及不銹鋼置物架,進一步強化實用性能。


琨瑜府188平美式輕奢風格裝修效果圖


衛生間內部通鋪墻地一體灰色磚,空間更顯通透干凈。馬桶區和洗浴區完全分開,進而保持沐浴之外的場地足夠干燥衛生,由此呈現一個整潔美觀的浴室環境。



TAG標簽: 琨瑜府 美式輕奢風格 黃小偉

馬茹 - 首席設計師

入行時間:2008 年 職稱:首席設計師

算一算

我家裝修需要多少錢?

173739
m2

猜你喜歡

查看更多 >>
置頂

免費報價量房

×

算一算,你家裝修要花多少錢?

—— 知精準報價 避裝修深坑 ——

您的報價已生成完畢

  • 材料費用:21000
  • 人工費用:39000
  • 設計費用:0
  • 管理費用:0
×

預約您的設計師

平均七年以上的設計經驗資深設計師為您服務

您的稱呼:
手機號碼:
裝修小區:
房屋面積:
* 為了您的權益,您的一切信息將被嚴格保密
×

預約線下參觀

您的稱呼:
手機號碼:
* 為了您的權益,您的一切信息將被嚴格保密