陳磊 - 首席設計師
入行時間:2007 年 職稱:首席設計師
項目地址:濱江苑
項目面積:140㎡
項目風格:現代風
項目施工:山水人家裝飾
工程造價:20w

本案地址位于二七濱江商務區,業主家是商人家庭,實際居住人口只有三個人。他們住久了的老宅,想重新改頭換面一番,通過合理布局規劃,保留三房兩廳格局。材質以灰色,木紋色系家居為主,所選品牌均是國內一線大牌,有效提升了整體裝修檔次,營造出寬敞氣派、整潔大方的格調。

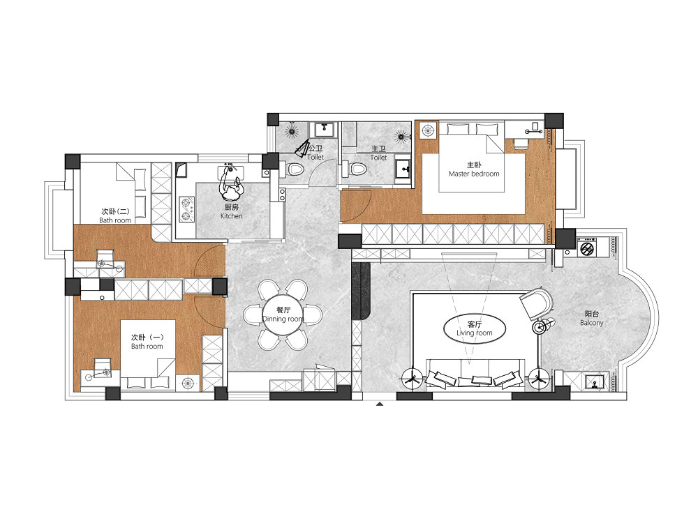
房屋信息:三室兩廳,舊房翻新。

本案房型方正,南北通透。因為是舊房翻新,主要是將一部分老舊的、不符合當前使用習慣的部分予以拆除修正,主要包括:(1)打開空間視野,將陽臺整體納入客廳,增加采光及使用面積;(2)用樓梯連接高低區,巧妙聯系客餐廳;(3)空間各處大量打造柜體,以滿足業主的日常收納所需。

打通陽臺,空間整體形成寬敞明亮格局?;⌒侮柵_+大落地玻璃,保證極佳的采光,觀景休閑一應俱全。同時陽臺配備晾曬功能,到頂收納柜以及嵌入式洗衣機,盡可能多地滿足業主的生活需要。

客廳是最主要的公共活動空間,通過做了無主燈設計,確保整體空間的高度性??拷嘲l區,相應定制了木紋吊頂+燈帶,充分彰顯了材質與顏色的質感及設計感。

客廳背景墻選用墻板+木飾面的材質,質感異常豐富。搭配輕奢精致的家具,如灰色皮沙發、黃色單人沙發及面前巨大的巖板茶幾。整體布局合理規范,保持舒適坐臥環境的基礎上,方便拿取物品,展現現代大方的空間。

魚肚白的懸空電視背景墻搭配木飾面,顯得溫潤又自然,外加燈帶的點綴,營造極強的氛圍感。電視內嵌,外加黑色柜體做對比色,色調變得鮮明獨特。旁邊還設置了到頂的展示柜,黑色玻璃下各種展品若隱若現。

客餐廳互有連通,用樓梯連接高低區,拉近彼此的空間距離。同時利用玄關柜充當空間隔斷,保障基礎收納。地面則通鋪大理石系列的深灰色大地磚,更顯大氣。

餐廳天花同樣做了回字形吊頂,周圍一圈用燈帶點綴。主燈造型精美,更好地適配周圍環境,渲染了溫馨舒適的就餐氣氛。

由于廚房空間上的限制,將冰箱外置,更好地利用室內空間??繅Υ蛟炝说巾數目瓦吂?,整體儲物量極大。同時還準備了水吧臺區域,平時喝茶喝咖啡都在這邊操作,滿足業主多方位的餐飲需求。

餐廳家具選用巖板圓形餐桌,完美為空間聚氣。平時邀請好友毫不吝嗇,搭配多把餐椅,能夠很好地容納多人就餐。圓潤邊角的巧妙設計,有效防止意外磕碰,消弭部分安全隱患。
廚房是一個封閉空間,利用雙拉玻璃門作為打開空間的門戶,視覺上更顯大。同時玻璃門和窗戶提供了廣闊的光線,方便業主烹飪準備餐食。

廚房內部,整體做成L型的櫥柜布局,最大化利用邊角空間。將臺盆區和烹飪區等區域安排地妥妥當當,進而形成優良的烹飪動線,對于簡化流程、增加效率提供極大幫助。

通過對廚房的合理安排,保留出足夠的收納空間。吊柜+地柜的布置,易于放取一些烹飪中所需的用具。淺色系的櫥柜造型,使廚房看上去干凈、整潔。

主臥空間寬敞大氣,鋪貼木地板,更顯溫馨。飄窗區域被合理利用,設置了一整排邊柜,方便即時儲物。同時也可當做書桌臺,配上椅子,直接化身書桌讀寫區。

主臥以咖色的墻面為基礎,床頭墻側裝點一個吊燈,整體營造優雅安靜的睡眠氛圍感。另一邊則是添置的梳妝臺,整體白色造型復古又美觀。

主臥做了雙眼皮吊頂,更好地拉伸層高。床品配飾的搭配極其符合居室特點,讓人一進入室內有種甜蜜溫馨的感覺。舒服地躺在床上,不多時便酣然入眠。

值得注意的是,主臥沒有在衛生間墻側打造衣柜,而是利用床尾空間打了一整面衣柜墻。整體通頂,造型格外美觀時尚,儲物量也極大,能夠很好地滿足業主的儲物實需。

次臥空間通過靠墻擺放床體,騰出足夠的活動范圍。尤其是飄窗的搭建,給了業主更多靈活使用的空間。同床相靠,坐臥橫躺變得愈加隨心所欲。

臥室色彩選擇應講究溫馨,這里用柔和的奶油色來營造臥室的氛圍。同樣的,靠墻打造了通頂衣柜,甚至當做床頭在使用。里面則裝著一些日常換洗衣物,愈加方便日常生活。

另一側則利用可移動書桌椅及半人高的置物柜,合理規劃出書桌學習區。電腦整齊地擺放在臺面上,業主得以日常地休閑娛樂。墻上還掛了一面圓鏡,起到補光及查看面容的效果。
衛生間面積雖然不大,但也是整個家居空間里十分重要的部分。不僅要保證基本的生活需求,還要確保舒適合安全。通過實現干濕分離,方便男女業主一起起床上班,有效提高了衛生間的使用效率。

整個濕區用玻璃推拉門隔開,保障了干凈舒適的洗浴環境。外部墻體設置了壁龕,方便物品的放置。里側還有置物架及小推車,將功能性發揮到極致。
華僑城紅坊右岸140平法式香奈兒風格裝修效果圖
華潤琨瑜之星現代簡約風格裝修效果圖
漢口城市廣場74平北歐風格裝修效果圖
置頂—— 知精準報價 避裝修深坑 ——
平均七年以上的設計經驗資深設計師為您服務