項目地址:琴臺穎園
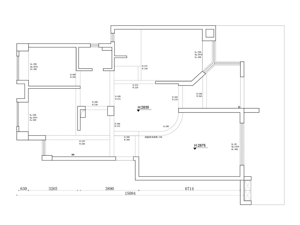
項目面積:124㎡
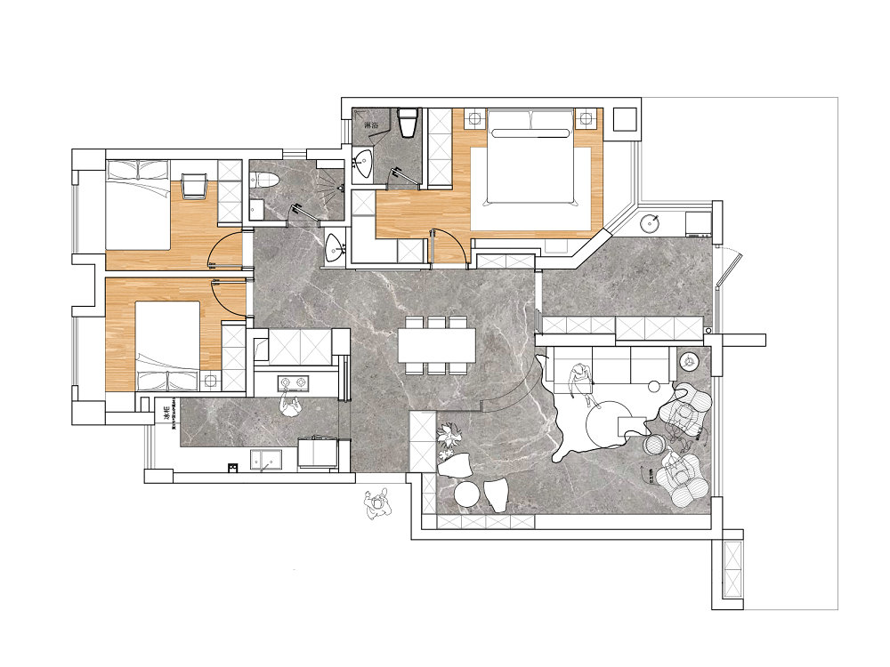
項目風格:現代風
項目施工:山水人家裝飾
工程造價:20.6w

本案業主家里是一家五口,三代同堂。隨著家里小孩的日益成長,原本老房的功能性已無法滿足當前需要,為此做了全新改造,以優化家庭成員的居住體驗。本案是全明戶型,各部分空間均有窗,外面還有戶外花園,保證了整體空間的采光通風,居住舒適度好。同時圍繞“家”主題作為空間主旋律,沉穩簡潔的灰+白+溫暖木皮配色搭配,呈現出簡潔大氣的空間氛圍,由此打造極致松弛感。

房屋信息:三室兩廳,舊房改造。

由于是舊房改造,原先存在很多生活上的不足與缺陷,為此做了較多的調整,主要包括:(1)根據原始結構中的不足,明確動靜分區,用樓梯有效連接高低區;(2)客餐廳劃分明確,并合理打造了獨立閱讀空間;(3)改變原本的狹長廚房,利用臥室及走廊部分區域增加廚房實用性及加大儲物收納;(4)主臥門運用無框隱形門,保持風格統一及餐廳墻畫面的完整度。

進門口側面打造了滿墻玄關柜,直接通頂。白色柜面更顯干凈潔亮,中間設置超長開放格,合理放置一些隨身物品或擺件。底部同樣預留間隙,存放一些鞋子。
客廳在業主生活中使用最為頻繁,集休閑放松功能于一體。作為整間房子的中心,值得更多日常的關注。因整體靠近戶外花園,擁有絕佳的戶外視野及采光,進而強化了空間的通透感。

客廳主體采用無主燈設計,軌道燈+筒燈的合理穿插,打造優良的室內照明。點、線、面的合理運用,更好地拉伸層高。周圍包裹一層木皮,彰顯層次感。

在整體簡潔的設計中,墻面用乳白色進行調色。背景墻上點綴裝飾畫,避免過于單調。直排沙發有著寬大的坐落空間,能夠自由靠躺,給客廳帶來些許格調感。

客廳的電視背景墻做了白色墻板的設計,外加電視內嵌,和整個客廳的配色巧妙地結合起來。底部還專門布置了木色地柜,看起來格外舒適。正面茶幾選用巖板材質,錯落有致,以滿足不同高度的使用需求。

除此之外,結合戶型特點,特意打造出完整的獨立閱讀空間。立面設置木色展示柜,用以擺放一些裝飾品及書籍,給人一種溫良自信的感覺。區域配備單人躺椅,閑暇時看書便成了一件樂事。

客餐廳雖同屬一片空間,并做了明確的動靜分區。以樓梯連接高低區,空間轉換富有意趣。區域內部還搭建了玻璃護欄,既充當隔斷,還起到防范安全的作用。

餐廳的天花吊頂同樣做了弧形設計,成為顯眼的空間隔斷,同地面造型相互照應。同時規劃軌道燈+長條吊燈,保障充足的燈光照明。

餐廳的布置一定要兼顧軟裝和硬裝,把控好材質的對比和色彩的統一。純白色系貫穿室內,讓視線更加柔和,居室更加溫馨。加之滿墻裝飾畫的點綴,高級感滿滿。

餐廳靠墻直接打了一面到頂餐邊柜,整體保留充裕的儲物面積。白色柜面+黑色線條,增添更多層次感。中間做大的開放格,方便存放一些裝飾物及餐具用品。

巖板餐桌可圓可方,伸縮切換。邊角圓潤修邊,安全防磕碰,起到人性化防護的作用。開放式底座,空間受不到任何拘束,閑置的時候可將餐椅推入餐桌下,騰出更多活動空間。這樣的布置設計,非常方便一家人團聚用餐。
廚房空間相對狹長,為提升整體區域的利用率,做的是雙排式的櫥柜布局。主要分成兩邊,合理規劃了臺盆區及炒菜區等。這樣一來業主之間有了更多互動的機會,不會因為空間狹窄而不得不一人操作,足夠寬的過道方便多人烹飪,互幫互助。

櫥柜色調上白下灰,分出明顯層次。石英石臺面搭配淺色瓷磚,讓廚房擺脫了油膩的刻板印象,看起來干凈又高級。
主臥通鋪木地板,更顯溫潤自然。吊頂造型簡潔,做了隱藏燈帶,增加美觀性。因為同戶外花園互動性較強,特意布置了飄窗區,看著窗外的盎然綠植,提供了一些情調。

主臥白色背景墻搭配柔軟床頭,看上去輕松又自然。用橘色床品營造濃厚溫馨的氣氛,地毯的置入起到裝飾的效果,而整個房間里的搭配又給居室營造了舒適的氣息。

主臥空間足夠地寬敞,嵌入式衣柜選擇了咖色的柜體,立面非常高。同時也跟周圍環境很好地融合在一起,凸顯空間層次感。

認真看里面更是充滿了生活細節,令人驚喜的L型衣柜墻擁有豐富的儲物環境。頂部用隱藏燈來提升空間的照明及氛圍,整體簡潔當中又不乏溫馨感。最里側則是家里的主衛。

臥室是為家里老人提供睡眠休息的場所,需要有一個安靜的環境。通過保持臥室的功能單一性,有效降低了被影響打擾的可能性,相應提升了生活舒適度。

臥室主體采用白色背景墻,搭配咖色床頭,營造舒適的睡眠氛圍。同側打造嵌入式柜體,開放格里安然存儲一些生活物品。飄窗區的打造,更是收獲了優良的日照采光,老人能夠悠閑地曬曬太陽。

兒童房的設計更側重于功能性,休息區主體沒有做過多的色彩調度,保持了最純粹的干凈整潔,讓小孩得以獲得更好的睡眠體驗。

除此之外,空間里還照例配備了讀書學習區。通過打造一體式的書桌衣柜,利于孩子讀書寫作業。嵌入式衣柜不占空間,利用率很高,懸空書桌的布置方便下腳,幫助孩子養成優良的讀寫習慣。

衛生間內部做了干濕分離的設計,利用轉角空間做成鉆石形的淋浴間。馬桶和洗手臺擱在外面,鏡柜和浴室柜上都做了藏光設計,讓衛生間的整體呈現愈加簡潔時尚。
融創城94平法式復古風格裝修效果圖
中建鉑公館140平現代風格裝修效果圖
融科花滿庭137平現代美式風格裝修案例欣賞
置頂—— 知精準報價 避裝修深坑 ——
平均七年以上的設計經驗資深設計師為您服務