張慶國 - 主任設計師
入行時間:2010 年 職稱:主任設計師
項目地址:鵬程天地匯
項目面積:160㎡
項目風格:現代輕奢風
項目施工:山水人家裝飾
工程造價:24w

輕奢的定位,應該是在奢華中找尋舒適的節奏,既精致又有態度。本案業主是生意人,家里常住人口為兩人,他們經常會邀請賓客到家里做客,為此家里裝修需要極富質感與藝術張力。全屋定調現代輕奢風,深淺色交融,搭配潘多拉巖板及木飾面,增加空間高級感。設計布局方面,客餐廳與品茗區相連,開放式廚房設計更是拉近人與人之間的關系。

房屋信息:新房裝修。

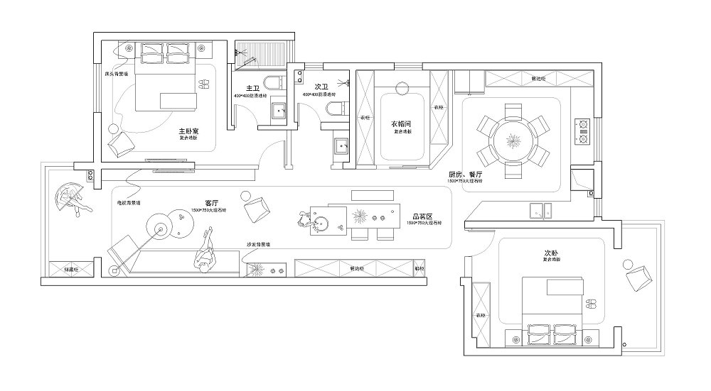
本案戶型方正,南北通透,且具備優良的采光通風效果。由于家里來客次數比較多,為此需要增添更多的附加功能,主要改造點包括了:(1)原戶型廚房餐廳太小不夠用,將其改成開放式廚房,與餐廳結合;(2)連接客餐廳的位置,打造出專屬的品茗休閑區,滿足業主及賓客的更多功能需求;(3)打造8平米衣帽間,實現儲衣收納自由。
客廳空間寬敞整潔,給人溫和感覺之余不失優雅。整體運用大面積深色,局部淺色搭配,呈現簡潔明朗的質感。結合落地玻璃的極致采光,讓人印象深刻。

客廳頂部采用懸浮吊頂+無主燈設計,照明效果一級棒,同時還強化了整體空間的層次感。地面通鋪750*1500大地磚,更顯雍容與氣派。

沙發背景墻運用淺灰色墻板+木格柵,深淺相融,顯得十分和諧。搭配直排沙發,打造舒適坐感,盡顯生活的悠閑自在。面前的巖板茶幾形制簡潔,一大一小,高低組合,錯落有致。

電視背景墻方面,采用潘多拉巖板+木飾面無縫拼接,滿滿的高級質感。電視內嵌,更好地利用到空間。搭配同款地臺,兼帶天然的厚重之感。

在客、餐廳之間,尚有一處狹長的閑置空間。為滿足業主的社交娛樂功能,將其打造成休閑茶臺區。又因位置左靠衛生間右倚小書房,直接潘多拉巖板上墻,設置了空間隔斷予以區分。

休閑區靠墻打造了到頂柜墻,選用的是ENF級顆粒板材質。整體保留充沛的儲物環境,中間甚至準備了直飲水機,方便隨時飲茶倒水。旁側還安裝了黑色玻璃柜,起到收納和裝飾作用。

輕奢巖板茶臺做了有弧度的造型,自帶智能燒水壺,生活愈加便利。內含隱藏式儲物空間,且易于清理。業主家非常地好客,經常會喊好朋友到家里聚會,大家圍坐在這里,感嘆歲月靜好。

原戶型餐廳面積不夠用,為此重新做了設計規劃,盡可能多地增加實際使用面積。改造后的餐廳美觀大氣,搭配平頂造型+無主燈,凸顯優越的層高。

餐廳靠墻打造了通頂餐邊柜,選用灰色柜門,更顯干凈整潔。同側的黑色玻璃柜則當做酒柜在使用,空間里充滿醇厚的味道。在此之前就確定好雙開門冰箱的尺寸,同墻壁緊密地貼合,騰出空間直接裝進去。

餐廳選用大的圓形巖板餐桌,方便多人集體就餐。圓弧造型不僅緩解了直線的壓迫感,還有效呵護家人的安全,防止出現磕碰撞傷。搭配亮色餐椅,增添餐廳更多的精彩。

原戶型廚房較小,家里鑒于來客次數比較多,索性直接改造成開放式廚房。三面環柜,同餐廳緊密結合,由此形成異常靈活的烹飪動線。

廚房整體規劃成L型,一面是臺盆區,一面是烹飪區。區域之間相隔又相連,存在緊密的關系鏈條。這樣一來,極大程度方便多人一同準備餐食,增強家人朋友的互動性和趣味性。

廚房吊柜采用白色顆粒板,搭配石英石臺面,更顯干凈整潔。通鋪墻地一體磚,質地優良,質感尚佳??臻g留出足夠寬的過道,方便走動的同時,形成了一處美妙的駐足之地。

燈具在家居風格中起著至關重要的作用,吊燈、射燈、燈條等能夠在空間里自然穿插。臥室采用無主燈設計,打造溫馨閑適的光線環境,尤其是床頭區域還做了鏤空邊吊,更好地點綴氛圍。

主臥背景選用咖色墻板,實現了深淺色調的貫通,借此打造沉靜自然的視覺感受。同時搭配柔軟床頭,擁有舒適的睡眠體驗。同色系床頭柜的應用,方便置物的同時,凸顯一份靜態美。

主臥內部實際上沒有打衣柜,以此騰出足夠多的空間。整體咖色墻干凈通透,非常適合臥室裝修。墻頭另一側則是主衛空間,充滿了私密性。

為增加更多的休閑娛樂功能,在床尾處安裝了掛式電視,休息的時候可以看看電視,娛樂心情。同時靠墻布置了邊角柜,起到合理收納的功效。
家里的衣帽間面積達到了驚人的8平米,足以讓業主做一些愉快輕松的事情。兩邊均打造了通頂衣柜,柜門選用灰色系色調,更顯低調。搭配黑色玻璃柜,簡潔又時尚。

同時靠窗還布置了書桌區,懸空臺面的應用完美適配業主的坐高,業主使用起來毫不費勁。這樣的設計同樣方便日常清潔,不留衛生死角。天花安裝斗膽燈,光照足夠強烈,搭配風管機,保障極其優良的使用環境。
衛生間采用了干濕分離的設計手法,區域之間互不干擾。選用磨砂玻璃門,更好保障衛生間隱私。懸空浴室柜搭配超長鏡面,愈加方便日常洗漱。

衛生間通鋪墻地一體磚,灰色質感格外矚目。濕區用玻璃護門隔開,保持相對私密的衛浴氛圍,同時防止水流溢出,過分影響外部環境。
紐賓凱錦城簡美風格裝修效果圖案例實景拍攝
中建大公館102平意式輕奢風格裝修效果圖
綠地國際金融城133平歐式風格裝修效果圖
置頂—— 知精準報價 避裝修深坑 ——
平均七年以上的設計經驗資深設計師為您服務