盧磊 - 高級主任設計師
入行時間:2010 年 職稱:高級主任設計師
項目地址:龍湖紫都城
項目面積:46㎡
項目風格:奶油風
項目施工:山水人家裝飾
工程造價:9w

本案忝為LOFT戶型,層高接近4.4m。二層更是贈送了10平方衣帽間,能給設計帶來無限衍生空間。業主方面想要一個溫馨愜意的雙人獨居空間,設計師結合專業尺寸設計及功能要求,從而打造出業主專屬的小天地??臻g大量采用暖色系,使本案充滿浪漫和私密感,充分展現隨意放松的空間氛圍。


房屋信息:LOFT,新房裝修。


本案層高接近4.4m,如果是單純現澆上下兩層,效果欠佳。于是將二層贈送面積外擴,給予一層挑空支持;原始結構限制廚衛布局,通過合理規劃,打造出獨衛西廚、挑空客廳及獨立衣帽間等;在此基礎上,還將一層的生活空間與二層的私人區域巧妙分隔,室內變得通透開闊。
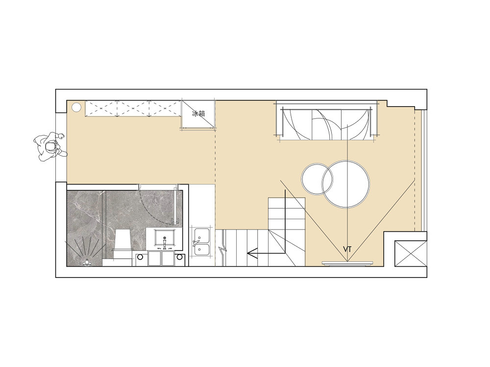
由于戶型結構上的特點,家里空間選擇開放式設計。通過家具擺件組合形成各種隱形隔斷,借此精妙地劃分功能空間,空間緊湊但一點兒都不擁擠,能給設計帶來無限的遐想。

側面打造了到頂玄關柜,白色+原木色的組合,給人清爽干凈的觀感。一邊還實打實布置了黑色玻璃柜,擺滿了擺件及裝飾物。里側暗藏燈帶,起到輔助照明的功效。

墻角區域設置了一處近2m長的全身鏡,能夠更好地補光,彌補玄關的功能缺陷。與此同時,還將冰箱巧妙地放置在旁,極致利用空間。

客廳墻面用杏子灰乳膠漆進行調色,營造溫馨自然的居室氛圍。由于存在高挑空,保障極佳的空間質感。地面通鋪800*800膚感啞光磚,同周圍環境完美融合。

舒適的白色雙人沙發搭配簡約的圓形茶幾,可見愜意客廳生活的縮影。背后還布置了網紅草裙落地燈,形成空間燈光點綴。休閑的時候打開投影儀,以此舒服地看上一部精彩的電影……

客廳休閑區的布置簡單舒適,搭配風格掛畫,彰顯著一種自然質樸的空間美感。同理打造懸空柜體,起到輔助收納的作用。搭配上底部燈帶,展現出媲美高端住宅的自由精致感。

全房層高接近4.4m,如果是單純現澆,上下兩層的呈現效果欠佳。于是給一層挑空給予支持,有效拉伸空間視覺。在優雅吊燈的襯托下,客廳氛圍感直接拉滿。

LOFT格局極大程度削弱了平面布局的壓力,一層的生活空間與二層的私人區域借助樓梯巧妙分割,室內變得通透開闊。樓梯直接現澆,應用石材,沉穩厚重之感撲面而來。通道一側還安裝了玻璃扶手,有效提升使用時的安全感。

廚房位于樓梯下方的異型空間內,定制的櫥柜巧妙安置其中。頂部借助線性燈帶實現照明,不失為一種設計感的體現。

奶白色櫥柜搭配淺色石英石操作臺面,整體做成L型。由此打造出干凈整潔的廚房操作區,日常廚具物品都得到了有序歸置,甚至連洗衣機也儲存在這里,以實現多功能收納。

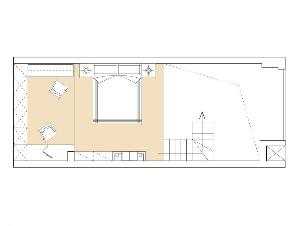
二層的臥室區開闊通透,搭配頂面吊頂無主燈設計,凸顯空間層次感。又因靠近窗戶,讓室內始終擁有明朗的光線。

臥室背景墻用白色涂抹,顯得純凈又整潔。外加木飾面上墻,極致豐富空間內涵??臻g雖簡單,但細節處的點綴卻恰到好處,床頭柜物品的精致擺放,為室內增添了一抹時尚氣息。

二層地面實際鋪滿了原木地板,哪怕是光腳踩在上面都感到格外清涼。臥床區和衣帽間之間做了整體的地面抬升,巧妙劃分功能空間。

通過合理規劃布局,打造出一個獨立衣帽間。空間大量采用白色+原木色,使得室內充滿浪漫與私密感,進而優化成隨意放松的環境氛圍。

正面根據房屋格局定制了一整面嵌入儲物柜,以供日常衣物床品的收納。通體白色造型,更顯干凈整潔,搭配黑色豎條形拉手,色彩運用自然有層次。

一邊是開放掛衣柜,專門懸掛一些襯衣及貼身物件,平時業主會在這邊踱步,因為真的太難挑選啦~同側還設置了梳妝臺,懸空桌面+造型座椅,格外靚麗,一張圓鏡位于中位,目睹驚艷的面容。

另一側則當做書桌區在使用,保障了相對私密的學習辦公環境。同時預備了足夠多的插座,方便隨時充電及補充光源。一旁還打造了到頂柜體,內含豐富的儲物空間。

衛生間位于廚房一側的小門后,這里面積雖小,但卻將空間做了最大化的利用。通過合理布置功能區,用玻璃護門分隔洗漱區和淋浴區,這樣不僅完善了干濕分離,也讓整個清潔動線變得方便流暢。
融創95號院95平中古風格裝修效果圖
城投聯投江南岸177平現代風格裝修效果圖
碧桂園別墅美式風格裝修效果圖
置頂—— 知精準報價 避裝修深坑 ——
平均七年以上的設計經驗資深設計師為您服務