
中建湯遜湖壹號,坐擁36.6平方公里湯遜湖。東、西、北三面環水的格局令人艷羨,又被稱為水岸公館。在這里,世外桃源和阡陌交通只有一線之隔。
不過,同樣是在湯遜湖,感受卻依據戶型各有不同。按照戶型的特點進行針對性的裝修,才能享受到最匹配的實際體驗。
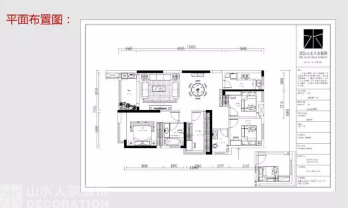
對癥,才能下藥,今天的“主治醫師”---武漢十大裝修公司之一山水人家裝飾就來給這個戶型號號脈。

戶型:湯遜湖一號高層131m^2
優點:整個戶型比較方正,空間規劃明確,整體光線充足。
缺點:客餐廳空間劃分不明確,入戶大門正對衛生間門;交通流線不夠流暢;空中花園的過道屬于死角,光線不夠。

原始戶型中,入戶大門正對著衛生間門口,風水上為大忌。設計師在不影響兩個臥室使用的前提下調換衛生間開門的方向。同時,也增大過道的空間,使公共區域更加寬敞,交通流線更加流暢。

廚房的L型操作臺符合人體工程力學,更適合中國人的使用習慣。

多功能房設計了很大的儲物空間便于屋主的居家收納,在光線好的窗戶邊上設計了一組書桌書架組合,增加了功能性。

根據大體的設計思路,設計師很快進行了實踐。她采用了溫馨明亮的暖黃為主色調,材質采用了墻布和一些好打理的石材。


整體的風格偏向于古典歐式,雍容華貴低調奢華。通過完美的典線,精益求精的細節處理,帶給人顫抖一般的舒服觸感。
廚衛收納充足,空間利用率極高。

臥室的設計上,沿用了富貴堂皇的用色,燈帶映照的背景墻給人留下深刻的印象。

當然,如果你不喜歡豪華型的,同樣的布置小清新也同樣駕馭得來。

這是一套清新簡約的現代簡約風格,同樣適配于該戶型。


換了一種用色風格,以淺藍色和黃色撞色給人一種平穩過渡,十分耐看。



本套戶型分析主治醫師:

山水人家裝飾江夏店首席設計師龔婷婷
戶型的適配有著背后的邏輯和學問。在專業人士的幫助下搞懂戶型自身的優點和缺點,才會讓裝修事半功倍。
TAG標簽:
置頂—— 知精準報價 避裝修深坑 ——
平均七年以上的設計經驗資深設計師為您服務