
一、砌墻準備工作
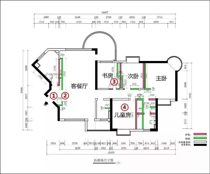
1、準備砌墻圖,這是一個設計圖,示意具體的砌墻位置;
2、現場彈線定位,根據砌墻圖在現場與泥工師傅定位砌墻位置,并彈好線;
3、買好水泥砂磚;做好上述準備工作后,可將現場交給工人師傅開工!

二、砌墻工藝參考
為了保證施工工藝和質量,下面的設計姐姐總結了一些關于砌墻的工藝參考,大家可以借鑒一下!
01墻體厚度:
下圖是設計姐姐用磚擺放的示意圖。家居裝修中常見的墻體厚度有18墻、12墻和6分墻。一般普通墻可以建12墻(中)。如果有特殊的承重要求,可以建18墻(左)。如果6分墻(右)很輕,穩定性很差。除非空間真的很小,否則不建議建這樣的墻。
02墻角磚交接
在T字墻與L字墻等兩面墻交接的情況下,交接處每隔一層的磚應錯開交接,以增加交接處的穩定性。下圖是設計姐姐用磚擺的示意圖。
新舊墻T字交接處理處理處理處理處理
在砌墻中,新舊墻的T字交接比較常見。如果這個交接處的施工不規范,后期新墻會縮水或傾斜,一條縫就會開裂;
在新墻與舊墻T字交接的地方,由于舊墻開槽,新磚墻卡在槽內。
04新舊墻一字或L字交接
對于新舊墻是單字連接或L形連接,可用“拉筋”固定連接,在新舊墻交接處植入鋼筋加固,建議鋼筋長度超過60cm,植入長墻10cm,用植筋膠固定,植入鋼筋密度約為每60cm高度植入兩根L形鋼筋。
在植入“拉結筋”的基礎上,如果條件允許,也可以在舊墻上挖插槽,這樣雙重保險的鏈接方式更有保障。
05新舊墻交接批蕩
墻完成后,拆除約15cm的舊墻批量層,在新舊墻之間掛鋼絲網,防止新舊墻連接后期開裂。如果T字交接是開槽卡磚,則不需要掛網。
掛網尺寸:寬30cm,新舊墻各15cm左右,網徑≥10mm*10mm。
06輕質墻掛網再次批量
新建的輕質磚墻建議在批蕩前掛網。為了增加墻體強度,防止墻體開裂,掛網孔徑也在10mm*10mm以上,太密的網孔容易造成空鼓。
07門洞要做過門梁
因為門洞是空的,如果門框上方沒有處理,那么后期門框和門就會成為壓迫的對象,輕則開門不順,重則門裂變形;因此,在門洞頂部,門梁必須采用預制鋼筋混凝土板,兩側門洞應長12cm以上。門洞越大,兩邊的長度就越長。
衛生間防水梁08
如果衛生間新建墻體,還應澆筑防水梁,避免衛生間水滲入相鄰空間。方法是在地面上切一個淺槽,然后澆水泥,高度在15厘米以上。
09養磚處理:
如果磚太干,吸水太快,尤其是輕質磚。為了避免水泥砂干得太快而不穩定,可以在砌墻前給磚澆水;另外,批量后也可以給墻澆水,原理是一樣的。
10延時封頂
水泥砂在干燥過程中,在重力的影響下,新墻會有一定的壓縮,如果一次性建到頂部,后天花板與墻交界處容易出現裂縫,所以在墻上,可以建在底部,留下幾層磚的頂部一兩天;
封頂磚,可采用45度斜砌作為緩沖,有利于抵消變形,增加抗震性能。
置頂—— 知精準報價 避裝修深坑 ——
平均七年以上的設計經驗資深設計師為您服務