劉明麗 - 首席設計師
入行時間:2015 年 職稱:首席設計師
項目地址:中建福地星城
項目面積:96㎡
項目風格:現代簡約風
項目施工:山水人家裝飾
工程造價:12w

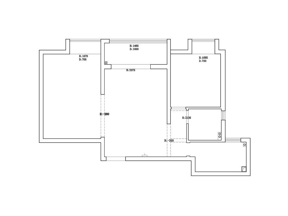
戶型解析

一人居的96㎡,核心在于“簡”與“精”。整體采用現代簡約風,摒棄冗余裝飾,強調功能的流暢與空間的通透。在有限面積內,通過格局微調,精準滿足了業主對實用、休閑、隱私的全部核心需求,讓獨居生活既自在舒適,也充滿品質感。

本案是2房格局,主要的改造點在于:(1)入戶直通客廳,將門口設立了一個玄關,起遮擋作用;(2)主臥空間較大,隔出來一個休閑區,作為平常來客的一個休閑喝茶區。
玄關
原戶型入戶直對客廳,私密性較弱。通過巧妙增設一道玄關隔斷,既解決了風水顧慮,又增加了回家的儀式感和儲物空間。

墻面懸掛黑色音符掛鉤架,兼具裝飾與實用功能。靠墻定制鞋柜+玻璃隔斷,條紋設計既保證透光性,又兼顧隱私保護。
客廳

客廳和陽臺打通,大面積落地窗+白色紗簾視野好,透光強,由此保障采光與私密性。空間借米白色和淺棕色營造溫暖基調,整體勾勒出家的柔和輪廓。

背景墻與天花板均為純白色,強化空間的開闊感。頂部懸掛環形吊燈,黑白極簡造型兼具照明與裝置藝術感。地面淺色瓷磚反光提亮空間,搭配淺棕色地毯。讓客廳區更顯溫馨。

米色布藝沙發強調舒適性,搭配黑白雙色的圓形茶幾,更添幾分生活情調。沙發旁立著一盞黑色弧形落地燈,柔和的光線為角落注入松弛氛圍。沙發墻懸掛著一組裝飾畫,色調與空間融合,打破了墻面的單調。

黑色電視置于白色墻面,愈加豐富空間層次。底部設置電視收納柜,兼顧收納與視覺輕盈感。而陽臺區安排了嵌入式白色書架,分層展示藝術擺件,彰顯極簡美學張力。
餐廳
餐廳采用通透的開放式設計,與客廳、玄關區域形成視覺連通。整體以淺灰、米白為主色調,營造簡潔明亮的氛圍。

巖板餐桌干凈耐臟,桌面紋理自然細膩,搭配四把淺灰色皮質餐椅,保證了整體舒適度,又與簡約風格相呼應。上方懸掛線性吊燈,提供了較為集中的照明。
廚房

廚房采用L型櫥柜設計,打造清晰連貫的洗切炒動線。白色吸頂燈與吊柜保持視覺留白,搭配底部灰色櫥柜,減輕空間壓迫感。臺面選用石英石材質,耐高溫、抗油污,日常清潔十分便捷。
主臥
主臥大面積留白,使房間顯得寬敞明亮。窗邊懸掛著米白紗簾,輕柔的材質讓光線更為柔和。尤其是定制了書桌區,淺白色板材與墻面色調統一,延伸出的懸浮臺面既節省空間又增添輕盈感。

墻面以純凈的白色為基底,搭配掛畫增添層次感。淺杏色的雙人床與床飾的局部色調相呼應,打造出寧靜舒適的休憩環境。床的兩側各放置了吊燈和臺燈,綻放溫馨暖光,滿足實用需求。

同時利用主臥的寬敞面積,隔出一個獨立的休閑角落。這里既是屋主平日閱讀、品茶的精神自留地,也是朋友小聚時的愜意聊天區。

白色紗簾從兩側垂落,從而代替實體墻。地面略做抬升,且鋪設了木質地板,空間更顯溫潤自然。與編織茶幾、蒲團形成材質上的呼應,配上可愛的狗狗玩偶,吐露生活的悠然…
次臥
床邊定制采光窗,讓空間顯得明亮。整個房間沒有多余裝飾,以低飽和度色為基調,營造出干凈清爽的休息環境,既適合日常起居又能讓人放松身心。

墻面懸掛裝飾畫,避免了大面積留白的單調。米色床具和窗簾的搭配,加上柔和的燈光,簡約中帶著細膩的質感。
衛生間

衛生間浴室柜底部留空,不留任何衛生死角。淋浴區安裝了黑色邊框的玻璃隔斷,有效實現干濕分離。地面鋪設防滑瓷磚,耐污易清潔。
華發外灘首府美式輕奢風格裝修效果圖
巴黎春天現代風格裝修效果圖案例
嘉河盛景190平現代風格裝修效果圖
置頂
免費報價量房
—— 知精準報價 避裝修深坑 ——
平均七年以上的設計經驗資深設計師為您服務