王群 - 首席設計師
入行時間:2011年 年 職稱:首席設計師
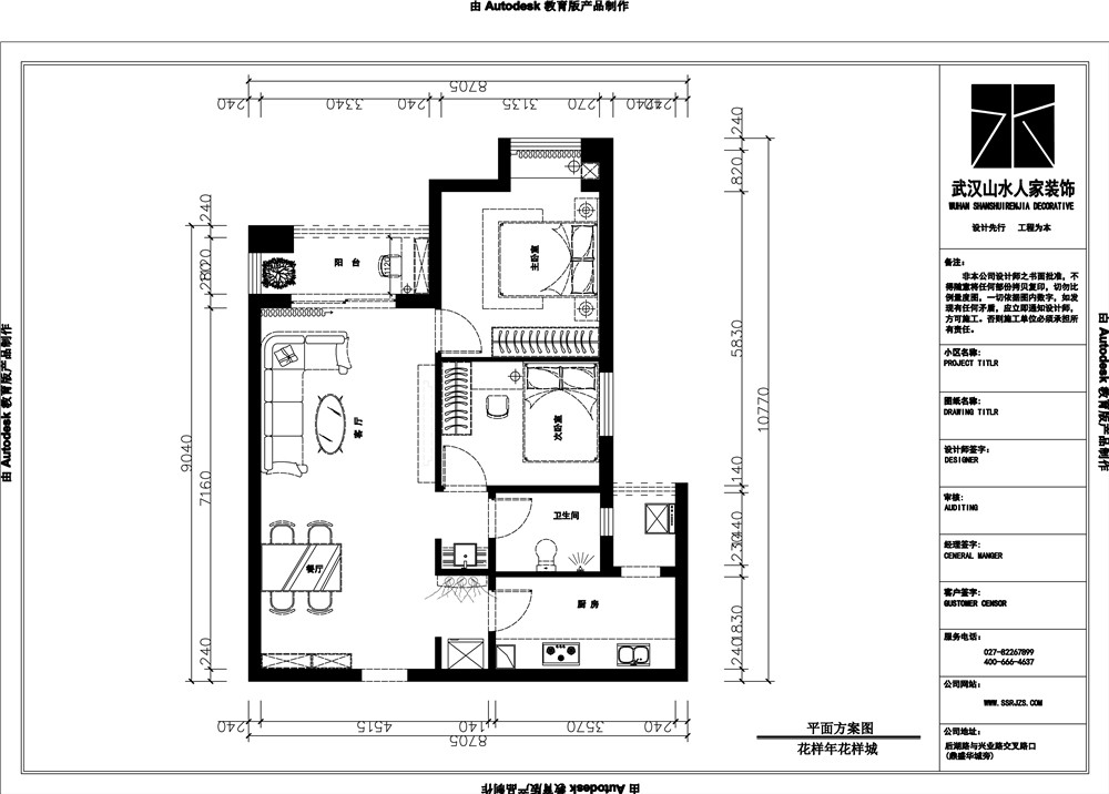
項目地址:花樣年花樣城
項目面積:84平
風格定位:簡歐
工程造價:8萬
項目經理:周國東
本案例中的業主是一位單身90后美女,
通過幾年的打拼、積累,
終在武漢有了自己的家。
花樣年花樣城小區84平兩室兩廳,
無論以后是自住還是出租,
都是極好的呢!
雖然在職場上闖蕩了這么多年,
但是少女心從未遠去,
忙碌了一天之后只想有個溫暖的家來包容自己,
山水人家裝飾設計師滿足了她的愿望,
和她一起打造了這樣一個溫馨浪漫的簡歐新家。
客廳位于入戶左邊,正對著臥室。
簡約中透著奢華的頂面設計,
讓室內燈光融合起來更自然,
咖啡色硬包背景墻質感十足,
大面積的淺色系家具和視覺范圍內的綠植,
無不顯示業主是一個熱愛生活的人。
白色乳膠漆與石膏線,
勾勒的墻壁線條簡約大氣,
白色的L型長沙發可以滿足不同的坐臥需求,
是業主第一眼看到就愛上的家居用品,
與整體搭配協調又美觀,真是‘好眼光’!
從客廳看向餐廳,
客餐廳一體公共空間大,
同色系的家具與裝修風格,
讓整個空間看起來和諧統一。
餐廳位于入戶處,
是一個相對獨立的空間,
典型的歐式餐桌造型優美底蘊十足,
鮮花與粉嫩色彩點綴的餐廳,
用來招待親密的好姐妹,是再好不過了。
量身打造的拱形收納酒柜、
精致的蕾絲花邊與餐布,
仿若回到了15世紀的宮廷,
小小的體驗一下自己創造的公主夢,
安全感與舒適感爆棚。
客廳打通了原本的陽臺,
把它作為一個休閑區,
養上生意盎然的綠植,
簡單的打造了一個小景觀,
偶爾澆澆水、修剪枝葉也是減壓的一種方法。
主臥柔軟的大床、粉嫩的床單,在陽光照進飄窗時美到極致,溫馨的軟裝更有助于睡眠。將飄窗設計成工作臺,既可收納又可辦公,讓職場上的‘女強人’可以舒適的在家加班。
次臥面積不大采光效果好,偶爾也會有外地好友來訪借宿一兩天,平時都是當衣帽間使用的。年輕貌美的業主,和其他愛美女孩子一樣,需要足夠的空間來把自己打扮美美噠。
































海爾地產國際廣場95平簡約風格裝修效果圖
幸福佳苑現代極簡風格裝修效果圖
華發中城薈美式輕奢風格裝修效果圖
置頂—— 知精準報價 避裝修深坑 ——
平均七年以上的設計經驗資深設計師為您服務