攬勝公園--無主燈的家
800實拍案例
項目地址:攬勝公園
項目面積:118m^2
設計風格:現代
項目耗時:90天
戶型:三室兩廳

關于“家”
溫暖與冷淡的界限讓人捉摸不定
無人在家時清冷
家人團聚時溫馨
色彩僅僅是一種裝飾
設計也只是手法
真正溫暖的是停留在港灣的“船”
--山水人家裝飾,讓您愛上回家

作為業主夫婦的婚房,顏值與品質并存,是本案的設計初衷!前期溝通過程,主要以女業主的喜好為主,設計師通過對色彩與造型的塑造,成功得到業主信任,等到業主夫婦來公司看過材料和工藝,對我們表現出極大的認可后,正式開啟了本案的故事。

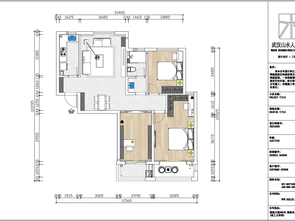
客廳
無主燈的設計,減淡了視覺重點。
沙發背景墻運用原木條與留白手法的設計,地面采用大塊的魚肚白瓷磚,讓整個空間更加從容、清新。

玄關
餐廳與客廳的分隔線,我們考慮了很久,選擇了人字拼的深色系木地板,與吊頂的木飾面相呼應,打散了金屬黑白灰的冷硬。

餐廳
內嵌式的酒柜與燈帶,不僅提高了空間的高級感,也在細節處提升了生活品質。

主臥
主臥陽臺區域設計成地臺,我們干脆在上面鋪上一層軟墊與涼席,簡單的擺上兩個樸素的蒲團,作為休閑使用。

轉角柜體的隔層進行了一段延伸,設計成床頭柜。

衣帽間是原主衛改造的小空間,增加儲物空間的同時,也是女業主的化妝間。

書房
書房選擇了全推拉窄框玻璃門,保證采光,同時也打破了走廊的擁擠,提升居住體驗感。

衛生間
衛生間做了干濕分區,整個瓷磚與盥洗臺的選擇以黑白色系為主,流線型的燈光,智能鏡,簡單又高級。
房間改造往往是根據
屋主的個人習慣而來
沒有“萬能”的風格和方案
只有合適的設計
和最懂你的我們

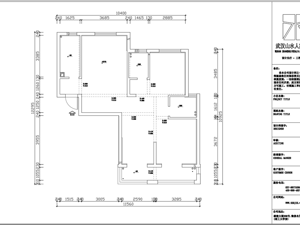
1、餐廳空間過小,客餐廳體驗感差。
2、走廊空間擁擠狹長,導致室內采光不佳。

1. 次臥改為書房,做了全推拉窄框玻璃門,也保證了陽臺與客廳通風和采光。
2. 主衛改造為衣帽間,滿足業主對衣帽間的需求,主臥也相對性的有了南北通透的格局。
3. 對主臥與次臥門進行了調整,避免了風水上的不利,同時增大了主臥衣帽間的使用空間。
億達云山湖現代風格裝修效果圖
鴻發翰林府129平北歐風格裝修效果圖
保利清能西海岸126平侘寂風裝修效果圖
置頂—— 知精準報價 避裝修深坑 ——
平均七年以上的設計經驗資深設計師為您服務