黎林 - 首席設計師
入行時間:2008 年 職稱:首席設計師
項目地址:融僑濱江城美域
項目面積:181㎡
項目風格:現代風
項目施工:山水人家裝飾
工程造價:26w

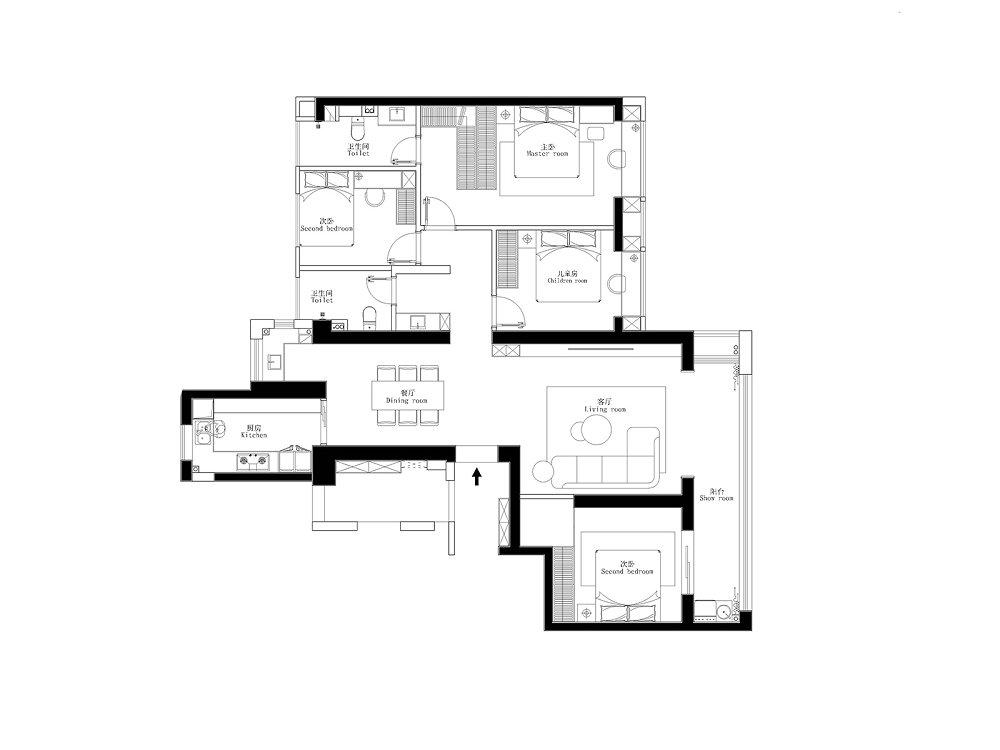
戶型解析

本案以中性底色的現代風格為基調,加入靚麗的綠植與鮮花,調動起整個空間的生活張力。同時以木飾面為媒介,墻板架構進行支撐,從而創造出多維度立體的輕盈感覺。業主一家可以遵循內心的喜好去生活、探索,享受慢奢生活下的自我滿足。

本案戶型方正,南北通透,因為業主家里人口較多,對房間數量要求較大,因此設置了四間臥室。除此之外,還進行了其他方面的改造:(1)打通陽臺,并連接客廳和次臥,整體形成回字形動線,空間更顯通透;(2)小區樓棟結構為電梯入戶,所以部分日常鞋履可放置于門廊外;(3)餐廳小陽臺區域加裝水槽,滿足更多西廚功能;(4)公衛干區外置,有效實現干濕三分離。
客廳

打通陽臺并連接客廳,增加整體使用面積。大面的落地窗緩解層高的局促,完成橫面的視覺延展。

客廳采用懸浮頂設計,營造出獨特層次感,借助無主燈打造典雅氛圍。二者相結合,瞬間提升空間格調。地面則通鋪亮面瓷磚,搭配淺色系地毯,顯得溫馨別致。

客廳背景墻選用墻板+木飾面的組合,淺色系融合了木的溫柔,與明亮的光線共舞,給人一種舒適、不拘謹的感覺。家具方面則選用了米色沙發,搭配高低茶幾柜,與整個空間的基調相符,編織出多變的氛圍張力。

電視背景墻以木飾面為媒介,呈現出全新的視覺統一氛圍。且利用巖板架構進行支撐,避免柜體過多造成的視覺繁雜。電視內嵌其中,愈加精簡空間。

陽臺空間合理布置了家政區,定制了到頂的一體式柜子,洗衣機烘干機疊放處理,搭配實用性強的盥洗臺,生活便利性大幅提升。
餐廳

餐廳頂面同樣是懸浮頂+無主燈的搭配組合,為空間帶來更多溫馨感。光經過木飾面和地板的漫反射,明部與暗部漸次鋪陳,調和出柔和均勻的質感。

餐廳最里側除去廚房空間外,還保留了一處小陽臺。加裝水槽來滿足更多西廚功能,底部還預留了掃地機的位置,避免空間浪費。

餐廳除了必要的家具外,沒有任何的冗余物。整體選用了巖板餐桌,色調簡潔明亮,線條流暢,非常適合一家人用餐體驗。桌面上擺放了漂亮花卉,點綴了業主的溫馨日常。
廚房
為了最大化利用廚房空間,特別是對于狹長的廚房,U型櫥柜設計是一種高效的選擇,這樣能提供寬敞的操作臺面和充足的存儲空間。尤其是對于洗切炒功能的整合,更好提升使用效率。

廚房頂面用線性燈帶裝飾,豐富更多空間層次感。白色吊柜搭配木色地柜,讓廚房環境整潔又明亮。其中在廚房開口位置規劃了冰箱位,整體形成優良的使用動線。
主臥

得益于充沛的窗戶采光,使得主臥空間明亮而通透。墻面采用木飾面裝飾,給人一種溫暖自然的感覺。同時定制一體式書桌,并在墻角做了壁龕用以收納,由此打造了舒適的休閑環境。

主臥墻面采用淺色調,搭配豎條紋裝飾,增加了墻面的層次感和視覺上的趣味性。整體設計簡潔大方,床飾搭配柔和舒適,既滿足了休息的需求,又提供了工作學習的空間,營造放松寧靜的氛圍。

床頭一側定制了一面到頂衣柜,充分滿足家里的收納需求。其中開口位置做了開放柜的設計,內藏燈帶,將里面的精美裝飾品悉數展示出來,彰顯業主的獨特品味。
次臥1

次臥和陽臺連通,增加使用面積,同時可以讓更多的陽光照進室內。整體形成靈活的回字形動線,房間更顯通透,生活更顯便捷。

墻面大面積留白,帶給人更多輕松之感。側面定制整面衣柜,保留充足的收納空間,柜體表面非常光滑,同背景墻有著統一視覺感。
次臥2

兒童房空間比較精致小巧,墻面大面積應用淺色系,給人一種溫馨舒適的感覺。利用衣柜延伸出床頭柜的功能,同時考慮到兒童的成長需求,預留了足夠的活動空間和儲物空間。
衛生間
衛生間內部通過合理布局,將洗漱臺、馬桶區及淋浴區一字排開,盡可能多地利用到整體空間。其中選用懸空浴室柜,能讓地面的清潔不留死角,不再藏污納垢。

衛生間通鋪墻地一體磚,空間更顯整潔大氣。濕區借用防水簾隔開空間。同側保留大窗戶,增加了浴室的采光和通風效果。
中建大公館現代簡約風格裝修效果圖
保利心語125平美式風格裝修案例欣賞
天縱半島藍灣131平簡歐風格裝修效果圖
置頂—— 知精準報價 避裝修深坑 ——
平均七年以上的設計經驗資深設計師為您服務