武漢
家裝服務熱線 400-666-4637
當前位置:首頁 >裝修案例 >案例詳情

望江府115平現代簡約風格裝修效果圖

來源:山水人家裝飾 瀏覽人數:255次 更新時間:2023-12-28

作品信息

  1. 現代 案例風格
  2. 115平方米 房屋面積
  3. 20萬 參考造價

作品詳情

項目地址:望江府

項目面積:115㎡

項目風格:現代風

項目施工:山水人家裝飾

工程造價:20w


望江府115平現代簡約風格裝修效果圖


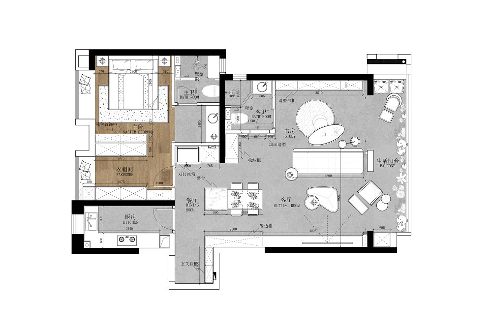
戶型解析


本案是當做婚房在裝修,是為一對00后小夫妻量身定制的家,他們更在意居家舒適度和顏值魅力,為此將原有三居室徹底改造,變成舒適愜意的生活空間。家里整體以現代簡約風為主,大量應用石材、木作、格柵等材質,以大體塊設計為載體,從而彰顯出一種肅穆的端莊感。素色的軟裝家具布置,則吸引著更多溫柔的氣質和情趣。


望江府115平現代簡約風格裝修效果圖


房屋信息:一室兩廳(三室改),新房裝修。


望江府115平現代簡約風格裝修效果圖


本案戶型方正,南北通透,因為業主更側重于休閑功能性,將房屋結構做出如下調整:(1)打造開放式書房,使其連通客廳,增加整體使用面積和實際采光;(2)重塑臥室格局,相應調換了原有主臥、主衛和衣帽間的位置,盡可能實現動靜分離;(3)空間各處積極打造柜體,借以滿足業主的儲物需要。


玄關


入戶位置直接定制了到頂鞋柜,用來放置鞋子或其他物品。大范圍的開放格設計,則化身換鞋凳,方便業主坐著換鞋。其他區域也有大用,相應滿足收納功能。


望江府115平現代簡約風格裝修效果圖


入戶玄關是一個很重要的存在,能夠影響人們的進門心情。于是這里別有用心,用木飾面+格柵做了玄關造型,擺放了裝飾品及滑板,承載更多的生活樂趣。


客廳


望江府115平現代簡約風格裝修效果圖


大開間的客廳容易給人留下寬敞開闊的第一印象,空間布局相對休閑和現代化。陽臺直接連通客廳,并設置了大面積的落地窗,采光更和諧通透。同時采用大的體塊設計,增強空間感。


望江府115平現代簡約風格裝修效果圖


吊頂四周留邊槽做燈帶做出懸浮的感覺,更好地拉伸層高,搭配無主燈設計,做出大氣的效果。借助地面亮光磚相應增加室內的采光度,讓空間顯得更加明亮。


望江府115平現代簡約風格裝修效果圖


在客廳的中央,有著一張方正的絨面地毯,頗具質感的木質茶幾設計端莊又大氣,搭配素藍色的布藝沙發,柔軟又干凈,坐感還舒適,讓空間充滿年輕舒適的氣質。


望江府115平現代簡約風格裝修效果圖


電視背景墻直接石材上墻,豐厚質感不言而喻,搭配格柵造型,豐富整體層次感。里側做了嵌入式設計,預留出很多內置空間,將電視和展示柜安裝在里面,使客廳顯得更為干凈整潔。


書房


望江府115平現代簡約風格裝修效果圖


原先隔開的臥室墻體全部被推掉,做成了完全開放式的布局,并改造成業主希望的書房空間。整體空間隔而不斷,細膩而優雅。舒適輕松的書房家具布置,自帶情感上的愜意氣質。


望江府115平現代簡約風格裝修效果圖


背后則直接打造了一整面的書柜墻,好看又實用,進一步實現了業主休閑娛樂的需要。大部分做成封閉式帶灰色柜門的柜子,中間位置則采用了玻璃柜門,里面的物件看的一清二楚,起到裝飾美觀的作用。


餐廳


望江府115平現代簡約風格裝修效果圖


餐廳與客廳在同一軸線之中,開放式的設計讓室內動線更加明朗清晰,同時也帶來寬敞大氣的視覺效果。搭配頂部的裝飾吊燈,空間更顯層次感。


望江府115平現代簡約風格裝修效果圖


餐廳墻面大量運用石材材質,呈現出一種現代風的端莊感。這樣做的目的主要是美化整個餐廳,并滿足整體的使用要求,兼具美觀、耐用、環保的功能。冰箱內置在同側,更好提升了餐廳的利用率。


望江府115平現代簡約風格裝修效果圖


另一面的墻壁打造了整面墻的餐邊柜,經典灰色柜體仿佛與墻面融為一體,更顯簡潔大方。鏤空區域則設置了直飲水點,設計隔板,既點綴空間,又補充收納,更好方便居家生活。


望江府115平現代簡約風格裝修效果圖


島臺和餐桌一體設計,島臺一側可作為操作臺,極大豐富實際功能和增大操作區域。由大理石延伸成為餐桌臺面,兼具美觀,且更好打理。餐桌與島臺相接,相應滿足用餐功能,像是一些節假日家庭聚餐,有效實現家人和朋友間的溝通交流,增強互動性。


廚房


廚房空間相對狹長,于是采用了L型的櫥柜布局,盡可能多地利用到整體空間。墻地一體的通鋪磚搭配光滑吊頂,顯得廚房干凈整潔,有利于渲染出安逸和諧的烹飪氛圍。


望江府115平現代簡約風格裝修效果圖


對于經常清潔的廚房來說,白色的櫥柜臺面非常合適,能夠將各種污漬看的一清二楚。搭配灰色的地柜吊柜,展現出簡約風的美感,讓廚房充滿了溫馨味道。


主臥


望江府115平現代簡約風格裝修效果圖


灰白配的簡約空間,使得整個臥室充滿年輕舒適的氛圍感。尤其是飄窗的極致應用,在拉伸視覺感的基礎上,增添更多功能性,使其成為一個休閑坐臥區,能夠安逸度過每個悠閑午后。


望江府115平現代簡約風格裝修效果圖


主臥灰色墻板搭配木色格柵,打造不一樣的高級感。搭配柔軟床頭配飾,更顯美觀統一,空間整體性也更強,讓人實際體驗到舒展寬博之美,由此營造溫馨浪漫的睡眠氛圍。


望江府115平現代簡約風格裝修效果圖


為了實現最大化的動靜分離,在設計布局的過程中,調換了原有主臥和衣帽間的位置,由此強化了實際生活動線,讓人們的居家生活變得更安逸。


望江府115平現代簡約風格裝修效果圖


臥室空間足夠大,這為步入式衣帽間的建立提供了重要前提。兩面相對的衣柜墻擁有充裕的儲物空間,黑玻柜門更是提亮了空間,擁有豐富多元化的空間享受,可以很好地滿足沉浸式從起床穿衣打扮為主的一站式體驗。


衛生間


衛生間的地面墻面以簡約灰為基礎,洗漱區放在最外面,懸空浴室柜選用石材,美觀好清理。墻上用小熊智能鏡張貼,搭配上背后的藏光,顯得格外大方。


望江府115平現代簡約風格裝修效果圖


介于鉆石型淋浴間特殊的結構形狀,使其擁有極佳的裝飾效果,同時更好地提高了空間的利用率。整體透光性也較為不錯,墻壁合理設計了壁龕,相應滿足業主的實際儲物需要。



TAG標簽: 望江府 現代簡約風格 王泓毅

算一算

我家裝修需要多少錢?

173739
m2

猜你喜歡

查看更多 >>
置頂

免費報價量房

×

算一算,你家裝修要花多少錢?

—— 知精準報價 避裝修深坑 ——

您的報價已生成完畢

  • 材料費用:21000
  • 人工費用:39000
  • 設計費用:0
  • 管理費用:0
×

預約您的設計師

平均七年以上的設計經驗資深設計師為您服務

您的稱呼:
手機號碼:
裝修小區:
房屋面積:
* 為了您的權益,您的一切信息將被嚴格保密
×

預約線下參觀

您的稱呼:
手機號碼:
* 為了您的權益,您的一切信息將被嚴格保密