武漢
家裝服務熱線 400-666-4637
當前位置:首頁 >裝修案例 >案例詳情

碧桂園映月灣300平現代風格別墅裝修效果圖

來源:山水人家裝飾 瀏覽人數:246次 更新時間:2025-03-05

作品信息

  1. 現代 案例風格
  2. 300平方米 房屋面積
  3. 60萬 參考造價

作品詳情

項目地址:碧桂園映月灣

項目面積:300

項目風格:現代風

項目施工:山水人家裝飾

工程造價:60w

 

碧桂園映月灣300平現代風格別墅裝修效果圖


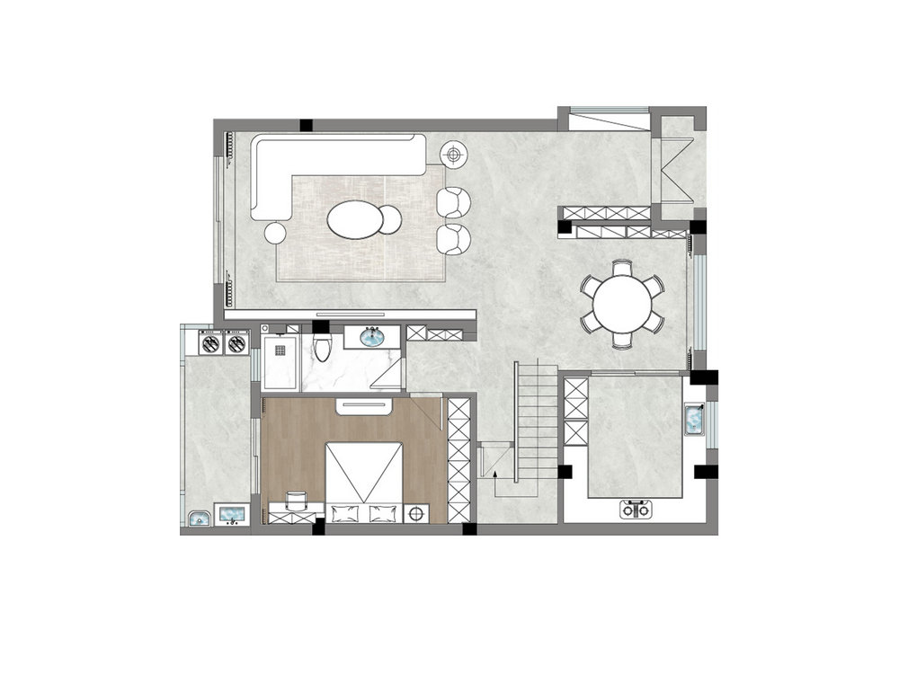
戶型解析

 

本案為建面200平的雙拼別墅,考慮到房屋的居住面積和整體外觀結構,最后把整棟房屋擴建到了300平。全房采用寬敞明亮布局,搭配無主燈設計,使得別墅本身更顯氣派。天然石材與溫潤木質形成對比,利落中透著意式的奢華感,彰顯了豐厚的生活氣息。

 

碧桂園映月灣300平現代風格別墅裝修效果圖


一樓空間規劃成客餐公共區和一間老人房。(1)門廳做了外擴,得到了一個寬敞的玄關區域;(2)把整個房屋往庭院擴展了一個陽臺的區域,這樣的客廳會更符合別墅的視覺感受,;(3)延伸出一間戶外的陽光房,滿足家庭的晾曬需求。

 

碧桂園映月灣300平現代風格別墅裝修效果圖


二樓的整層規劃分成了兩個區域,一個是主人的套間,包含了獨立衣帽間、書房和衛生間,另外一個區域考慮到日后規劃,預留了一間兒童房。

 

碧桂園映月灣300平現代風格別墅裝修效果圖


三樓區域將原先的露臺做了擴展改造,設計成業主家小孩的主臥套房。同時延伸出一塊采光比較好的陽臺作為晾曬的陽光房,這樣使用更加方便,且擁有了充足的戶外空間。

 

客廳

 

碧桂園映月灣300平現代風格別墅裝修效果圖


客廳配色以米白、大地色系為基底,搭配木色、橘色等鮮艷點綴,自帶精致的時光沉淀感。自然光透過紗簾柔和灑入室內,營造出慵懶而奢華的光影層次。

 

碧桂園映月灣300平現代風格別墅裝修效果圖


在層高滿足的情況下,吊頂去掉了繁瑣的裝飾線條和大燈設計。遵循意式的理念,采用無主燈設計手法,顯得整體更為簡潔,讓燈光的氛圍感更加強烈。地面通鋪啞光磚,并覆上一層淺色地毯,彰顯優雅氣質。

 

碧桂園映月灣300平現代風格別墅裝修效果圖


客廳墻面選用護墻板+天然石材提升空間質感,自帶一股意式的俊逸隨意。家具擺放呈圍合式,米色、黑色的鋼琴鍵真皮沙發搭配橘色單椅,實現無拘束的落座自由。搭配奢石茶幾,利落中透著些許未來感。

 

碧桂園映月灣300平現代風格別墅裝修效果圖


電視背景墻則借天然石材與溫柔木質形成鮮明對比,讓空間有寬闊感。同側增添格柵元素,愈加豐富空間層次感。在如此空間里,業主得以享受獨處時光,亦或是在朋友圍坐時化作時尚的社交沙龍。

 

餐廳

 

碧桂園映月灣300平現代風格別墅裝修效果圖


連接客廳和餐廳,充分利用一樓公區優勢,更好地擴充使用面積。樓梯作為空間隔斷,劃分區域的同時,增加空間的溫馨感和居家氛圍。

 

碧桂園映月灣300平現代風格別墅裝修效果圖


餐廳定制整面餐邊柜,整體設計遵循意式的簡約。采用膚感灰的飾面來呼應家庭風格,奢石點綴更添幾分風雅。柜子暗藏拉手,顯得低調內斂且美觀實用。

 

碧桂園映月灣300平現代風格別墅裝修效果圖


餐廳選用奢石潘多拉餐桌,表面光滑細膩,增添了高級大氣的氛圍。圓桌造型更好容納一家人共同用餐,再加上圓形吊頂設計,交相輝映下增加空間儀式感。

 

廚房

 

碧桂園映月灣300平現代風格別墅裝修效果圖


廚房做了半開放式設計,空間互動性更強。內部采用U型櫥柜布局,進一步放大使用環境。白色吊柜搭配灰色地柜,空間更顯干凈整潔。雙開門大冰箱、烤箱等電器嵌入柜子里,整體形成優良的洗切炒使用動線。

 

主臥

 

碧桂園映月灣300平現代風格別墅裝修效果圖


將原先的露臺做了擴展改造,設計成超大的主臥套房。地面通鋪原木地板,空間更添溫潤清新之感??紤]到晾曬的方便,將陽臺區設置成休閑角,相應放置了沙發及邊幾,便于開展休閑放松活動。

 

碧桂園映月灣300平現代風格別墅裝修效果圖


主臥整體采用無主燈設計,見光不見燈,實現舒適的照明效果。墻面大量應用護墻板,并做了分色處理,層次分明。配色以淺咖色為主,讓空間看起來更溫馨明亮。

 

碧桂園映月灣300平現代風格別墅裝修效果圖


將原本較小的兩間臥室合并到主臥,并設置成獨立衣帽間,這樣一來很好地滿足業主的使用需求。地面羊毛地毯點綴,使得梳妝臺環境愈加帶感。諸多布置渾然天成,極富慵懶而考究的品味。

 

碧桂園映月灣300平現代風格別墅裝修效果圖


另一邊則改造成家庭衣帽間,空間非常寬敞。環形的柜體布局,營造出流動的線條感。由此保留出充沛的儲物環境,讓房間更少雜物堆放,提高家居的整潔程度。

 

次臥

 

碧桂園映月灣300平現代風格別墅裝修效果圖


連接陽臺和次臥,相應擴大了空間面積,使居住更加舒適。依靠通透采光設計一個休閑區域,擺放一張毛毛蟲沙發,打造成舒適的休息角落,讓整個房間更有層次感。

 

碧桂園映月灣300平現代風格別墅裝修效果圖


利用綠植充當隔斷,不僅能有效劃分空間,還為室內增添自然氣息。素凈雅致的臥室環境帶給人極佳的體驗感,業主能夠放下身心享受慢節奏生活。

 

書房

 

碧桂園映月灣300平現代風格別墅裝修效果圖


同理利用房間打造了一間休閑書房,沒有做過多的裝飾造型,一切隨心,更顯簡約時尚。合理擺了一張雙人沙發,搭配巖板茶幾,利于開展喝茶、放松等活動,安然度過悠閑時光。

 

碧桂園映月灣300平現代風格別墅裝修效果圖


靠墻則定制了到頂衣柜,整體內嵌其中,不多占空間。柜子選用膚感膜飾面,彰顯簡潔線條感,非常之環保耐用。

 

衛生間

 

碧桂園映月灣300平現代風格別墅裝修效果圖


衛生間采用干濕分離設計,很好地維護了整體衛浴環境。洗漱臺、馬桶區分排展開,提供了強勁的功能性。淋浴區安排在最里側,并借玻璃隔斷用以區分,確保了洗浴的獨立性。

 

露臺

 

碧桂園映月灣300平現代風格別墅裝修效果圖


為了讓別墅看起來更氣派,往庭院規劃了一個休閑區,高質量的戶外家具顯著提升區域的舒適度。綠化區種植了一棵橘子樹,增加庭院的活力,讓人更親近自然的同時,強化別墅的休閑氛圍。


TAG標簽: 碧桂園映月灣 現代風格 吳魁

吳魁 - 首席設計師

入行時間:2010 年 職稱:首席設計師

算一算

我家裝修需要多少錢?

173739
m2

猜你喜歡

查看更多 >>
置頂

免費報價量房

×

算一算,你家裝修要花多少錢?

—— 知精準報價 避裝修深坑 ——

您的報價已生成完畢

  • 材料費用:21000
  • 人工費用:39000
  • 設計費用:0
  • 管理費用:0
×

預約您的設計師

平均七年以上的設計經驗資深設計師為您服務

您的稱呼:
手機號碼:
裝修小區:
房屋面積:
* 為了您的權益,您的一切信息將被嚴格保密
×

預約線下參觀

您的稱呼:
手機號碼:
* 為了您的權益,您的一切信息將被嚴格保密