項目地址:保利城云廷
項目面積:128㎡
項目風格:現代風
項目施工:山水人家裝飾
工程造價:17w

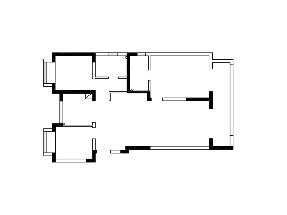
戶型解析

斥資裝修的不是房子,是不用出門找松弛感的底氣,業主因而獲得極佳的生活體驗,重拾了那份暌違的慵懶愜意。全屋定調現代風格,以淺色調為主題,賦予空間更多柔和舒適感。明凈入眼,柔色點睛,家的呼吸感藏在每一寸光影里,讓人久久回味,不能自已。

本案戶型方正,南北通透,基于業主的生活需求,對戶型做出如下調整:(1)采用客餐廳一體設計,打造開放生活空間;(2)聯通陽臺、客廳及主臥,整體形成順暢的回字形動線;(3)次臥借用一部分主衛,打造了嵌入式衣帽間;(4)衛生間采用干濕三分離設計,方便日常使用。
玄關

入戶定制到頂玄關柜,中間鏤空便于放置隨手物品。旁邊還布置了木質換鞋凳,整體造型簡潔大氣。墻上懸掛半身鏡,增加空間通透感,從門口便能點亮美麗心情。
客廳

利用陽臺連通客廳,空間變得愈加明亮寬敞。落地窗+白紗的組合,增加了整個客廳的光線,凸顯更多柔和舒適感。

客廳選用懸浮頂+無主燈設計,讓家里視覺瞬間提高。整體以白色為主色調,營造出通透空間感。地面柔光磚通鋪,彰顯美觀大方的氣質,過渡更加連貫。

客廳背景墻選擇墻板+木飾面材質,恰到好處的線條給人精致簡潔的美感。同時應用棕色大象耳朵沙發,搭配顏值邊幾及矮凳,品質與格調并存,極具家的包容性。

電視背景是一面素雅的墻,乳膠漆通刷,和吊頂、地面色調保持一致。電視正中懸掛,旁邊還搭配了漂亮裝飾畫,很有精致感。電視柜選擇落地款式,內置了抽屜的功能,可以收納各種小物件。
餐廳

將客餐廳完全打通,形成毫無拘束的開放空間,這樣一來讓一家人的互動交流更為親密??繅Χㄖ屏说巾敳瓦吂?,不僅是家里的顏值擔當,還擁有極佳的收納能力。

墻面懸掛了一幅裝飾畫,很好地裝點餐廳氛圍。再加上綠植、木質手推車等裝飾品點綴,充分展示業主品位,美化用餐環境的同時,提升家居格調。

餐廳選用木作餐桌,保留原有的木材呼吸感,啞光木蠟油凸顯天然肌理。加上玻璃花瓶、編織餐盤等配飾,進一步放大木桌的顏值表現力,提升一家人的用餐體驗感。
廚房
廚房整體配色以淺色為主,給人留下干凈舒適的初印象。U型的櫥柜設計,很好地劃分了洗切炒區域。雙開門冰箱置于櫥柜一側,不過多占用空間,使用動線更便捷。

淺色地柜搭配白色吊柜,整體清新又有立體感。同時保留了充足的儲物空間,方便廚具用具的日常操作。萌萌垃圾桶即掛即用,且不傷柜門。
主臥

主臥墻面通刷可可蛋奶乳膠漆,顯得溫馨而不失高級。再搭配頭頂的吊燈,使得臥室愈加清新明亮。同色系的軟裝配飾更是絕妙,利于營造溫柔、放松的氛圍。

主臥和陽臺連通,包括客廳在內,整體形成了“主臥—陽臺—客廳”的回字形動線。這樣使得空間更加開放流動,以增強臥室的通透感。

打造L型衣柜,顏值在線,且滿足房間的收納需要。同時作為空間隔斷,保障了主衛的隱私性,使得區域過渡更自然。
次臥
次臥飄窗變廢為寶,合理利用空間,將其調整為坐臥區或休閑區,提升居住的舒適度。臥室整體以淺色為基調,營造出開朗、明亮的感覺。

次臥借用一部分公衛空間,打造了嵌入式的衣帽間。整體用開放柜裝飾,架上很多板條進行間隔,方便收納日常衣物,更顯實用價值。
衛生間

主衛通鋪墻地一體磚,空間更顯干凈整潔。其中采用干濕三分離設計,合理劃分了衛生間功能區。鏡柜+懸空浴室柜收納拉滿,不留絲毫衛生死角。

衛生間濕區被設置在最里側,且用玻璃做了隔斷處理,確保了淋浴區的獨立性。墻面采用壁龕設計,可以放置一些衛生用具,讓業主的洗浴無后顧之憂。
韻湖首府118平奶油風完工案例欣賞
金色華府現代法式風格實景裝修效果圖
雅居樂花園105平奶油風格裝修效果圖
置頂—— 知精準報價 避裝修深坑 ——
平均七年以上的設計經驗資深設計師為您服務