武漢
家裝服務熱線 400-666-4637
當前位置:首頁 >裝修案例 >案例詳情

青山樽170平現代風格裝修效果圖

來源:山水人家裝飾 瀏覽人數:315次 更新時間:2024-03-12

作品信息

  1. 現代 案例風格
  2. 170平方米 房屋面積
  3. 25萬 參考造價

作品詳情

項目地址:青山樽

項目面積:170㎡

項目風格:現代風

項目施工:山水人家裝飾

工程造價:25w


青山樽170平現代風格裝修效果圖


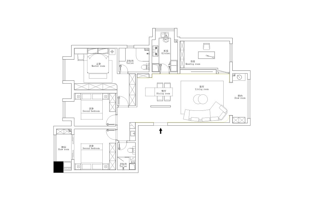
戶型解析


生活的藝術,如冬日暖陽般的慵懶,似一花一世界的溫情,仿若漫步人生的優雅腔調。本案面對的業主屬于社會上的精英人士,他們比較追求高品質、高格調的生活。本案作為江景大平層,擁有一線的濱江資源,住在奢美的江岸邊,感受流水的浪漫氣息。

空間大面積用到木飾面+大理石,碰撞出更多高級感。家裝細節精挑細琢,提升空間格調的同時,詮釋著優質生活的品位。各項工作循序漸進,逐漸勾勒出戚戚于心的精奢與理想。


青山樽170平現代風格裝修效果圖


房屋信息:四室兩廳,新房裝修。


青山樽170平現代風格裝修效果圖


本案戶型方正,南北通透。為了貫徹業主高品質高格調的生活追求,對房屋戶型做了部分調整,主要包括:(1)陽臺連接客廳,提升通透感,并在陽臺設置了品茗區;(2)餐廳區域做了裝飾隔斷墻,強化體驗感;(3)房間功能各司其職,包括臥室、書房、衣帽間等。


玄關


青山樽170平現代風格裝修效果圖


入戶位置安裝了一面裝飾墻,石材的厚重感搭配原木自有的溫潤感,無一不透露著簡潔大方,足夠沁人心脾。雙眼皮吊頂的設置,更好地凸顯層高,結合頭頂的水晶吊燈,入戶的開敞感充分顯現。


客廳


拆除陽臺門,將陽臺空間完全釋放,整體采光和通風得到極致優化。大面積落地窗的布置,視野開闊顏值高,給人一種大氣高級的感觀體驗。


青山樽170平現代風格裝修效果圖


客廳面積極大,墻面用木材作為飾面鋪設,有著溫和細膩的紋理細節。再加上堅硬石材點綴,仿佛蘊含著時間沉淀的魅力。兩種材質的碰撞,讓空間的層次感更強。


青山樽170平現代風格裝修效果圖


客廳家具不多,主體更側重于家居舒適度。黑色皮沙發處在視覺焦點,坐的安心的同時,保障了一定的美觀度。旁邊還有黑白格的方塊凳,極具趣味性。如同花束盆栽般的銅色落地燈美感十足,不失為客廳的一大亮點。


青山樽170平現代風格裝修效果圖


電視背景墻同樣用木飾面鋪貼,其中還隱藏了一處隱藏門。中間部位設置了電視柜,開架左右側留空,增強視覺立體感。下方石材地臺搭配實木格柵條,增添了空間輕盈感。


青山樽170平現代風格裝修效果圖


至于休閑陽臺上的布置,整體設計成品茗區。這里合理配備了茶桌茶椅,加上鮮嫩綠植的點綴,平添了幾分生機。業主能夠品茶的同時,坐在此處欣賞窗邊的江景。


青山樽170平現代風格裝修效果圖


另一側則設置了家政柜,外加一個洗手池,極大程度滿足業主的生活需要。原木色的吊柜以及懸空柜,整體配色自然和諧,且擁有較多的儲物面積。


餐廳


入戶裝飾墻背后就是家里的餐廳區域,吊頂位置結合墻面做了整體造型,作為客餐廳相連空間的吊頂分區,實現軟隔斷。同時很好地遮擋視線,留存一些神秘感。


青山樽170平現代風格裝修效果圖


餐廳墻面大面積用到原木材質,呈現出舒適的材質肌理,有種被溫暖的力量所包裹的感覺。整潔的廚房和餐廳空間融會貫通,兼顧功能與美學,有著一氣呵成的大宅氣派。


青山樽170平現代風格裝修效果圖


靠墻的位置打造了同色系的定制柜,植入較多的原木元素,中間部位留空,用以裝飾和擺放。上方用到黑玻柜門,同燈光相映成趣,這使得空間更顯簡約而舒適。


青山樽170平現代風格裝修效果圖


餐廳的設計沒有用普通的餐桌椅,而是設計成中島的島臺和餐廳相結合。這樣的設計讓餐廳顯得沉穩大氣而又不失品質,讓人忍不住聯想這么一個畫面:倒上一杯紅酒,慢慢踱步到窗邊品味著佳釀,欣賞窗外的美麗江灘夜色。


廚房


廚房的布置相對常規,整體采用U型的櫥柜設計,很好地滿足日常洗切炒功能。臺盆區有著最充足的采光和最棒的視野,窗外的景象都能很好地展現。加上墻面空間的利用,提供了充足的收納區。


青山樽170平現代風格裝修效果圖


櫥柜大面積運用灰色,搭配非常顯檔次,再加上通透的光線,不顯壓抑沉悶。高柜嵌入電器,冰箱、烤箱包括在內。如此靈活的操作空間,業主得以輕松享受下廚的樂趣。


主臥


主臥大面積用淺色作為背景色,以奠定臥室的空間基調。所呈現出的空間簡約有層次,結合大窗戶+紗簾,顯得通透又干凈。地面鋪貼一層實木地板,更好地柔和空間,使得家倍感溫馨。


青山樽170平現代風格裝修效果圖


主臥墻面更多以低飽和的灰度呈現,平板直接,讓空間清爽干凈。搭配黑色床頭也很不錯,自帶一種理性自律的感覺,整個房間的氣質瞬間提升。


青山樽170平現代風格裝修效果圖


床尾位置定制了一整面的柜墻,以起到家中收納的要務。咖色柜面質感簡潔,偌大一塊位置,顯得美觀大氣。柜內更是進行了合理分區,有疊有放,絲毫不用擔心儲物不夠的問題。


青山樽170平現代風格裝修效果圖


進門口位置同樣設計了一處收納區域,離主衛很近。整體用黑玻柜裝飾,彌補了部分雜物的儲存。通過選擇一些淺色調、通光性強的輕薄材料,營造出明亮大方的空間氛圍。


次臥1


青山樽170平現代風格裝修效果圖


房間光照格外強烈,可以很清楚地看到窗外的江灘美景。窗簾通光性強,有效提升了房間的光線和視線寬敞感,讓人感覺非常舒服愜意。房間里還布置了一個梳妝臺,實現功能性的同時,讓空間看上去很有個性。


次臥2


青山樽170平現代風格裝修效果圖


次臥內部還自帶一個休閑陽臺,打造了一個大尺寸的落地窗,使得室內有著非常好的采光效果,給人一種輕松舒適的生活體驗??繅€定制了到頂柜墻,灰色質感簡潔高級,適用性強。


書房


為了滿足業主的休閑娛樂需要,利用房間打造出一間書房??繅Χㄖ屏艘幻鏁駢?,中間位置做開放格,放了很多書籍,富含濃厚的文化氣息。


青山樽170平現代風格裝修效果圖


規范巨細的柜體組合,具有極其新奇的個性。淺色柜面與大量灰色相呼應,展現出空間的美感和平衡。平常坐在書桌品讀書籍,享受一種安靜輕松的生活方式。


衛生間


衛生間“麻雀雖小,五臟俱全”,通過合理的布局規劃,很好地劃分出衛生間各區。懸空浴室柜搭配鏡柜,保留一定的儲物空間,實際使用頗為方便。


青山樽170平現代風格裝修效果圖


淋浴區做成鉆石型,借助玻璃隔斷很好地維護了濕區環境,相應隔絕了水汽。另一邊則是馬桶區和懸空的烘干機,以起到相應的功能作用。





TAG標簽: 青山樽 現代風格 黎林

黎林 - 首席設計師

入行時間:2008 年 職稱:首席設計師

算一算

我家裝修需要多少錢?

173739
m2

猜你喜歡

查看更多 >>
置頂

免費報價量房

×

算一算,你家裝修要花多少錢?

—— 知精準報價 避裝修深坑 ——

您的報價已生成完畢

  • 材料費用:21000
  • 人工費用:39000
  • 設計費用:0
  • 管理費用:0
×

預約您的設計師

平均七年以上的設計經驗資深設計師為您服務

您的稱呼:
手機號碼:
裝修小區:
房屋面積:
* 為了您的權益,您的一切信息將被嚴格保密
×

預約線下參觀

您的稱呼:
手機號碼:
* 為了您的權益,您的一切信息將被嚴格保密