武漢
家裝服務熱線 400-666-4637
當前位置:首頁 >裝修案例 >案例詳情

海格公館160平現代風格裝修效果圖

來源:山水人家裝飾 瀏覽人數:282次 更新時間:2024-10-21

作品信息

  1. 現代 案例風格
  2. 160平方米 房屋面積
  3. 30萬 參考造價

作品詳情

項目地址:海格公館

項目面積:160㎡

項目風格:現代風

項目施工:山水人家裝飾

工程造價:30w


海格公館160平現代風格裝修效果圖


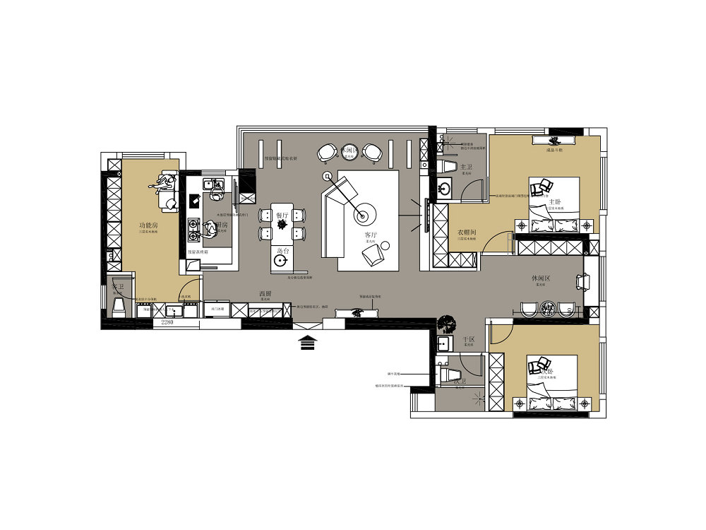
戶型解析


家里滿墻藝術涂料,隨處可見的顏值家具,超有個性的開放式空間……OMG誰能想到,這是退休叔叔阿姨的家,也太時髦歡型了吧!

空間色彩鮮明又富有層次感,增添了無盡的視覺魅力。沒有使用千篇一律的造型,而是用裝飾畫、擺件等軟裝搭配,使得整體更有設計感,彰顯著叔叔阿姨獨特的品味和個性。家里還充滿許多智能化的元素,一切都顯得那么便捷和高效。這樣的退休生活,簡直讓人羨慕不已。


海格公館160平現代風格裝修效果圖


房屋信息:三室兩廳,新房裝修。


海格公館160平現代風格裝修效果圖


本案戶型方正,南北通透,為了保障最大限度的空間開闊,對房型做出如下調整:(1)書房、客餐廳以及過道融為一體,形成一個通透的大空間;(2)主臥雙面有窗戶,因而調整了床頭位置,同時打造了開放式衣帽間;(3)多功能房配置了洗衣機、烘干機,滿足日常生活功能;(4)衛生間干區外置,實現三分離設計。


客廳


海格公館160平現代風格裝修效果圖


原始戶型客餐廳過道比較浪費,索性直接將書房、客餐廳以及過道融為一體,形成一個通透的大空間。采用極簡吊頂+無主燈設計,打破局限,起到擴容作用,使得空間視覺更為大氣。


海格公館160平現代風格裝修效果圖


客廳家具選品極富格調,選用kartell、Roche Bobois等品牌,充分彰顯業主品位。黑色弧形沙發是顏值C位,幾何造型締造出優雅的時尚家居感,親膚羊羔絨的材質,直接坐下卸去一身疲憊。

除此之外,還有設計款實木家具(搖搖椅、茶幾等)做搭配,當木質元素和多元色彩碰撞時,給客廳帶來更多活力和新鮮感。


海格公館160平現代風格裝修效果圖


地面通鋪糖果釉面的柔光磚,溫馨又顯大。同理鋪了一層漸變色地毯,強化空間層次。側面靠墻擺放了錯層置物柜和木紋過道柜,滿足基礎收納的同時,整體更富設計感。


海格公館160平現代風格裝修效果圖


電視背景選用巖板材質,干凈的灰白色系讓墻面質感更豐富精致。落地的木色電視柜,沉穩大氣,可以擺放各種精美裝飾物,尤其是霧化壁爐,讓家變得更時髦,同時使視覺體驗更多元。

陽臺保留大落地窗,視野通透開闊。墻面柜體用弧形做了過渡,并設置了擱板展示位,提升藝術品味,增加空間的高級感。


餐廳


海格公館160平現代風格裝修效果圖


橫廳的客餐一體設計,利用沙發充當隔斷。不僅僅如此,島臺的黑色與沙發相呼應,形成了一種視覺上的連貫性。上方吊燈由多個金屬環組成,形狀獨特且富有藝術感,營造出一種舒適而優雅的氛圍。


海格公館160平現代風格裝修效果圖


餐廳+島臺的設計實用又美觀,黑白灰配色巧妙融入,保持了餐廳區的整潔與有序。島臺下方是儲物空間,可以方便地存放生活用品。透明桌腿做支撐,凸顯懸浮的美感。這里輕輕松松容納多人用餐,為家庭聚餐或朋友玩樂提供了舒適的環境。


廚房


海格公館160平現代風格裝修效果圖


人間煙火氣,唯有美食撫人心,打造一個敞亮大氣的廚房勢在必行。借助兩扇聯動型材門,使得廚房可封閉可敞開。隔而不絕的設計,增添了餐廚區的互動性和參與感,一家人可以隨時享受料理的樂趣體驗。


海格公館160平現代風格裝修效果圖


而廚房采用傳統U型的設計,最大化利用使用臺面,剛好劃分了洗切炒功能??珯还?吊柜,濃淡總相宜,展現了強大的儲物容量。同時烹飪區和臺盆區之間做了高低臺處理,進而滿足業主的使用高度。


主臥


海格公館160平現代風格裝修效果圖


主臥空間寬敞大氣,地面木地板通鋪,打造出無邊際、無接縫的視覺效果。墻面則做了半墻造型,藝術涂料+木飾面,打破空間沉悶,富含生活朝氣,便于營造舒適安逸的氛圍。


海格公館160平現代風格裝修效果圖


主臥的雙面都是窗戶,床尾用到百葉簾,采光更通透。打造L型的開放式衣帽間,與相鄰區域相連,視線上得到延伸。同時借助衛生間半墻半玻璃隔斷的形式,借光入內,使得整個臥室格外敞亮。


次臥


海格公館160平現代風格裝修效果圖


次臥墻面同樣做了半墻效果,借助燈光析出材料質感。床頭位置實現個性化的設計,做成儲物柜或桌面的形式,更好利用室內空間。整體床品布置極盡溫柔,細繪甜美的睡眠時光。


海格公館160平現代風格裝修效果圖


旁邊靠墻還定制了到頂衣柜,配色以咖色為主,做了一點深色的點綴,使得整體更有設計感。立面簡潔干凈,沒有多余的裝飾,省去挑選把手的煩惱。


書房


海格公館160平現代風格裝修效果圖


客餐廳的走道末端,還有一個在細節處出其不意的“魔法空間”——開放式書房??臻g整體保持了極強的連貫性,通透感十足。定制頂天立地的黑色柜墻,具有較強的儲物能力,按需布置,收納格外輕便。


海格公館160平現代風格裝修效果圖


窗臺向陽處規劃了書桌辦公區,配色近于暗黑系,遇上太陽光,頗有種韓劇“救贖”的意味,溫馨又灑脫。同時借助顏值單品的裝飾組合,增加不少行進間的奇思妙趣。





TAG標簽: 海格公館 現代風格 劉天

劉天 - 首席設計師

入行時間:2013 年 職稱:首席設計師

算一算

我家裝修需要多少錢?

173739
m2

猜你喜歡

查看更多 >>
置頂

免費報價量房

×

算一算,你家裝修要花多少錢?

—— 知精準報價 避裝修深坑 ——

您的報價已生成完畢

  • 材料費用:21000
  • 人工費用:39000
  • 設計費用:0
  • 管理費用:0
×

預約您的設計師

平均七年以上的設計經驗資深設計師為您服務

您的稱呼:
手機號碼:
裝修小區:
房屋面積:
* 為了您的權益,您的一切信息將被嚴格保密
×

預約線下參觀

您的稱呼:
手機號碼:
* 為了您的權益,您的一切信息將被嚴格保密