曾盼 - 首席設計師
入行時間:2007 年 職稱:首席設計師
項目地址:美好名流匯
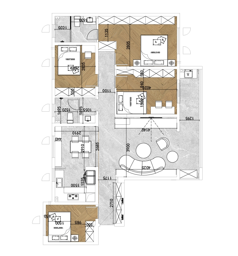
項目面積:152㎡
項目風格:現代簡約風
項目施工:山水人家裝飾
工程造價:24.3w
封面標題:152㎡四房現代風格,50m3儲物不僅多還好用

業主家是一個大家庭,因為家里人口比較多,每個人對家里的居住功能有著不同的需求。設計師通過捕捉要素、分析痛點,尤以收納需求為最,打造出充足的儲物環境及各式各樣的房間特色。設計上整體以咖色+灰色為主,在細節處搭配了干練沉穩的黑白色,并添入部分跳色,空間整體變得溫柔又高級。

房屋信息:四室兩廳,新房裝修。

本屋戶型方正,南北通透,設計重點更側重于家居的功能性與實用性,主要包括:(1)通過對空間的布局規劃,打造出足夠多的臥室房間,滿足業主實際的居住需要;(2)整體打造溯回動線,客餐廳、臥室、陽臺各處能夠有效連接;(3)居室各處打造儲物柜墻,滿足業主更多的儲物實需。
陽臺做了一個貫通,跟各居室緊密聯系起來,整體擁有非常優良的動線。客廳整體面積也增大不少,相應加強了區域縱深感。

無主燈的設計,顯著提升層高,達到了2.7m,看起來非常地大氣寬敞。地面通鋪柔光磚,750*1500的規格,鋪貼效果特別棒!

木飾面搭配水磨石,給沙發背景墻增添不少風情。與此同時還做了格柵的造型,富有層次感。家具是業主專門從家居市場選購的,黑色皮沙發是主位,加上橘色懶人沙發和按摩椅的組合,呈現難得的生活安逸感。

電視背景墻用到用到木飾面+格柵,觀感特別治愈。將電視做成內嵌式,不占空間的同時,也方便觀看。旁邊還擺放著梅花鹿擺件,鹿”與“祿”諧音,象征“富?!保噬畹脴I主的喜愛。

近7m長陽臺,門洞也有2.35m,活動面積很大。而埡口區域同樣用黑色不銹鋼門套包裹,非常貼近整體環境。里側布置洗衣機、烘干機及各類收納柜,有著更強的功能性。
餐廳天花做了一個懸浮吊頂,即四周留邊槽做燈帶做出懸浮的感覺,能把吊頂展現地更立體。靠墻一側打了一排矮柜,滿足實際儲物的需求。墻上還安裝了直飲水機,用水更方便。

餐廳墻面用到灰色墻板,有著強大的包容性。再加上金色裝飾物的搭配,空間變得高級有氣質。暖光打下去,制造空間里的愜意與舒適。

餐桌造型選用的是圓桌,非常適合多人口的家庭。同時餐椅用橘色做了跳色,更加亮眼。大家圍坐在一起,慢慢用餐,邊吃邊聊。
廚房做封閉式,雖然不大,但整體規劃依然在線。廚房墻側預留了1.5m寬的距離,留給雙開門的大冰箱。U型的櫥柜布局,擁有完備的洗切炒功能。

廚房整體以白色為基底布置,沒有任何的壓抑感。同時安裝了許多吊柜地柜做廚房空間收納,色調也是偏柔一些的咖色。魚肚白的瓷磚作為搭配,顯得干凈又整潔。
過道原先比較窄,后期進行了擴充,保證了一定的長度。同時用明裝的線性燈做了一個小設計,搭配上盡頭處的裝飾畫,更好地強化空間層次感。

主臥色調以淺色系為主,有種溫柔繾綣的感覺。整體擺設雖簡單但富有條理,打造了溫馨舒適的睡眠環境。

墻面用到墻布材質,并做了部分分色的處理,兼具層次感。窗簾的選色也格外鮮亮,同周圍環境形成一個十分和諧的空間視覺整體。除此之外,床體造型也極具特色,親膚柔軟的觸感更好眠。

為獲得充足的儲物環境,直接在床尾打造了整面柜墻。整體是5.2m*0.6m長的柜體,其中分成兩部分,即衣柜和展示柜。黑色玻璃展示柜更靠近床體,業主可以將一些顯眼易取的物品擺放在這里,展示儲物兩不誤。

房間深處便是主臥衛生間,它的存在能在一定程度上保證家人的隱私,避免不必要的尷尬。而且床離衛生間只有一步之遙,晚上不管是上廁所還是洗完澡出來都不用穿衣服,省時省力,尤其是大冬天的,洗完澡直接可以縮進被窩,簡直太舒服了。
衛生間是常規的設計布局,整體實現了干濕分離。墻地一體的灰色磚,空間更具質感。洗漱區做的是單盆洗手臺,搭配鏡柜,滿足基礎的洗漱需要。

而濕區則用玻璃護門做了隔斷,有效防止了水汽或水漬的蔓延。平時洗浴時也不用擔心馬桶上到處都是水漬,省去了清潔的煩惱,也提升了生活的舒適度。
次臥布局相對簡易,色調偏向于淺咖,整體給人的感覺特別溫馨。地板則是比較耐磨的木地板,墻面也是用到墻布,增加美觀度。同時用兒童桌椅取代床頭柜,相應滿足孩子學習生活的需求。

床尾同樣打造了通頂柜體,整體有2.7m長??耋w點綴豎條形黑色拉手,線條兼具美感。

另一間次臥的布局思路同其他房間保持一致性。出于對空間的考慮,沒有采購體積較大的裝飾物,而是選擇一些小擺件、小花瓶等置于柜子的上方。家具越少越簡單,越能顯得干凈舒適。
兒童房與陽臺相連,整體形成溯回動線,空間格外通透。房間色調以白色、咖色為主,顯得素雅潔凈。大面積的柜子設計讓房間看起來更加緊湊,入墻式的安裝方式也與墻壁很好地搭配起來。

房間的大件物品就是眼前的雙層床啦。為了孩子深入每一處細節,梯柜的設計給家里創造更多儲物空間。加高護欄保障孩子正常翻身。安全弧+防滑扶手更好維護孩子的人身安全。
保利華都日式原木風格裝修效果圖
南湖玫瑰灣現代風格裝修效果圖
友誼國際沙湖苑121平現代風格裝修效果圖
置頂—— 知精準報價 避裝修深坑 ——
平均七年以上的設計經驗資深設計師為您服務