項目地址:正榮紫闕臺
項目面積:143㎡
項目風格:現代風
項目施工:山水人家裝飾
工程造價:20w
封面標題:打通廚房,聯通書房,LDK+雙廳布局真是棒極了

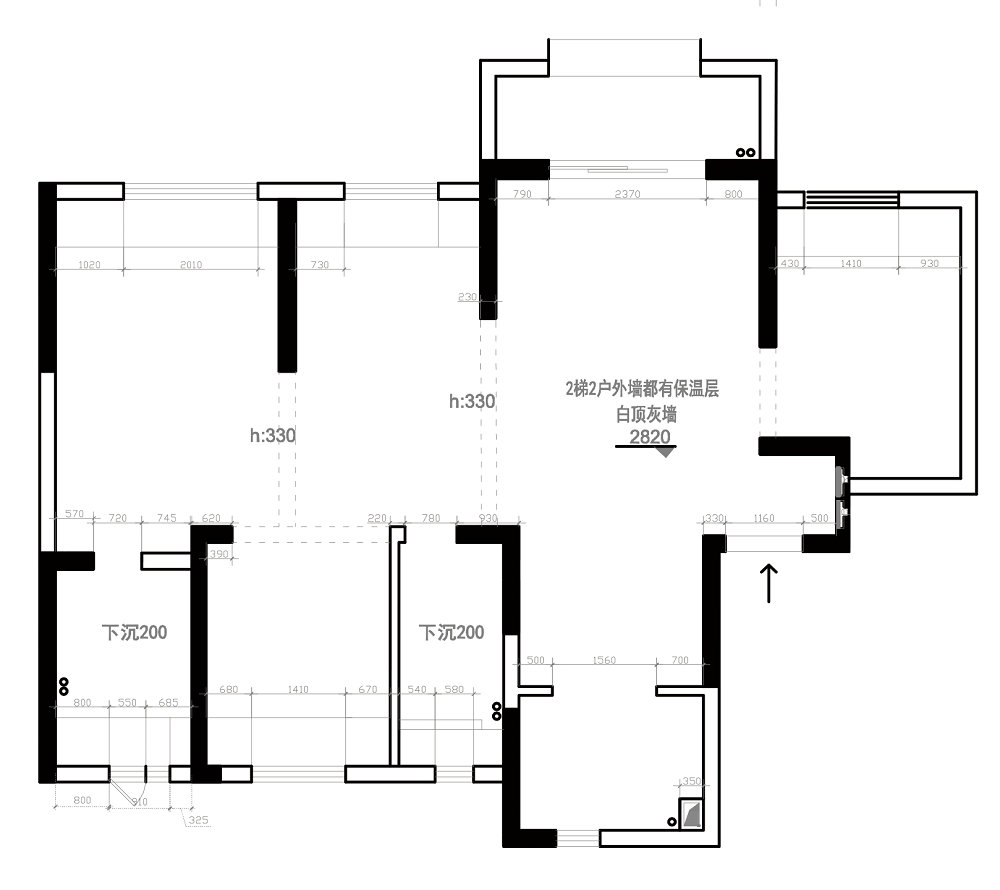
戶型解析
本案業主是幸福的一家四口,爸爸是建筑工程師,媽媽是在職教師,還有一雙兒女可愛大方。他們對于房屋的需求更側重于環境與功能,家要越簡約越好。沒有大量材質的堆積,也沒有過多色彩的繚亂,全房以黑白咖三色為主,有著溫潤恬淡的質感。設計方面,憑借LDK+雙廳布局脫穎而出,開放式的書房更易讓人沉浸其中,一家人由此共度美好和諧的生活日常。

房屋信息:四室兩廳,新房裝修。

本屋房型方正,南北通透,原房是四室兩廳布局,原有廚房、餐廳空間偏小,過道較長,整體空間感不夠好。再加上要遵循一家四口的生活習慣,為此對戶型做出如下調整:
(1)連通書房與客廳、餐廳和廚房,形成LDK+雙廳布局,全開放的格局,更好地解放空間,提升實際功能性;
(2)將衛生間設計與臥室一體,同時應業主需求,在臥室內部設計衣帽間區域,構造套間的形式;
(3)公共衛生間實現了干濕三分離,更方便一家四口的日常洗漱使用。
客廳
全屋LDK加雙廳布局,更好地解放空間,設計感十足??蛷d內部借助各種材質,彼此之間交錯對比,從視覺上強調了邊界感,有著各種各樣的動線走向,同時也有效削弱了區域與區域之間的割裂感。

打掉原有陽臺移門,整個將陽臺與客廳連結起來,增加互動空間的同時,室內變得愈加明亮。天花無主燈的設計,讓頂面更加簡潔干凈,視覺上顯得層高更高,光線更均勻。

客廳的家具形態基本是從空間美感上著手考慮。黑色牛皮沙發,立體飽滿的胖墩墩造型,擁有極致的坐臥體驗。橙色自動按摩椅作為空間點綴,愈加豐富了客廳的明媚色彩。地面的加厚地毯柔軟舒適,下腳一點兒都不涼。

電視背景墻用到了巖板+格柵的組合,高級感十足。旁邊用木飾面做了裝飾點綴,平添更多生活氣息。其中暗含一扇隱藏門的設計,里面則是女兒房。
書房
書房做的是半開放設計,利用島臺做了空間隔斷。為實現空間分區,地面略有抬升,且用木地板鋪設了整個區域,所以完全可以在上面脫鞋走動。作為延展與家人客人互動的社交區域,最為合適不過。

這里也是孩子的學習區。側面打造了一整面的書柜墻,里面擺滿了各種書籍讀物。旁側還配置小的桌椅靠墊,作為閱讀角,豐富著孩子的課余生活。除此之外,還有一座大鋼琴充當C位,充分陶冶孩子的生活情操,培養更多的興趣愛好。

有的時候,這里也是業主暫時的休閑地。端一杯咖啡來到島臺處,欣然地閱讀起雜志,時不時伏案記錄,好不美好愜意。
餐廳
開放式餐廚的布局,直接打通了餐廳、廚房。,由此實現全開放的空間結構。餐廳正面是木飾面裝飾的墻面,增添更多的生動氣息。冰箱內嵌入墻,不占地方的同時,更好地提升了家居動線。

通過利用玄關區域,設計了一整面鞋柜,入戶的大氣感由此體現。柜體中間做開放格,用以存放各種裝飾物或生活用品。柜體下方則直接做了10公分左右的空間,放拖鞋或掃地機器人都非常的方便。

餐廳墻面整整齊齊排列了幾組業主旅游時的歡樂圖片,無論是誰來瀏覽都會心生贊嘆,充滿好感。家具擺設方面,巖板餐桌搭配上橙黑組合的餐椅,與客廳的配色呼應,強化了空間的統一性。

屬于一家四口的幸福家庭,每日少不了歡聲與笑語。大家齊聚在餐桌旁,吃著熱騰騰的飯菜,講著日常的趣味故事,慢慢滋生出溫柔甜蜜的情意。
廚房

開放式廚房是這套房子中最亮眼的地方,U型的櫥柜布局,功能區分布精致又小巧。上白下灰的櫥柜搭配白色墻磚,顯得異常干凈。廚房的布局采用高低臺設計,更好地符合業主的烹飪習慣。烤箱、冰箱等廚房家電準備就緒,與柜體保持一致,將使用空間和顏值最大化。
主臥
主臥整體面積偏大,應業主的實際需求,在臥室里設計出衣帽間及衛生間,構成套間的形式。彼此之間相互獨立,互不干擾,能夠更好地為業主提供服務。頂部照例無主燈設計,見光不見燈,氛圍感直接拉滿。

床頭背景是淺棕色,并做了格柵的裝飾造型,增添了更多空間情調。旁側舍棄掉一個床頭柜,將其改造成獨立梳妝臺,女主人的化妝打扮也有了著落。整體再搭配青色的床上飾品,營造出一個靜謐溫馨的休憩空間。

通過利用主臥空間大的特點,規劃出一塊區域做了套內的小型衣帽間。增設的柜體既滿足了空間分隔的效果又起到收納儲物的作用。這里更多成為女主人的獨立空間。

將衛生間設計與臥室一體,增大了衛生間內的舒適性。其間還存在一條衣柜走廊,里面存放著不同季節的服裝服飾,充沛的儲物量讓業主省去了不少心力。

主臥衛生間是傳統的衛浴三件套,彼此之間互不干擾。尤其是洗浴區還用玻璃護門圍了起來,防止水流濺到馬桶,引起不必要的尷尬。
次臥
女兒房以白色為底,粉色襯托,顯得溫馨又浪漫。波浪板的造型,加上石膏線條的刻畫,愈加豐富了空間層次。一側床頭打造開放式儲物格,更方便收納置物。

房間里沒有使用花哨的裝飾及設計,到處散發著可愛甜爽的氣息,充滿了童思遐想。角落配置獨立學習桌,簡單還實用。身前的置物架同樣擺滿了兒童話本,共演一段甜蜜的生活時光。

男孩的房間以藍色調為主,完美打造出愜意空間。房間墻面用到墻板+木飾面的材質,品質感很不錯。床頭一側則擺放了兒童學習桌椅,保障了孩子的日常學習生活。衣柜里側設計開放格,目前是放置了幾盆綠蘿,更好凈化室內空氣,后期可以擺放裝飾物和書籍,方便居家使用!
衛生間

公共衛生間有效實現了干濕分離,整體利用率也大幅提升。由于家里有兩個孩子,上學時間又比較接近,為防止爭用衛生間情況的發生,衛生間做了雙臺盆的設計,更方便日常洗漱。浴室柜底部懸空,同樣能滿足實際儲物的需求。
華潤紫云府極簡風格裝修效果圖
南益名悅華府極簡風格裝修效果圖
聯泰香域水岸158平現代風格裝修效果圖
置頂—— 知精準報價 避裝修深坑 ——
平均七年以上的設計經驗資深設計師為您服務