項目地址:中建鉑公館
項目面積:139㎡
項目風格:現代風
項目施工:山水人家裝飾
工程造價:19w
封面標題:爆改139㎡三室兩廳,直接多出一個衣帽間

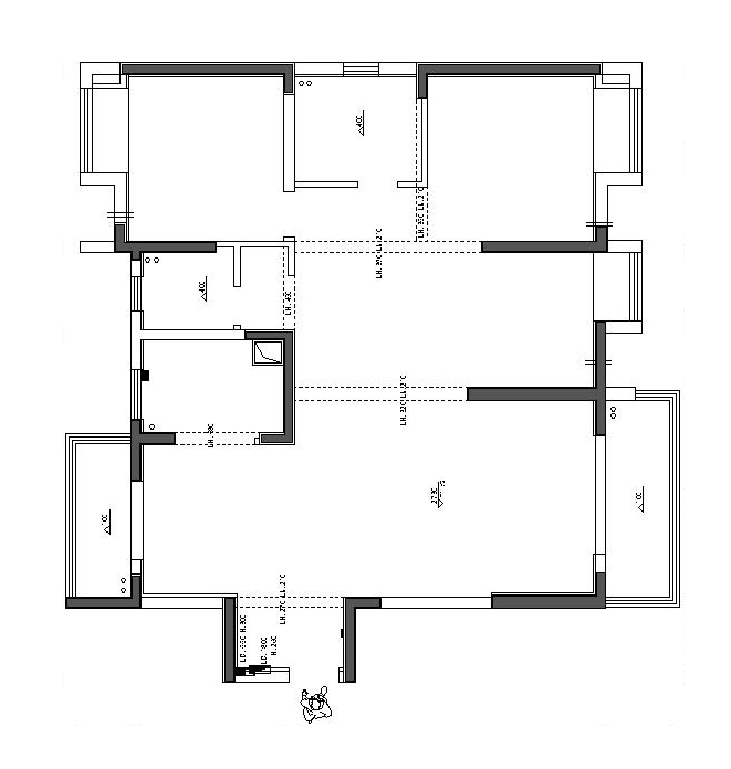
戶型解析
這是一個三口之家,業主夫婦在市政工作,家里還有一位可愛的小孩。日常父母偶爾暫住,更多的時間是一家三口和諧共處。又因這房子會陪伴大家未來很長一段時間,為避免裝飾過時,選擇了經久不衰的現代風格。色彩搭配以高級灰和暖色調為主,質感更好。沒有繁雜的設計,更多側重于功能性,經濟且實用。經由各種家裝元素的疊加,最終打造出高級感滿滿的幸福家居環境。

房屋信息:三室兩廳,新房裝修。

本案戶型方正,南北通透,本身就是三房兩廳兩衛雙陽臺的格局。再加上業主對于居家生活有著多方面的需求,為此對戶型結構重新做了調整,主要包括:
(1)連通客廳與陽臺、餐廳與小陽臺,增加整體的使用面積,并獲得充足采光。
(2)玄關處做了一個隱藏式的鞋帽間。
(3)主臥做成一個套間的格式,借用部分次臥面積,改造成了衣帽間。同時各房間都打通了飄窗,獲得更多生活面積。
(4)公共衛生間通過合理分區,有效實現了干濕分離。
玄關
入戶即見到頂置物柜,保障了極強的整體性。乍看是普通柜門,可實際上卻是……一扇開門!

內側布置一個隱藏式的鞋帽間,完全叫人移不開眼。里面滿滿當當擺放了業主的鞋子,儼然一副收藏室的姿態。
客廳
原先客廳不夠通透,通過將陽臺區域納入其間,直接改善了整體居室環境。擴充生活面積的同時,加強了客廳的縱深感,空間得以變得敞亮大氣。沉浸在舒適的客廳空間,頗有些樂不思蜀的意味。

客廳無主燈懸浮吊頂和雙眼皮吊頂相輔相成,在視覺上呈現出一個錯層的效果,打造更多的空間層次。地面通鋪灰色磚,視覺觀感更好。同時引入全屋地暖,宅在家里特別舒適。

沙發背景墻用的是護墻板材質,另一邊還做了格柵造型。面前是一張大的駝色轉角沙發,有著不愿起身的舒適靠感,時刻演繹慵懶進行時。金色茶幾、黑色立式落地燈的搭配,更好地裝點品味空間,展現美好優雅的生活情調。

電視背景墻方面,灰玻+白色懸浮收納柜的造型非常地引人關注。黑白色系的搭配,顏值特別抗打。滿墻的電視收納柜,很好地滿足了實際儲物需求。

為更好地利用居室空間,特意將電腦設備放在了陽臺區域,共享充沛采光的同時,化身快樂生活的一角。另一側則是常規的家政區域,合理放置了洗烘一體機、吸塵器等家政用品,做家務時也愈加方便。
餐廳
客餐廳相對而立,空間非常開闊,而原有餐區的格局并不是這樣的。起初面積還不到10㎡且不夠大氣,為此將小陽臺與餐廳做了聯通,實際擴充到15㎡,使其產生一個大平層的視覺效果。

靠墻還打造了到頂餐邊柜,冰箱做內嵌設計,尺寸完美結合。同時還打造了小巧的西廚區,更好地滿足業主做輕食方面的需求,為餐食添光加彩。各種配料應有盡有,臺上盆的造型設計,更顯精致靚麗。

餐廳內部,1.4m長的巖板餐桌增加了一個800寬的島臺,整個餐桌的長度實際達到了2.2m。優化過后的餐桌可以容納8人,輕松用餐不在話下,甚至還可以開轟趴。島臺內部還安裝了軌道插座,更方便平時充電休閑。

一家三口每天圍坐在一起享用美食,更好地增進彼此感情。與家人聊聊天,分享每天的日常故事,這完全就是理想中的餐飲生活呀!
廚房
U型廚房簡單實用,選用深色櫥柜,顯得光亮潔凈。整體結構設計也完全遵循業主需求,讓下廚變成一件輕松享受的事情。

同時安裝許多吊柜做廚房空間收納,業主可以根據個人習慣收納相應廚房用品。靠墻特意擠出一個柜體位,直接做到頂,內嵌了烤箱等廚具,形成相對合理的烹飪動線。
主臥
主臥整體應用淺咖色調,墻面貼了墻布,看著空間更有檔次。搭配著木色地板,給人的感覺比較舒適。如此簡化的設計,完整呈現了溫暖和氣的睡眠環境。
床頭背景同樣用到護墻板材質,不同色彩的疊加,愈加豐富了空間層次。格柵造型的存在,更是錦上添花。加之線性床頭燈的點綴,則給房間增添了更多氛圍感。

通過打掉主臥原有飄窗,增加臥室采光面積的同時,該區域也被改造成業主的專屬化妝臺。除去常規的桌椅擺放,一側還內置了豐富陳列柜,起到裝飾、儲物的雙重功效。臺面上有著如化妝鏡等精致裝飾物,尤以水晶鹽燈為最。點綴室內空間之余,還有香薰擴香的效果。
太空人床頭柜有著生動形象的造型,兼顧顏值與實用。如此創意更好地點亮生活的每一個角落,也為安逸家居注入豐沛的活力。

主臥實際上做成一個套間的樣式,包括睡眠區、衣帽間、主臥在內。側面還打造了綠色到頂衣柜,色調非常地養眼。柜面的中間部位則用一面全身鏡所代替,拿完衣物即可著裝展示,所有步驟一氣呵成。
通過將部分次臥面積納入到主臥,由此獲得了業主心心念念的衣帽間。整體布置以白色系為主,實際收納格外充裕。黑色拉手的點綴,更好地強化了空間的呼吸通透感。

主衛的布置則相對簡練。通過用玻璃護門隔出洗浴區,可避免淋浴時馬桶被淋濕的尷尬。
同時在馬桶區靠墻一側設置了三層隔板儲物,這樣一來,衛生間的收納也有了保障。
次臥

次臥目前是當做客房在用,整體布局稍顯簡單。全屋貼滿墻布,品質感自然流露。為適配咖色系空間,就連空調也選用的類似色調。角落處綠植的點綴,更是渲染了靈動輕和的生活氣氛。

由于將一部分居室面積讓給了主臥,所以次臥的柜體布置略顯單調。橫向打造的薄柜成了最大的亮點,一側做開放格,擺放著一些精美裝飾物。

兒童房同樣打掉了室內飄窗,盡可能多地增加活動面積。同時也成為孩子沐浴陽光的地方,平時的玩耍嬉戲也在這里。

房間里最大的存在,莫過于眼前上下鋪的高低床啦!家里雖說只有一個孩子,但為了更好地伴讀陪睡,業主毅然決然地選擇了這款床。隨著孩子的不斷成長,下鋪更多成為娃娃們的聚集地,充滿了童真與樂趣。樓梯收納箱的精妙設計,更多承擔著房間收納的重任。房間物件雖少,但里外里都洋溢著愛!
衛生間

公共衛生間通過將洗漱臺外置,很好地實現了干濕三分離。具體的布局也非常符合業主的使用頻率和需求,布局合理動線明確。

衛生間應用墻地一體的通鋪磚,讓空間更顯通透。其中濕區墻面做了壁龕的設計,滿足更多的儲物實需。整體處處體現細節,衛生間打掃起來也方便多了。
漢陽印象135平現代風格裝修效果圖
光谷新世界現代輕奢風格裝修效果圖
深業泰云府128平美式風格裝修效果圖
置頂—— 知精準報價 避裝修深坑 ——
平均七年以上的設計經驗資深設計師為您服務