項目地址:萬科理想星光
項目面積:120㎡
項目風格:現代風
項目施工:山水人家裝飾
工程造價:16w
封面標題:120㎡現代風,無主燈設計的新家,讓寂暗無處遁藏
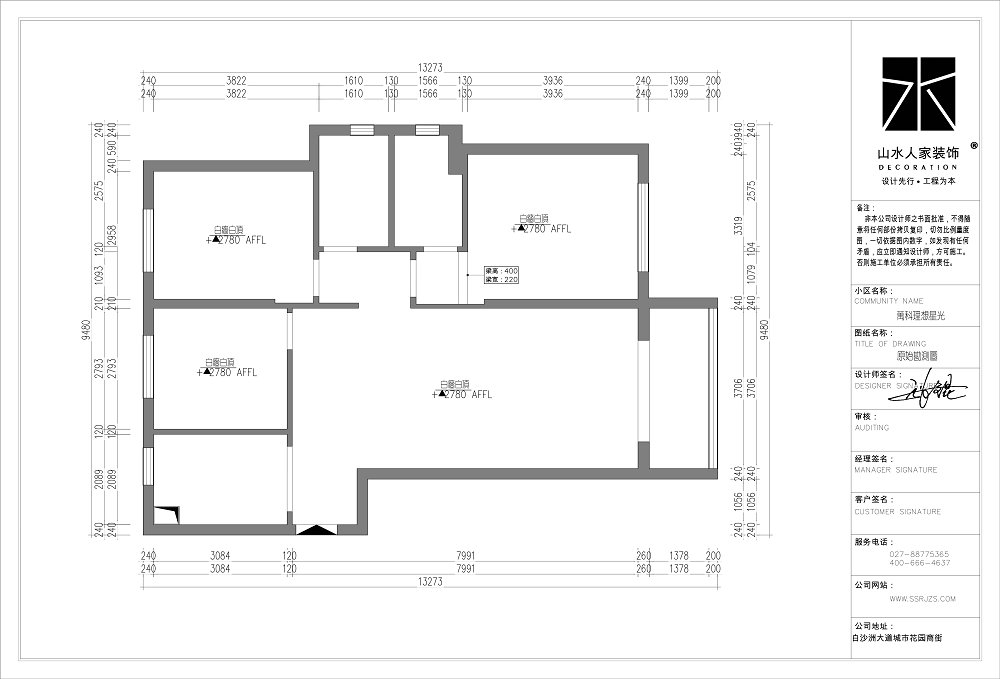
戶型解析

家里有光,才能幸福安康。業主是一對白領夫妻,他們過著早出晚歸的生活,生活雖忙碌但趣味常有。他們不喜歡回到家是漆黑的一片,他們渴望光明,渴望溫暖。鑒于這樣的情況,全屋做了無主燈設計,處處皆可見光。各個私密角落同樣安裝了燈具,作為氛圍燈光,增添了更多光亮與精彩……

本案戶型方正,南北通透。整體空間布局而言,沒有做過多的調整,只是部分微調:(1)客餐廳做開放式布局,以此增加更多的活動面積;(2)業主想要一個衣帽間,于是騰出一個臥室空間改成衣帽間,借此滿足業主收納儲物的需求;(3)因進門就能看到衛生間,顯得不雅觀,于是設置了隔斷,增加美觀度的同時保障一定隱私。
客廳
客廳整體色調以純白色系為主,給人非常潔亮的感覺。無主燈的設計,提供充足照明的同時,進一步提升整體空間的氛圍感。軌道燈+射燈的配置,更是讓室內陰影無處遁形。

藉由打通客廳陽臺,增加實際的使用面積,并獲得了充足的采光視野。地面通鋪實木地板,更添一份溫潤的質感。休息的時候躺在舒適的綠色單人沙發上,享受片刻的安寧。

沙發背景墻做了一個弧形造型,進一步增加了空間層次感。在燈光的映照下,整體輪廓日益顯現,悸動的感覺油然而生。灰色海綿弧形布藝沙發的應用,愈加貼近整體的背景色調。搭配著水磨石圓形茶幾,精致生活的脈絡可見端倪。

而電視背景墻用到魚肚白巖板,搭配對應顏色的地臺,顯得格外整潔。旁側還用實木護墻板做了修飾,平添更多質樸的韻味。兩只大白熊擺件憨態可掬,特別地可愛。
餐廳
進門口抬眼便見玄關柜,極大程度滿足了業主的儲物需求。銀白色臺面,盡顯精致閃耀。其間中置臺的設置,承擔著換鞋柜的功能,內側還裝了穿衣鏡。柜體一圈都有燈帶的鋪墊,作為輔助光源更是絕妙。

餐廳與客廳相連,無形之間增加了整體活動面積。復古吊燈+各種燈帶的設置,餐廳區域也變得愈加閃亮。面前還有一個大的餐邊柜,整體造型偏米色,質感及光澤度較高。一側是置物柜,擁有豐富的儲物空間,而另一側是酒柜,茶色玻璃背后是業主珍藏的酒水,每到值得紀念的日子便會開懷痛飲。

餐廳整體家具布置也比較簡單。除一張魚肚白臺面的餐桌外,就是四把米色餐椅。有的時候還可以邀請摯友一同吃飯,共度美好的時光。
廚房
廚房整體面積相對有限,所以每個區域該怎么用都要仔細揣摩。300*300鋁扣板的應用,不僅防潮防水,顏值也得到保障。U型的櫥柜布局,更好地滿足各工作區的實際使用,相應契合業主的烹飪動線。

廚房墻面貼了淺色的磚,在自然光的照射下,顯得暖意十足。而白色吊柜+木色底柜的配置,適配度極高,給人極其鮮亮的感覺。面對這樣的廚房環境,作為美食廚的業主很樂意在此烹飪。

最里側的是廚房里的臺盆區。底部的實木柜面跟周圍的有些不同,目的在于保障通風換氣。與此同時,這里也是臨窗戶最近的地方,累了乏了,看看窗外,換種心情再來一次。
主臥
主臥整體以暖色調為主,讓人感覺特別地溫馨舒適。再加上開窗設計,室內有著豐富的采光日照,顯得格外敞亮。地面鋪貼實木地板,增添更多的生活質感。

主臥背景墻用的米色護墻板,突出質樸純凈的意蘊。床飾方面以大片灰色為主,并用桔色做了分色,顯得更為活潑生動。兩邊黑色床頭柜對稱擺放,借以存放部分精致的小物件。

為保障充足的儲物面積,特意打了一面衣柜墻。白色柜面搭配些許的黑色線條,增加更多的美觀度。而剩余的墻面均用到米色墻布,紋理清晰,美輪美奐。
次臥

次臥主要是當客房在用。整體結構布置同主臥保持一致,一樣的到頂衣柜墻,一樣的米色墻布……所有的一切,都顯得格外簡潔干練。而床頭背景墻涂刷著米色乳膠漆,平淡中即見質感。
衣帽間

本房原是三居室布局,但業主迫切地想要一個衣帽間。于是騰出一個臥室空間改成衣帽間。除正常儲物外,還可以當做休閑區。實木地板上盡可以隨心所欲,做運動、午休等都是非常適宜的。
衛生間
衛生間通過實現干濕分離,相應維護優良的衛生環境。干區實木浴室柜+方形鏡面的應用,實用性能極強。頂部同樣用到300*300的鋁扣板,整體光澤度極高。

濕區則用玻璃推拉門有效隔開,地面還安裝了擋水條,防止水流過溢。地面則是冷色調的地磚,無形之間便劃分了區域。周身墻面還用到淺色瓷磚,更添一份暖意。
信達新外灘133平意式簡約風格裝修效果圖
愛家名校華城現代簡約風格裝修效果圖
融科天域152平日式風格裝修效果圖完工案例
置頂—— 知精準報價 避裝修深坑 ——
平均七年以上的設計經驗資深設計師為您服務