陳東 - 首席設計師
入行時間:2014 年 職稱:首席設計師
項目地址:半島九里
項目面積:123㎡
項目風格:Jpandi風
項目施工:山水人家裝飾
工程造價:15w

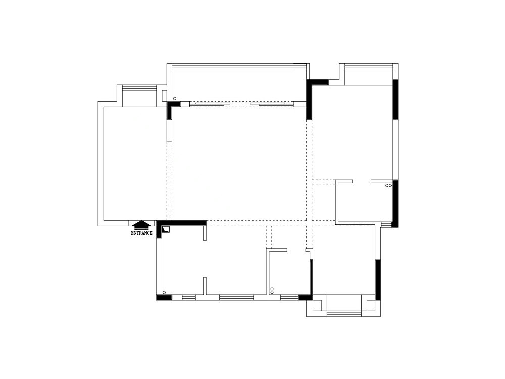
戶型解析

本案業主是一個精致boy,目前一個人居住。因為工作繁忙,經常加班,所以希望回到家是一個非常放松的狀態。為此全房采用比較舒服的繁星白+胡桃色配色,配合人性化的細節布置,業主直言:住在里面,就像日子被調成了靜音模式,變得慢慢又漫漫,無論外面多辛苦多累,回到家,一切都是治愈的,放松的...

本案戶型方正,南北通透,功能上深度考慮了空間布局設計、收納系統設計及去家務化的設計等,對房型做出如下調整:(1)把功能房(書房和琴房)放置在進門處,增加門廳的通透性;(2)客廳陽臺打通,安裝了大玻璃窗戶,強化空間采光視野;(3)餐廳廚房做了一體化設計,設置了隱藏聯動門,增加了社交互動性。
客廳

客廳陽臺打通,安裝了大玻璃窗戶,所到之處有了光,人便有了幸福感。采用拱形門洞的設計手法,愈加柔化空間。全房采用比較舒服的繁星白+胡桃色色系搭配,很有Japandi的味道。

客廳采用懸浮頂的設計,進一步拉伸層高,配合豐富的無主燈的燈光層次,給人一種賞心悅目的感覺。地面通鋪柔光磚,一體無縫的效果甚是驚艷。收納系統設計方面,門廳設置了800庫,方便日常存放雜物。

灰色沙發質樸大氣,搭配各種拼色抱枕,增添更多生活情趣。沙發后方騰出一個過道空間,方便平時業主走動及家里寵物玩耍。背景墻定制了一組收納柜,柜子和墻面色調保持一致,搭配木色開放柜及裝飾畫,顏值和功能兼具。

電視背景墻選用藝術漆材質,繁星白配色比較養眼。搭配壁畫電視,一幅《散步在阿讓特伊附近的海濱公園》躍然紙上,賦予空間藝術感。下方是胡桃色落地電視柜,相應豐富空間層次。

陽臺區域合理規劃成家政區及休閑區,一邊定制了到頂家政柜,放置了洗烘套裝及掃地機,方便日常衛生清潔。角落還有一個貓柜,就近收納,分門別類,也讓生活更有條理性。
餐廳

餐廳廚房做了一體化設計,更為緊致地利用室內空間,增加了社交互動性。同時設置了隱藏聯動門,讓空間格局更靈活多變??看岸ㄖ瓢偃~簾,采光更清透。

餐廳布置清新脫俗,擺放了巖板餐桌+拼色餐椅,顯著提升餐廳顏值。頂部還安排了兩盞飛盤燈,營造溫馨舒適的就餐氛圍。
廚房
廚房采用U型櫥柜布局,合理劃分了洗切炒區域,使得空間利用率達到最高。其中臺盆區和烹飪區之間做了高低差處理,整體符合人性化設計,平添不少屬于烹飪的樂趣。

另一側則布置了水吧區及西廚區,滿足業主不同方面的用餐需求。櫥柜選用白色柜面,整體顯得干凈明亮。其中柜子內置了烤箱及雙開門冰箱,使用動線更為流暢。
主臥

主臥衣柜調轉方向設置在床尾,大大增加了收納空間。同時定制了一體式的書桌區,更好滿足業主的使用需求。臥室保留不錯的采光視野,使得整體環境溫馨有趣。

主臥墻面用到藝術漆,配合豐富的吊頂造型,簡潔大氣又耐看。床板用木飾面修飾,搭配米色床頭,給人以舒爽的直觀感受。床邊用氛圍燈光點綴,借以鋪陳出舒適睡眠氛圍。
次臥
次臥整體布局同其他房間保持統一調性,給人的感覺非常宜居自然。素樸的墻面布置搭配床飾軟裝,實際體驗感比較好,方便親朋好友留宿過夜。

靠近房門位置則定制了到頂衣柜,滿足房間的基礎收納功能。整體選用暖白配色,同房間環境融為一體,不浪費一絲空間。
功能房
布局上將功能房放置在進門處,增加門廳的通透性。靠墻定制了一整面的書柜展示柜,黑玻柜門+燈帶裝飾,彰顯出非凡的書房氣質。整體儲物量在線,可以放置一些精美裝飾品及書籍。

窗戶上裝有百葉簾,借此保證室內的采光。書房設計注重實用性和美觀性,上方有白色儲物柜,搭配深色書桌椅,營造出寧靜舒適的學習工作氛圍。書桌一側延伸出一架黑色鋼琴,充分彰顯業主的閑情逸致。
衛生間
主衛通過合理布局,有效實現了干濕三分離。其中干區采用鏡柜+懸空浴室柜的組合,在收納洗護用品的基礎上,維護了衛生干凈的使用環境。

除去智能馬桶的安排外,將濕區設置在衛生間內側,并布置了一個浴缸,由衷提升業主的使用體驗,泡個澡,又是被治愈的一天。
龍山觀邸157平美式風格裝修效果圖
車都春臺里117平現代風格裝修效果圖
華發外灘首府140平輕奢風格裝修效果圖欣賞
置頂—— 知精準報價 避裝修深坑 ——
平均七年以上的設計經驗資深設計師為您服務