黃苗 - 首席設計師
入行時間:2010 年 職稱:首席設計師
項目地址:融創融公館
項目面積:105㎡
項目風格:現代風
項目施工:山水人家裝飾
工程造價:13.5w
封面標題:105㎡程序員的家,高級黑白灰算是被他玩會了


程序員的工作大家都知道,不是在加班就是在加班的路上,連軸轉的日子也是時有發生。我們今天的主角就是這么一位努力上進的程序員小哥,他對于家的預期是:一家三口依偎在甜蜜的小家,緩解工作的壓力,重獲輕松愜意的心情,生活忙碌而充實……可是追妻之路長漫漫,望君多努力哈(? ̄ ?  ̄?) 。小哥對于裝修其實也不甚了解,但對黑白灰主義情有獨鐘,這種執念比之格子衫不遑多讓。于是乎全屋顏色主打黑白灰色調,加之一些撞色點綴,營造出簡約清爽的居室氛圍。全屋大開間的布局規劃,空間變得通透而明亮,質感也不斷升華……
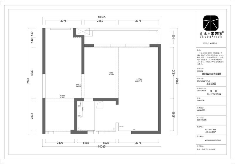
房屋信息:三室兩廳一廚一衛,毛坯新房交付。
業主需求:業主暫時是一個人住,等之后娶了媳婦生了小孩,父母也會搬過來一起住,形成一個完整的三代之家。未雨綢繆之際,對于臥室的需求就格外看重,同時還想要更多的收納空間。因為業主程序員的職業屬性,時常要加班,所以擁有一個辦公場所顯得尤為關鍵。

本案主要存在的設計難點在于:(1)廚房比較小,有一部分是承重墻,冰箱也沒有位置放:(2)臥室面積不大,柜子比較少;(3)針對三居室戶型,如果是三口之家,完全可以騰出一個書房空間。但因后期業主父母也會搬來住,房間只能改成臥室,這樣辦公書房就沒有了。

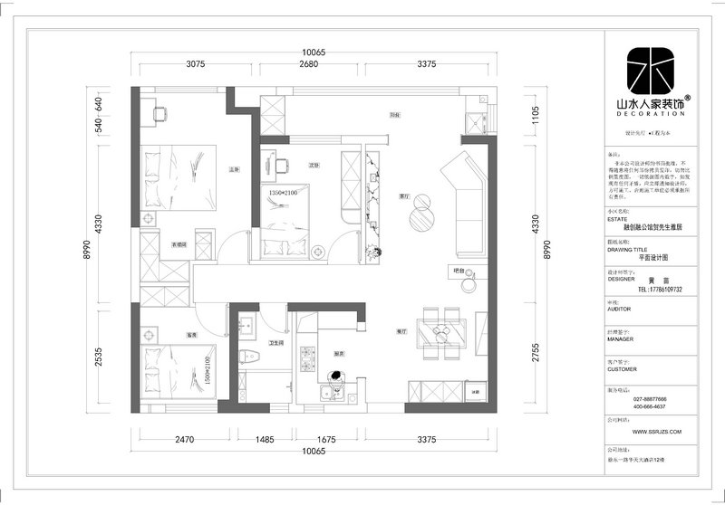
解決措施:(1)把冰箱從廚房里拿出,放在餐邊柜一側,相應緩解廚房的面積壓力:(2)走廊過道整體往前移,騰出一部分柜體空間。同時主臥改做一個小衣帽間,滿足一定的收納實需;(3)客餐廳中間過道區域設置了一個吧臺,充當隔斷的同時,承擔部分辦公的職能。

將長條陽臺納入客廳形成整體,進而加強客廳縱深感。應用玻璃窗,收獲極佳的采光與視野,窗戶的分格設計更是將室外景致引入室內。躺在舒服的橙色單椅上享受休閑時光,真的再愜意不過。

沙發背景墻是墻板+木格柵的配置。牛皮沙發的尊享體驗,盡顯悠閑生活的質感。在此基礎上,還想方設法地用橙色做了跳色,愈加豐富了客廳色彩畫面。

同理,電視背景墻做了類似設計與沙發背景相襯。最顯眼的莫過于大面積的魚肚白巖板,光透過溫和的木格柵材質,非常地有意境。旁側還打造了實木柜體,收納一些精美裝飾物以供展示。

客餐廳做的開間布局,空間通透而明亮。由于屋子里沒有明顯的辦公場所,就在中間過道區域設置了一個吧臺,充當隔斷的同時,功能性方面集休閑娛樂辦公餐飲于一體。吧臺內部還預留有插座,隨時提供電源方便充電。

餐廳區域靠近入戶門,于是在入戶的右手端設置了長條狀的鞋柜區域。中間部位留空處理,方便儲存一些隨身物件。因為程序員的屬性,難免會加班到深夜,這里就預設了感應燈帶,以保障業主夜晚歸家不至于摸黑走路,這些都屬于精妙的小設計。

而正面的柜體就是家里的餐邊柜了。白色柜體整潔而質樸,有助于打造一個充滿溫馨活力的餐廳。同時一側還預留了冰箱位置,一定程度上有效解放廚房空間。
薄薄的陳列柜,更多起到裝飾的作用。背景墻材質由巖板向墻板過渡,色彩也有所遞進。墻上還有兩頂黑金壁燈,營造暖光的氛圍。

餐桌是家人圍坐一堂分享美食的地方,魚肚白的臺面更顯整潔干凈?;疑|感的餐椅也為這個空間增色許多。到時候大家在這里聊天吃飯,分享屬于生活工作的酸甜苦辣。


廚房不大,且有一部分是承重墻體,操作性比較低。由此盡可能地做成U字型櫥柜布局,滿足相應的洗切炒功能。通過打造足夠多的柜體,分擔了不同電器及生活用品的儲存要務。魚肚白的瓷磚做底色,讓廚房擺脫了油膩膩的刻板印象,看起來干凈又高級。

偌長一條過道區域,非常完整地呈現出靜區的居室布局。主臥次臥布置有序,更方便業主家庭往來走動。吊頂燈具的設計也充滿格調,流動的線條更富美感。

主臥空間將原有的飄窗區域徹底打掉,進而增加了更多活動區域。由于沒有擺放床具,倒顯得整個主臥格外寬闊大氣。之所以這里沒有床,其實也有個小插曲:業主目前不是一個人住嘛,住哪個房間其實都無所謂,所以就把主臥給空了出來。他又怕自己選的床具未來媳婦不喜歡,索性就把選品這個事給擱置了,等以后再跟媳婦一同去選購。

主臥背景是莫蘭迪色的墻板,還用黑色勾勒了線條。另一邊則是魚肚白巖板,層次不斷遞進,色彩愈加豐富。再加上兩頂金色掛飾燈具,營造出旖旎的空間氛圍。
主臥還改做了一個小小衣帽間,以后這將會是女業主的獨立空間。三面柜體環繞,收納空間進一步擴大。白色柜體點綴豎條形黑色拉手,則進一步拉伸了層高,強化了整體通透感。

簡約的線條勾勒出溫柔的宜居感,客人瞧見后都說好??臻g內不同的色彩裝飾,則給本就潔亮的墻面帶來更多的新鮮感。業主對于生活的熱愛可見一斑。

通過將過道整體往前移,由此騰出主臥及客房部分的柜體空間。頂天立地的白色衣柜造型精簡,實用性強。這樣的設計也更好地迎合了空間簡約的基調。

走進一個明亮整潔的次臥空間,會讓人有松弛愉快的體驗。尤其是融入了豐富的色彩,調和次臥溫和的氣質。目前業主居住的就是這個房間,以后則會改成兒童房。床尾還準備了專門的電腦桌,玩游戲也要快快樂樂。

墻面一側打了到頂的柜墻,擁有豐沛的儲物空間。開放展示區域用了圓角處理,避免柜角凸出意外碰撞。上方還設置有風管機,以此替換了掛壁式空調,節省更多的空間。


衛生間三分離,是當前比較常用的設計手法。洗漱區域用到鏡柜+咖色浴室柜的配置,功能性得到大幅提升。魚肚白墻磚的鋪貼,讓空間更顯通透大氣。

浴室延續黑白灰的主調,將簡約大氣的風格貫徹到極致。地面設置了擋水條,防止水流漫出浴室。同時還做了壁龕的設計,方便收納一些洗浴用品。
復地東湖國際198平中式風格裝修效果圖
國創光谷上城106平簡歐風格裝修效果圖
千年美麗120平新中式風格裝修效果圖
置頂—— 知精準報價 避裝修深坑 ——
平均七年以上的設計經驗資深設計師為您服務