武漢
家裝服務熱線 400-666-4637
當前位置:首頁 >裝修案例 >案例詳情

中建鉑公館122平現代風格裝修效果圖

來源:山水人家裝飾 瀏覽人數:222次 更新時間:2024-10-31

作品信息

  1. 現代 案例風格
  2. 122平方米 房屋面積
  3. 14萬 參考造價

作品詳情

項目地址:中建鉑公館

項目面積:122㎡

項目風格:現代風

項目施工:山水人家裝飾

工程造價:14w


中建鉑公館122平現代風格裝修效果圖


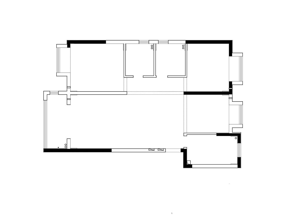
戶型解析


本案業主家庭和睦,對于裝修的要求,偏重于簡約高級,現代風格成了他們的第一選擇??臻g大面積用到黑白灰配色,彰顯出明亮清透的氣質。利落的線條,時尚的軟裝,細繪出業主的生活態度,勾勒出一個溫馨實用的三房空間。


中建鉑公館122平現代風格裝修效果圖


房屋信息:三室兩廳,新房裝修


中建鉑公館122平現代風格裝修效果圖


本案戶型方正,南北通透,是常規的三室格局,其中客餐廳完全開放,增加空間通透性,同時打通陽臺,進一步強化采光;公衛干區利用餐邊柜充當隔斷,相應保障隱私,有效實現了干濕分離。


客廳


中建鉑公館122平現代風格裝修效果圖


客廳整體整潔明亮,給人一種一塵不染的感覺。再加上陽臺連通,增加空間通透性。落地窗提供了充足的自然光照,視野愈加開闊。


中建鉑公館122平現代風格裝修效果圖


客廳簡單做了雙眼皮吊頂,拉伸層高,豐富空間層次感。地面通鋪亮面磚,不見任何灰塵細屑,足以見得業主是個勤勞愛衛生的主兒。


中建鉑公館122平現代風格裝修效果圖


墻面用乳膠漆大面積留白,搭配墻上掛畫,強化空間美感。四人座皮沙發坐感舒適,淺淺的灰色給人一種慵懶隨意的感覺。盎然的綠植適時穿插,則賦予生活更多輕靈之意。


中建鉑公館122平現代風格裝修效果圖


背景墻利用懸浮設計,電視內嵌,整體看上去更顯高級。結合側面弧形造型,絲滑過渡到陽臺區,空間更顯通透性。底部定制地臺收納柜,緩解儲物上的壓力。


中建鉑公館122平現代風格裝修效果圖


陽臺更多被規劃成家政服務區,靠里安裝了到頂的吊柜,下方則是洗手池+洗衣機,保留十足功能性。整體配色以灰色系為主,顯得干凈耐臟。


餐廳


中建鉑公館122平現代風格裝修效果圖


客餐廳同屬一個空間,最大化保障了整體完整性。沒有過多的復雜裝飾,呈現和諧統一的格局,餐廳看起來更簡潔清爽。


中建鉑公館122平現代風格裝修效果圖


玄關柜和餐邊柜做了一體設計,保留了充足的儲物空間?;疑耖T配白色,給人的感覺非常干凈利落。旁邊還有黑玻展示柜,擺滿了各類物品,怪琳瑯滿目的。


中建鉑公館122平現代風格裝修效果圖


餐廳選用巖板餐桌,厚度比較薄,呈現出的效果相對精致。搭配細長桌腿,凸顯優雅的氣質,同時讓使用者擁有舒適的坐姿,吃飯更有味道。


廚房


廚房空間相對緊湊,通過做成U型的布局,最大化利用邊角空間。電器放在容易拿到的地方,形成合理的使用動線。提前預留冰箱位置,內嵌其中,不多占空間。


中建鉑公館122平現代風格裝修效果圖


廚房櫥柜采用上白下灰的配色處理,這樣可以彌補空間的壓抑感,讓廚房看起來很敞亮。在保障基礎收納功能的前提下,還擺放了置物架,更好歸置生活物品。


主臥


中建鉑公館122平現代風格裝修效果圖


主臥較大,將空間稍加改造,把窗臺位置整個變成書桌區。臥室和書房的功能疊加融合,更好滿足業主的使用需要。定制書桌高度適中,不會帶來太大的負擔。側面設置開放柜和黑玻柜,起到裝飾收納的作用。


中建鉑公館122平現代風格裝修效果圖


主臥大面積用到白色乳膠漆,讓原本寬闊的空間更顯大了。同時也是最佳的背景板,搭配干凈休閑的床具,襯出舒適安逸的睡眠環境。


中建鉑公館122平現代風格裝修效果圖


靠墻一側安裝了到頂的大衣柜,盡可能多地滿足業主的儲衣需求。臺面部分延伸,被當做床頭柜在使用。平常手機充電可以放在這邊,減少輻射影響。


次臥


中建鉑公館122平現代風格裝修效果圖


次臥同樣大面積留白,但最大的不同在于搭配色以淺咖為主,彰顯溫馨舒適的氣質。結合緊鄰的大窗臺,保留開闊的空間視野,采光也足夠充分。


中建鉑公館122平現代風格裝修效果圖


房間本身有著自然簡樸的特點,而軟裝方面選擇了輕柔色調,更顯順眼美觀,整個空間充滿著溫馨氣息,感觀上非常享受。




TAG標簽: 中建鉑公館 現代風格 劉浩

劉浩 - 高級主任設計師

入行時間:2012 年 職稱:高級主任設計師

算一算

我家裝修需要多少錢?

173739
m2

猜你喜歡

查看更多 >>
置頂

免費報價量房

×

算一算,你家裝修要花多少錢?

—— 知精準報價 避裝修深坑 ——

您的報價已生成完畢

  • 材料費用:21000
  • 人工費用:39000
  • 設計費用:0
  • 管理費用:0
×

預約您的設計師

平均七年以上的設計經驗資深設計師為您服務

您的稱呼:
手機號碼:
裝修小區:
房屋面積:
* 為了您的權益,您的一切信息將被嚴格保密
×

預約線下參觀

您的稱呼:
手機號碼:
* 為了您的權益,您的一切信息將被嚴格保密