武漢
家裝服務熱線 400-666-4637
當前位置:首頁 >裝修案例 >案例詳情

地鐵時代常青城107平現代簡約風格裝修效果圖

來源:山水人家裝飾 瀏覽人數:874次 更新時間:2022-01-16

作品信息

  1. 現代 案例風格
  2. 107平方米 房屋面積
  3. 13.6萬 參考造價

作品詳情



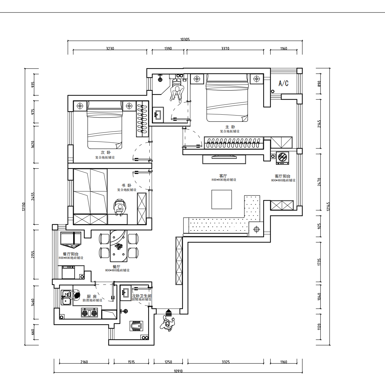
方案布局

地鐵時代常青城107平現代簡約風格裝修效果圖



客廳1

地鐵時代常青城107平現代簡約風格裝修效果圖



客廳2

地鐵時代常青城107平現代簡約風格裝修效果圖



臥室

地鐵時代常青城107平現代簡約風格裝修效果圖



廚房

地鐵時代常青城107平現代簡約風格裝修效果圖



衛生間

地鐵時代常青城107平現代簡約風格裝修效果圖

TAG標簽: 地鐵時代常青城裝修 107平現代簡約風格裝修效果圖

算一算

我家裝修需要多少錢?

173739
m2

猜你喜歡

查看更多 >>
置頂

免費報價量房

×

算一算,你家裝修要花多少錢?

—— 知精準報價 避裝修深坑 ——

您的報價已生成完畢

  • 材料費用:21000
  • 人工費用:39000
  • 設計費用:0
  • 管理費用:0
×

預約您的設計師

平均七年以上的設計經驗資深設計師為您服務

您的稱呼:
手機號碼:
裝修小區:
房屋面積:
* 為了您的權益,您的一切信息將被嚴格保密
×

預約線下參觀

您的稱呼:
手機號碼:
* 為了您的權益,您的一切信息將被嚴格保密