樊聰 - 首席設計師
入行時間:2012 年 職稱:首席設計師
項目地址:政和花園
項目面積:100㎡
項目風格:現代風
項目施工:山水人家裝飾
工程造價:16.5w
封面標題:100㎡三房改一房,極品一居室簡直就是我的“夢中情家”


一個人住100平的房子是種什么體驗?也還行,大家都這樣?!那一個人住100平一居室的房子呢?(震驚臉)今天就給大家帶來這么一個案例。業主是一位獨居的年輕男性,上完班回到家便有著充足的休閑時光。三居戶型略顯雞肋,一居生活更是他的心之所往。為此設計師破格將三房改成一房,打破空間上的限定性。全屋做開放式布局,讓居室內各空間相互獨立、關聯,通透感強。除此之外,全房都是1.2mX600的仿古磚鋪貼,并做了大面積乳膠漆留白處理,以此獲得清爽潔亮的觀感體驗……這才是更高規格的享受生活,品質感恣意游走,整體實用而充滿趣味。
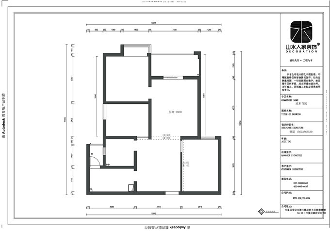
房屋信息:三室兩廳一廚一衛,毛坯新房交付。

業主需求:20w左右的預算,因為業主是一個人住,所以一居室即可,其他空間可以改成衣帽間、電腦房,以此滿足更多休閑玩樂、收納辦公的需要。

本案原為三居室戶型,但業主只想要一房的效果,所以對整體戶型進行了翻天覆地的改造,主要調整如下:
(1)最為明顯也最為突出的是,將原先的客廳區域完完全全改成電腦房,而將次臥空間改成了客廳,并與餐廳產生聯動;
(2)衛生間重新調整了開門,即將顯眼的門戶位置改到廚房最里側,相應保障了隱秘性;
(3)全房做開放式布局,各個區域互相連通,整體動線相當優越;
(4)將一個次臥面積納入到主臥,并改成衣帽間及休息區域,以此滿足業主更多的休閑生活需要。由此一來,三室改一室的目的達成,業主的美妙生活即將開啟。

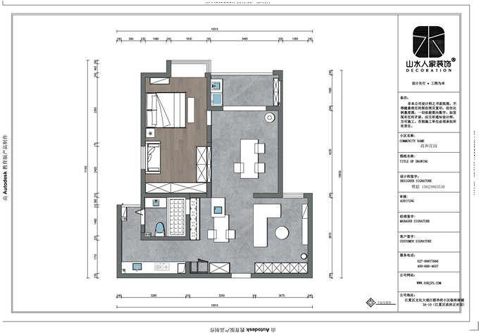
客餐空間做的是開放式布局,極致利用到室內面積。值得注意的是,客廳區域實際上由一個次臥空間改成。通過打掉周圍的墻體,整體的通透感和品質感油然而生。
客廳內,最為吸睛的就是面前的這款沙發了。為避免沾灰染塵,特意用酒紅色墊布遮蓋。給人的感覺,恰如好看的仙女含笑佇立。

即便周圍是白墻,在斑駁的光影下,也能體會到無與倫比的格調。背景墻旁邊還有一個3d壁爐的設計,足以彰顯業主的生活品味。地臺也是仿古磚的鋪貼,與地面完美融合。一側墻面還有到頂的木飾面柜,擁有充足的儲物面積,部分還是鞋柜的容量。

作為開放式的客餐空間,即便面積相對緊湊,但整體視野和氛圍感還是相當不錯的。依舊是無主燈的設計,頭頂的照明燈光照充足。墻面還做了留白的處理,帶給褐木色更多的鮮亮。

餐邊柜的布置也韻味十足,褐木+金邊的組合,略顯一份優雅與貴氣。里面暗藏感應燈帶,有一種吧臺酒柜的既視感。對側墻面還見縫插針地擺放了冰箱,顯著提升空間的利用率。
實木餐桌+島臺的布置,呈現愈加精簡的客廳樣貌。餐桌與島臺之間做了一個高低差,整體質感咻地一下就上來了。餐桌同樣也是喝茶的場所,沒事的時候也足夠地消遣。

島臺一定程度上也是吧臺。身側是一面書柜墻,把吧臺座椅一擺,這里就變成了書吧。倚靠著臺面,能夠充分感受到歲月靜好,恬淡舒適。

廚房位于一條長長的過道上,最深處就是家里的衛生間區域了。針對此處的改造在于重新調整了開門,一開始面朝餐邊柜的門戶被改到了最里面,行走動線更加合理,進一步保障了衛生間的私密性及美觀度。

簡約的I型櫥柜布局,但處處透露出不簡單。工作臺面上所有設備工具都陳列有序,使用起來非常方便。墻磚和地磚同樣用到仿古磚,整個空間渾然一體。
黑色巖板臺面觸感光滑,圖案也相對美型。搭配著白色木飾面的吊柜+底柜,顯得簡約又自然。這里還用到了木色三層小推車,方便存放一些生活用品。

電腦房完全獨占了客廳的面積,整體顯得非常空曠開闊,可以說是獨居者的“夢中情家”了。無主燈的設計,射燈+軌道燈的配置,燈光柔和地透射下來。吊頂也做了一定的設計,剛好把風管機囊括進去。
通過將陽臺并入客廳,保證空間通透感的同時,相應改善了采光和通風。電腦房的家具陳設也實屬高級,灰色巖板電腦桌搭配著超高配置的臺式電腦,工字款黃色單人椅+黑色鐵藝椅的組合,都給慵懶閑適的游戲生活增添更多的精彩,真想替代業主化身精致的游戲男孩啊~~

陽臺部分照例在兩面墻體打造了到頂柜體。一邊是洗烘套裝+洗手臺,一邊是家政柜,相應功能齊備。柜體表面同樣用到褐木色,豐厚的質感一覽無余。
電腦房的背面則是一整面的到頂實木書柜墻,擁有極強的儲物收納實力。里面擺滿了各種業主精心收藏的書籍及藝術品,每個窗口都布置有燈帶,氛圍感極強。旁側還有一個白色升降吧臺椅,這里恍惚間又變成一個書吧,書聲瑯瑯,心曠神怡。同時一側還做了無框隱藏門的設計,不仔細看還以為是正常的書柜墻面,里面則是業主的臥室。

作為非常規的一室格局,要得到業主的認可,必須得設計地格外出挑才好。主臥整體色調還是以白色為主,充分彰顯極簡的風范。通過保留原有飄窗,將其布置成一個純粹的休閑娛樂區域,更方便臥躺,眺望外屋的高樓幢幢。

通過將次臥空間納入到主臥,進一步增加臥室的使用面積。臥室同樣是無主燈的設計布局,筒燈+射燈+圓筒吊燈的配置,光感極強。礙于部分管道的影響,吊頂處做了精細的設計,將管道很好地隱藏起來。同時還在里側安裝了燈帶,搭配相應的平面造型,影影綽綽中,盡顯光與影的唯美。

除去對于臥室的潔白觀感外,空間里還巧妙融入了另一種色彩——珊瑚紅。這樣的跳色應用,呈現冷暖交融的視覺效果,無形之間很令人悸動。中間則用虎皮軟榻和地毯作為分界,留作休息之用。

里側是開放式的衣帽間。墻面是橙色的墻板,這里用到的都是鋼板壁掛柜,收納衣物都很便捷,揚手便可以拿??繅σ粋戎钡脚P室門口,都打造了實木衣柜的造型,柜體均用了金屬護手和金屬線條,品質感極強。


衛生間相應實現兩分離,并用玻璃門隔開洗浴區。地面墻面均鋪貼仿古磚,質感非常不錯。洗漱區域用到智能鏡,臺上盆的設計外加黑色巖板,干凈整潔之余,不愧為優雅生活的典范。馬桶區上端還做了內嵌柜體的設計,儲物收納一應俱全。
融科天域120平現代風格裝修效果圖
融僑濱江城天域181平現代風格裝修效果圖
花樣年花樣城84平中式風格裝修效果圖
置頂—— 知精準報價 避裝修深坑 ——
平均七年以上的設計經驗資深設計師為您服務