石剛 - 首席設計師
入行時間:2014 年 職稱:首席設計師
項目地址:城投聯投江南岸
項目面積:140㎡
項目風格:意式極簡風
項目施工:山水人家裝飾
工程造價:25w

業主是90后,寶寶剛滿1歲,新家是祖孫三代人的居所,故而對生活品質有一定要求。業主想要低調且耐看的居住空間,全屋定調意式極簡風,用簡潔色調進行搭配對比,融合墻板、木紋等材質肌理,碰撞出更多高級美感。
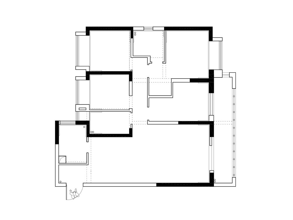
房屋信息:四室兩廳,新房裝修。

本案原始戶型入戶光線不充足,鞋柜區域小;廚房空間臺面少;小房間面積過于小,走道狹長過于壓抑。

針對如上問題,對房型做出針對化調整:(1)拆掉入戶對門墻體,使用背對背柜子設計手法,節約空間,增加入戶光線;(2)廚房區域采用開放式設計,空間出入更方便;(3)拆除小房間墻體,打造開放式書房,借以弱化過道狹長問題,增加過道光線;(4)客衛三分離設計,能容納更多人使用。
在空間上,拆掉入戶對門墻體,空間更開闊。使用背對背柜子的設計手法,更多節約空間。由此定制出到頂鞋柜,保留充足儲物面積,使入戶變得輕松日常。

采用穿插透鏡的創意設計,將東邊廚房的光線引進來,增加入戶光線和采光視野。同時定制了端景造型,搭配暴力熊娃娃,平添極簡時尚的氣質。

陽臺完全納入客廳,增加實際采光及生活面積。搭配超大玻璃落地窗,使得室內光線充足,視野開闊。半透明的白色窗簾既能遮擋陽光,又能保持室內的通透性,為家庭成員提供了一個舒適私密的空間。

客廳采用懸浮吊頂+無主燈設計,營造出柔和、均勻的照明效果。地面通鋪大塊柔光磚,質感細膩,不失和諧。地面還鋪了同色系的地毯,和整個客廳的現代感相得益彰,使得空間更加生動有趣。

客廳墻面采用護墻板材質,顯得美觀簡潔。用巖板跟實木格柵加以點綴,讓材質更豐富,質感更凸顯。中心位是黑色模塊沙發,線條柔和,坐感舒適,搭配綠色單人椅,空間里散發著簡約不失高雅的氣息。

電視背景和沙發墻如同鏡面復制,保持了一貫以來的優雅大方。采用懸浮電視墻的設計,搭配燈帶裝飾,豐富空間層次。電視旁邊的裝飾品巧妙填補了空間,極具觀賞性。而黑色地臺和電視形成了良好的視覺搭配,氣質滿分。

客餐廳共用同一片吊頂,彰顯寬敞大氣的空間格局。整體色調以白色和米色為主,營造出一種清新、明亮的氛圍。護墻板裝飾簡潔而不失格調,搭配氛圍燈帶,呈現出一個充滿簡約美感與實用功能的用餐空間。

餐廳選用餐島一體的設計,精簡整個操作臺面。黑色餐桌和巖板島臺互為對比色,使得整個用餐區域更加突出。尤其是橙色+白色餐椅的融入,為空間增添了一抹活力與趣味。

餐桌的長度和高度都恰到好處,能夠容納多人用餐。即便人數再多,也可利用伸縮島臺進行延展調整,實現更多空間可能性,讓餐廳充滿歡聲笑語。
廚房采用開放式設計,空間出入更方便,和餐廳的互動性也很高。整體U型的櫥柜布局,冰箱全內嵌,有效提升廚房的利用率。

一個帶有水槽的柜臺干凈整潔,方便用餐前后的清潔工作。櫥柜則采用了溫柔的米色調,顯得美觀實用。櫥柜的儲物空間充足,可以放置各種餐具和廚房用品,使廚房區域更加整潔有序。

主臥給人一種干凈寬敞的感覺,沒有過多的裝飾或雜物,讓人感到難得的寧靜與安心。光線透過窗戶灑進臥室,為主臥增添幾分明亮感。

主臥墻面采用咖色護墻板,搭配黑色床板,讓臥室的層次感更分明。再結合燈帶照明,營造出一種清新典雅的氛圍。床墊看起來非常柔軟,大家可以得到充分的休息和放松。

床尾位置打造了一整面的衣柜墻,咖色柜門搭配黑色拉手,顯得簡潔大方。整體擁有超大的儲物量,可以把業主的衣服都裝進去。旁邊還定制了一體式的梳妝臺,以滿足業主更多的生活需求。

次臥空間以白色為主色調,營造出一種清新整潔的感覺??看暗牡胤蕉ㄖ屏艘唤M開放展示柜,再結合床側的到頂衣柜,由此顯著提升了房間的收納能力。

另一間次臥和陽臺連通,采光更好,動線更流暢。臥室布局合理,既滿足了居住者的日常需求,又保持了空間的整潔美觀。尤其是外面的陽臺可作為休閑場所使用,讓生活充滿煙火氣。
拆除原本小房間墻體,做成開放式書房的格局。這樣一來不僅增大了客餐廳空間,還弱化了過道狹長問題,使得過道光線愈多。兩邊各自定制了到頂收納柜,盡顯典雅大氣。

房間定制L型的轉角書桌,為日常學習工作提供了充足的空間。墻面定制書柜,并做了實木格柵的裝飾,透露著簡潔、實用的氣息。窗戶是一個帶百葉簾的設計,可以根據需要自然調節光線,為書房提供一個舒適的使用環境。
主衛空間相對緊湊,但很好地劃分了各功能區。浴室柜+鏡柜的組合,極大程度填補了收納上的不足,實際使用起來也較為方便。

鉆石型淋浴房位于墻角處設計,十分契合衛生間的空間結構。黑色線條簡約直接,看起來非常干凈時尚。整個用玻璃門隔住,保證其內部空間的寬敞獨立。
順馳泊林現代簡約風格裝修效果圖
長江紫都93平現代風格裝修效果圖
融創城118平現代風格裝修效果圖
置頂—— 知精準報價 避裝修深坑 ——
平均七年以上的設計經驗資深設計師為您服務