武漢
家裝服務熱線 400-666-4637
當前位置:首頁 >裝修案例 >案例詳情

太子水榭155平極簡風格裝修效果圖

來源:山水人家裝飾 瀏覽人數:221次 更新時間:2024-08-13

作品信息

  1. 現代 案例風格
  2. 155平方米 房屋面積
  3. 20萬 參考造價

作品詳情

項目地址:太子水榭

項目面積:155㎡

項目風格:極簡

項目施工:山水人家裝飾

工程造價:20w


太子水榭155平極簡風格裝修效果圖


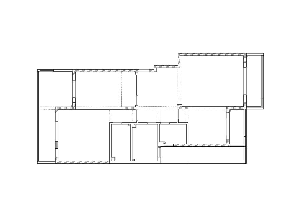
戶型解析


本案業主是一家四口,三代人組成,屬于是幸福美好的大家庭??呻S著孩子的慢慢長大,全家對于家居的需求不斷提升,重新購置了一套學區房,希望用極簡風格為全家人打造一個全新、舒適又充滿愛的居住家園。而設計師本人,正是家中的一員,他深諳家人的生活習慣與情感需求,于是將這份深情融入到了每一處設計中……


太子水榭155平極簡風格裝修效果圖


房屋信息:三室兩廳,舊房改造。


太子水榭155平極簡風格裝修效果圖


本案戶型方正,南北通透,為了滿足更多的生活需求,對房型做出如下調整:

(1)打通客餐廳,整體做圍合式布局,實現動靜分離,動區設置在中心位置,靜區分布在兩側,不影響休息睡眠;

(2)入戶打造柜體,規避廚房、衛生間房間門都正對餐廳的尷尬;

(3)廚房和主衛的設計比較大膽,把窗戶留給衛生間,廚房布局更為深入,動線設計更方便;

(4)總共155㎡的面積,打了70㎡的柜子,兩個成人房間都設置了衣帽間,收納力超強。


玄關


入戶定制轉角玄關柜,充足空間用來收納。設計上更是從進門開始,規避了廚房、衛生間、房間門都正對餐廳的尷尬。白色柜面干凈清爽,搭配黑色裝飾線條,強化層次感。


太子水榭155平極簡風格裝修效果圖


同時利用剪力墻和門之間的凹陷部位,做了一面手辦墻。采用亞克力導光板材質,后期可以擺放小朋友喜歡的樂高和娃娃,營造氛圍感。


客廳


太子水榭155平極簡風格裝修效果圖


打通客廳陽臺,在視覺上擴容,空間看起來更通透明亮。設置大落地窗,身后是一片郁郁蔥蔥的景象,充滿生活氣息。


太子水榭155平極簡風格裝修效果圖


全房采用一體式吊頂,整房高度統一。無主燈的設計,無死角照明,實用又高級。因為家里有養寵物,地面通鋪的是750*1500的柔光磚。


太子水榭155平極簡風格裝修效果圖


客廳滿刷汝窯色調的乳膠漆,溫柔淡雅,很有質感。擺放灰色絨布沙發,美觀舒適度兼具。沒有安排茶幾,精簡布局,讓小孩擁有更多自由活動的空間。


太子水榭155平極簡風格裝修效果圖


乳膠漆電視墻清爽干凈,部分做了弧形造型,洗墻效果顯著。電視內嵌,節省空間。側面設置擱板架,打造頗具趣味性的手辦收納墻,吸引更多注意力。


太子水榭155平極簡風格裝修效果圖


為合理利用空間,將冰箱放在里側靠近沙發的位置,節省廚房面積。同時客廳區域還擺放了一個舒適躺椅,充當撞色,可以左右旋轉,臥感舒適。


餐廳


太子水榭155平極簡風格裝修效果圖


餐廳空間盡可能放大,采光與通風得到相應改善,整體規劃和諧統一。餐廳設置了島臺+餐桌,滿意一家四口的用餐需要,便利性提升不少。


太子水榭155平極簡風格裝修效果圖


靠墻定制到頂餐邊柜,滿足更多的收納需求。白色柜面搭配黑色開放格,豐富視覺感。里面擺滿了一些餐具用具,尤其是直飲水機和移動插排的融入,帶給生活更多可能性。


太子水榭155平極簡風格裝修效果圖


餐廳做一個中島臺,彌補收納上的不足。黑色餐桌復古大氣,搭配黑白雙色的潘東椅,輕松保持優雅姿態,讓餐廚時光產生更有情調的感覺。


廚房


由于家里情況比較特殊,開火比較少,所以廚房和主衛的設計比較大膽,把窗戶留給了衛生間,而廚房布局更為深入,動線設計更方便。


太子水榭155平極簡風格裝修效果圖


廚房整體設計成L型,最大化利用空間,并保留了完善的洗切炒功能,其中灰色地柜+白色吊柜層次分明,儲物量同樣驚人,很適合一家人烹飪美食、互動交流。


主臥


主臥空間特別大,通過合理規劃功能,極大滿足了業主生活睡眠的需求。將原有飄窗拆除,直接做成落地窗,采光卓越。光線強烈時也可用窗簾進行遮掩,打造令人羨慕的生活休閑區。


太子水榭155平極簡風格裝修效果圖


房間背景墻被涂成了巖灰色,這種中性色調顯得穩重不失溫馨。米色床頭的應用既增加了舒適度,還起到裝飾作用。黑白格被褥疊放整齊,展現出業主的生活品味和對細節的關注,凸出溫潤內斂的愜意感。


太子水榭155平極簡風格裝修效果圖


側面定制了一組衣柜,一體式設計亮點多多。其中L型臺面充當了梳妝臺。鏡面等飾物的裝點,使得空間有了更豐富的視覺效果,同時強化了業主的使用體驗。


太子水榭155平極簡風格裝修效果圖


除此之外,房間里還配置了半獨立辦公區。床尾位置定制書桌+吊柜,相應滿足業主實際辦公的需求。書桌部分延伸,呈現簡約實用的特點,增加空間趣味性。


太子水榭155平極簡風格裝修效果圖


家里衣服比較多,所以結合臥室面積,設置了一個大的衣帽間。白色衣柜給人的感覺格外清透,其中做成柜臺的樣子,方便置物。整體抽屜用到比較多,收納有藏有露,不顯雜亂。


次臥


次臥是家里老人住的房間,整體設計比較簡約干凈。乳膠漆用到汝窯色調,顯得很清淡。房間沒有什么復雜布置,一切以老人行動方便為基準,凸顯更多實用價值。


太子水榭155平極簡風格裝修效果圖


房間做了弧形吊頂的設計,美化了頂面空間,散發出隨性的生活氣息。房間里同樣配備了衣帽間,掛上簾子,增加私密性。


兒童房


兒童房設計頗具生活童趣,墻面大面積用薔薇色裝飾,給人活潑開朗的感覺??臻g盡可能放大,結合陽臺區,打造出通透自然的娛樂天地??ㄍ▓D案的床和兒童書桌的完美結合,頗得孩子的喜歡!


太子水榭155平極簡風格裝修效果圖


因為孩子處于上學的階段,需要收納的東西較多,所以在床尾位置定制了內嵌衣柜。柜門做了不同的造型設計,富有趣味性。


衛生間


太子水榭155平極簡風格裝修效果圖


主臥衣帽間旁邊還有一個衛生間,用磨砂門隔開外部環境。而衛生間內部別有設計,整體用到淺色調,打造明亮清爽的衛浴環境。空間實現三分離的布局,動線流暢,使用起來更方便。


TAG標簽: 太子水榭 極簡風格 羅周寶

算一算

我家裝修需要多少錢?

173739
m2

猜你喜歡

查看更多 >>
置頂

免費報價量房

×

算一算,你家裝修要花多少錢?

—— 知精準報價 避裝修深坑 ——

您的報價已生成完畢

  • 材料費用:21000
  • 人工費用:39000
  • 設計費用:0
  • 管理費用:0
×

預約您的設計師

平均七年以上的設計經驗資深設計師為您服務

您的稱呼:
手機號碼:
裝修小區:
房屋面積:
* 為了您的權益,您的一切信息將被嚴格保密
×

預約線下參觀

您的稱呼:
手機號碼:
* 為了您的權益,您的一切信息將被嚴格保密