武漢
家裝服務熱線 400-666-4637
當前位置:首頁 >裝修案例 >案例詳情

大洲星城130平現代風格裝修效果圖

來源:山水人家裝飾 瀏覽人數:278次 更新時間:2024-06-04

作品信息

  1. 現代 案例風格
  2. 130平方米 房屋面積
  3. 18萬 參考造價

作品詳情

項目地址:大洲星城

項目面積:130㎡

項目風格:現代風

項目施工:山水人家裝飾

工程造價:18w


大洲星城130平現代風格裝修效果圖


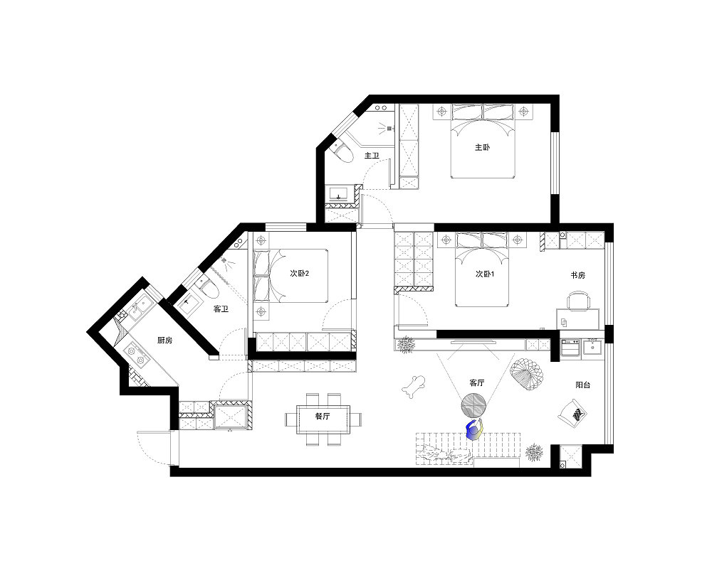
戶型解析


本案是大洲星城一套130平的三室戶型,業主是一家三口居住,他們喜歡簡單自然、溫馨舒適的感覺,期待有充足的采光空間。整體設計成實用的簡約風格,大面積用到淺色調+原木色,顯得居室溫柔通透。尤其是搭配竹炭纖維木飾面板,提升空間質感。各處還做了精妙的小設計,效果呈現簡單溫馨,小細節很加分!


大洲星城130平現代風格裝修效果圖


房屋信息:三室兩廳,新房裝修。


大洲星城130平現代風格裝修效果圖


本案擁有較多的異型空間,所以設計起來頗花了些心思,主要包括:(1)客餐廳一字排開,增加采光和使用面積;(2)廚房異型,做出合理設計,規劃了柜體;(3)兒童房自帶小陽臺,將其做成學習區;(4)主臥自帶衛浴間,實現干濕分離,且滿足較多的生活功能。


客廳


大洲星城130平現代風格裝修效果圖


打開空間,讓陽臺緊密連接客廳,增加更多生活面積。落地窗相應擴大視野,大面積的玻璃將室內外巧妙結合,打造出通透明亮的空間。


大洲星城130平現代風格裝修效果圖


客廳采用方形吊頂設計,充分彰顯層高。搭配漂亮吊燈,起到很好的裝飾效果,使其成為一道美麗的風景線。吊頂搭配射燈,打造奇妙的墻面光影層次。


大洲星城130平現代風格裝修效果圖


客廳墻面使用竹炭纖維木飾面板,顯得美觀立體感強。地面選擇淺色地磚,搭上灰色皮沙發,彰顯了簡潔大氣的風格。魚肚白的茶幾紋路延展,和綠植的鮮嫩相互映襯,更好渲染了悠閑的客廳畫面。


大洲星城130平現代風格裝修效果圖


正面打造了超過4m的電視背景墻,材質同樣選擇的木飾面板+格柵木,有效提升空間質感。通過融入電視收納柜和邊柜,保障基礎儲物,顏值也很不賴!


大洲星城130平現代風格裝修效果圖


側面陽臺則改造成主要的晾曬區域,相應定制了洗手池和吊柜,滿足更多生活功能。同時將洗衣機烘干機擺在此處,做上下水比較方便。


餐廳


大洲星城130平現代風格裝修效果圖


空間采用開放布局,開場就是家里的餐廳。整體布置溫馨自然,各處設計可圈可點。墻面做了留白處理,加上掛畫的裝飾點綴,賦予空間更多靈動美感。


大洲星城130平現代風格裝修效果圖


餐邊柜功能齊全,開放區用于置物,預留插座后期使用。灰白色柜體搭配免拉手設計,干凈又清爽。抽屜可存放小物件,玻璃展示柜和燈帶更是提升了顏值。


大洲星城130平現代風格裝修效果圖


餐廳沒有跟風做島臺,而是用到巖板餐桌。搭配同色系餐椅,可靈活擺放,整體顯得時尚大氣。一家人和諧地坐在一起品嘗美食,快活又自在。


廚房


廚房屬于異型空間,進門口相對曲折。因而設置成過道柜,上柜門到頂,真的就像是一面墻!整體儲物量在線,相應緩解了廚房收納上的不足。


大洲星城130平現代風格裝修效果圖


廚房布置成L型,將洗菜和烹飪分開,真正做到了洗菜做飯兩不誤。櫥柜選用淺色調,于視覺層面提亮空間,配上同色系地磚,增加溫馨感。


主臥


大洲星城130平現代風格裝修效果圖


主臥空間寬敞大氣,合理利用到房間窗戶,呈現開闊視野,充足的光線使得主臥更明亮。再加上通鋪的實木地板,顯得安靜實在。


大洲星城130平現代風格裝修效果圖


墻面應用奶油色乳膠漆,投射出不少溫馨氛圍。舒適的靠背床搭配床頭柜及梳妝臺,相應滿足業主的生活需求,利于尋找家的歸屬感。


大洲星城130平現代風格裝修效果圖


主臥格局充分按照業主的要求來設計,沒有過渡裝修和創新,呈現效果簡單又溫馨。尤其是主臥自帶衛浴間,很好利用到拐角空間,以此實現業主的使用需要。


次臥


大洲星城130平現代風格裝修效果圖


次臥采用雙眼皮邊吊,凸出層次感,整體更顯簡潔大氣。窗簾顏色和墻面色彩相呼應,完美適配房間風格,讓整體家居環境更加舒適。



大洲星城130平現代風格裝修效果圖


房間定制床頭柜與衣柜相連,懸空設計可當做書桌,真是好看又好用。側面定制了一整面的白色衣柜,儲物性能拉滿。結合木色開放格,彰顯一定的美觀度。


兒童房



兒童房自帶一個小陽臺,具備優良的采光通風條件,室內視野開闊不少。陽臺功能區整體做了地面抬升,無形之中劃分了區域,且呈現了精致的外部景象。


大洲星城130平現代風格裝修效果圖


兒童房整體色調相對清雅,利于營造舒心的睡眠學習環境。靠墻一側定制了到頂衣柜,更好承擔收納衣物的功能。白色柜門搭配黑色拉手,凸出更多層次感。


大洲星城130平現代風格裝修效果圖


陽臺區域徹徹底底被改造成學習區,顏值功能滿分。一側是一整面的柜體,方便置入各類書籍,小細節上大分!另一邊則合理擺放了書桌椅,以此滿足小孩日常的學習需求。


衛生間


衛生間通鋪墻地一體磚,整體更顯干凈整潔。干濕區域分布有致,充分利用空間。懸空浴室柜+鏡柜,相應滿足收納需求。


大洲星城130平現代風格裝修效果圖


濕區打造成鉆石型淋浴間,用上通透的玻璃門,很好地阻隔同外界的影響,避免更多的水汽滋生,由此打造出杰出的衛浴環境。



TAG標簽: 大洲星城 現代風格 甘露

甘露 - 首席設計師

入行時間:2010 年 職稱:首席設計師

算一算

我家裝修需要多少錢?

173739
m2

猜你喜歡

查看更多 >>
置頂

免費報價量房

×

算一算,你家裝修要花多少錢?

—— 知精準報價 避裝修深坑 ——

您的報價已生成完畢

  • 材料費用:21000
  • 人工費用:39000
  • 設計費用:0
  • 管理費用:0
×

預約您的設計師

平均七年以上的設計經驗資深設計師為您服務

您的稱呼:
手機號碼:
裝修小區:
房屋面積:
* 為了您的權益,您的一切信息將被嚴格保密
×

預約線下參觀

您的稱呼:
手機號碼:
* 為了您的權益,您的一切信息將被嚴格保密