胡勁華 - 首席設計師
入行時間:2011 年 職稱:首席設計師
項目地址:大華錦繡時代
項目面積:125㎡
項目風格:現代風
項目施工:山水人家裝飾
工程造價:19w

本案業主是一位很懂得生活、享受生活、緊追潮流的阿姨。目前房子是徐阿姨一個人居住,節假日的時候她的家人才會回來短住,因而整個房子設計的中心圍繞徐阿姨展開。考慮到她的生活習慣,在保障家居美觀性的基礎上,要賦予空間更多可能性,尤其是她需要一個開放式的空間,和她的好姐妹們小聚家中,品茶鑒花。

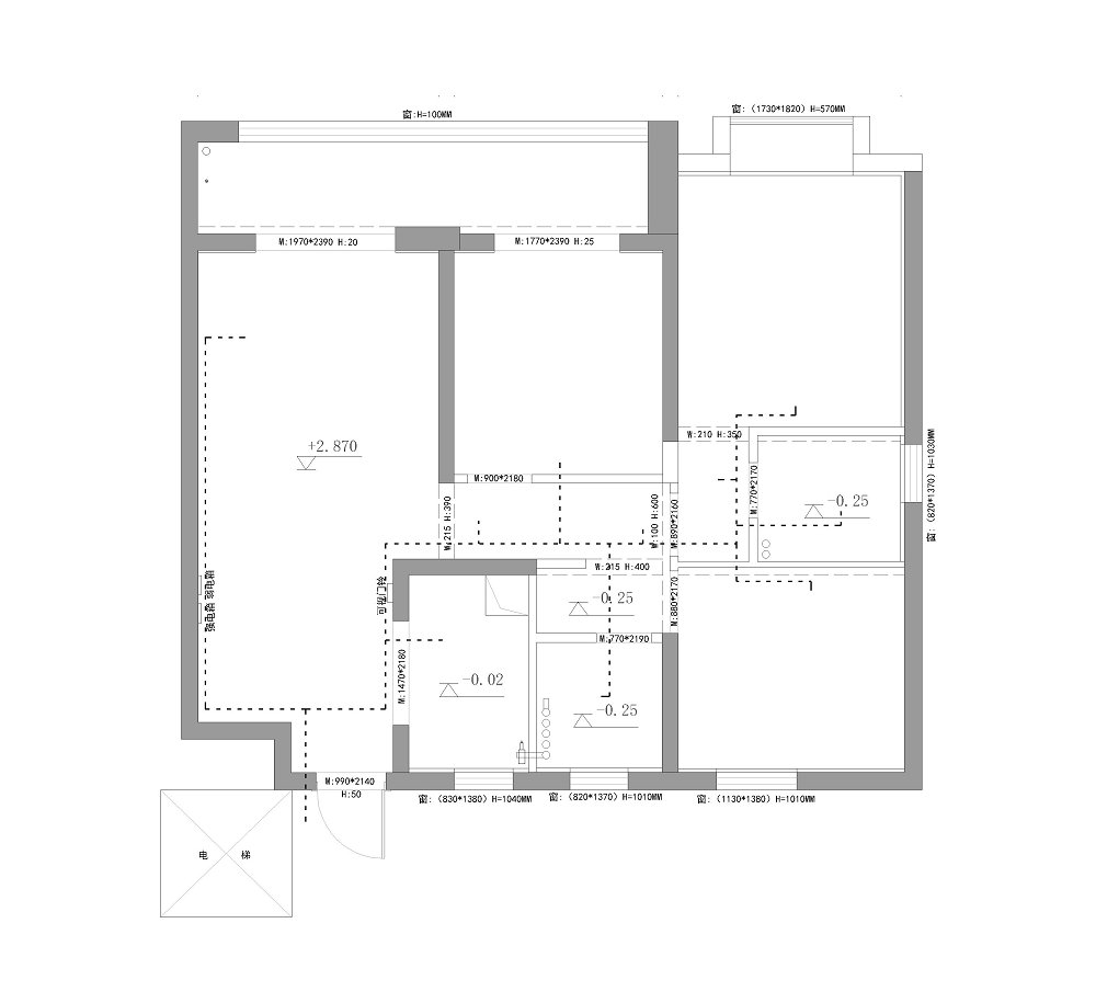
房屋信息:三室兩廳,新房裝修。

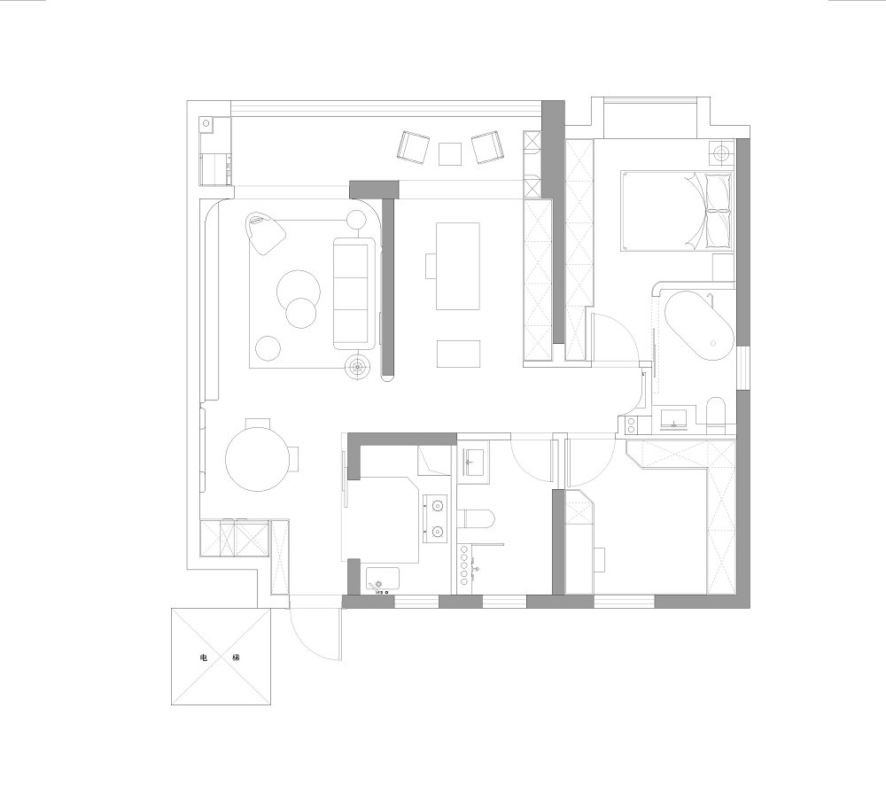
本案戶型是一個非常經典的南北通透的連廊中間戶,樓層高,南邊通風和采光效果極佳。連體大陽臺,視野寬廣,北邊靠近連廊,通風效果好??筒蛷d和臥室動靜分開,動線舒適,整體確定了兩臥室+一個開放式的多功能房的房屋結構。

入戶左手一側定制了玄關柜,直接拉到頂。黑灰色的柜門結合暖光燈帶,既方便使用又能提升空間感。底部預留置鞋位,利于出門進門時的收納。

客廳陽臺一體化,空間開敞視野寬廣,具備極佳的通風采光效果。設置落地窗+紗簾,夢幻感十足,使得空間在太陽的照射下溫馨且慵懶。

客廳采用無主燈的設計手法,使頂面更顯簡潔干凈,部分凸顯層高。通過有層次的利用光線,配合射燈+燈帶,由衷渲染出舒適生活氛圍。地面是800*800柔光磚通鋪,視覺上趨向統一。

客廳保持白色墻面的純度,利用壁燈實現很好的洗墻效果,同時讓家具軟裝的表現更為出眾?;疑贫涓裢馊茄?,靠墊抱枕充當撞色,營造出不同的色彩層次,給人的感覺清爽又自在。

客餐廳電視背景墻和過道背景,給人留下了不錯的初印象。弧形造型和暖光燈帶交相呼應,弱化現代材質帶來的冰冷感。中心位置還設置了擱板架,加上懸空地臺,裝飾收納愈加從容優雅。

連體大陽臺也有了更多用武之地,整體布置了黑色埡口,很好劃分了區域。一側規劃裝飾柜,作為空間裝飾的重要補充。另一側則是家里的洗衣晾曬區,一體設計,使用更輕便。
應徐阿姨的要求,在家里為她量身打造了一個開放式的多功能房。進門位置定制了懸浮式的造型,綠意盎然,相應擴大視覺的同時,彰顯著業主對生活的品質。

靠墻位置則嵌入了茶柜,和墻體保持同一水平面,顯得嚴絲合縫。黑灰色柜門質樸大氣,無把手設計更顯精細簡潔。整體三等分,滿足業主大量的收納需求,中間預留插排位,方便燒水烹茶。

這里還設置了一處悠然的茶室空間,各種古韻茶具悉數上桌,營造了茶香裊裊的氛圍。徐阿姨可以邀請兩三好友到家中小聚,品茶鑒花,豈不樂哉!

餐廳背景做了圓形的鏤空設計,以此豐富空間層次。將冰箱完美鑲嵌到餐邊柜,側面擴大廚房空間,讓業主充分展示廚藝。由于購買的餐桌尚未入場,倒也顯得餐廳空間空曠不少。
廚房位于進門位置,空間通透感強,且借助可拉動玻璃門實現半開放。廚房內部做了U型的櫥柜設計,形成完善的洗切炒動線。

這里沒有做老式的直角柜,而是做成鉆石柜,收納更足,拿取也方便。白色吊柜+灰色地柜,可以很有效地解決收納問題,這樣的色彩搭配同樣擴充了視覺上的空間感。

過道位置巧妙應用燈光照明,使得整個環境愈加明亮通透。墻面做了不規則的弧度設計,富含造型美,搭配墻面裝飾畫,趣味性十足。

主臥第一眼看上去非常地漂亮大氣,完全就像是一個窈窕淑女的房間,只能說徐阿姨太會追潮流啦。通過保留飄窗,設置成休憩區,加裝百葉簾后,采光更清透。

主臥墻面應用墻布+墻板的組合,實現半墻的效果,中間用暖光燈帶銜接,搭配白色布帛畫,豐富空間層次感。沒有安裝床頭,更顯簡潔,兩邊則是原木色的懸空床頭柜,易于收納且方便衛生清潔。

一般來說,床頭靠墻會設置衣柜,但這個家卻沒有這么做,而是設置了半開放式的淋浴間。衣柜則放在床尾位置,直接做成一整面,色調同墻面渾然一色,顯得干凈又清爽。

衛生間采用玻璃隔斷,搭配胡桃木的木飾面,盡顯高級感。內置的浴缸讓沐浴不在僅限在狹小的衛生間中,享受生活也不再只是一句口頭禪。
次臥設計更突顯功能性,主要是給家里小孩準備的房間。床直接打滿了柜子,利于置物。同理靠墻定制了到頂白色衣柜,和床之間保留充足距離,方便抽拉柜體。

另一側則定制了L型的到頂書桌區,一體設計,非常地簡潔美觀。整體黑白灰配色,營造出明快的居室氛圍。平時回來住的兒子孫子可以在這邊學習辦公,節省不少精力。

公共衛生間通鋪墻地一體磚,灰色搭配更顯質感。整體實現了干濕三分離的劃分,超長鏡柜直接囊括了洗漱區和馬桶區,尤其是懸空壁掛馬桶的設置,擁有極佳的體驗感。濕區用雙拉玻璃門隔開,保障了干凈衛生的洗浴環境。
世貿錦繡長江150平古典美式風格裝修效果圖
廣電蘭亭榮薈108平現代輕奢風格裝修案例欣賞
武昌府101平美式風格裝修效果圖
置頂—— 知精準報價 避裝修深坑 ——
平均七年以上的設計經驗資深設計師為您服務