魏蔚 - 首席設計師
入行時間:2009年 年 職稱:首席設計師
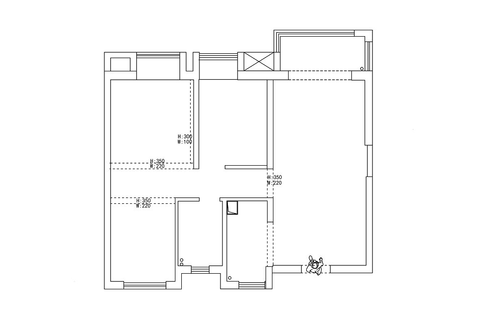
項目地址:中建鉑公館
項目面積:106㎡
項目風格:法式復古風
項目施工:山水人家裝飾
工程造價:16w

本案業主是三口之家,夫妻兩人加一個女兒。整個裝修由女主人做主,她是個非常有個性和想法的人,很有生活熱情,喜歡跳脫濃烈的色調,又鐘情于法式風格。為此全屋定調法式復古風,空間大量應用黑色、白色、紅色和綠色等,看起來非常有質感。外加色彩鮮艷的裝飾品,帶給人足夠的愉悅和舒暢感,充分彰顯了業主的生活品位。
房屋信息:三室兩廳,新房裝修。

本案原戶型的痛點在于廚房比較小,放冰箱的情況下操作臺面比較少,餐廳的面積也不大,人多的情況下用餐空間小。業主希望把餐廳、陽臺的空間盡量擴大。

在做整體設計的時候,采用了如下舉措:(1)打開陽臺空間,增加實際采光;(2)打通廚房,做成開放式,并有效連結了餐桌+島臺,相應擴大了餐廳區域,提升了空間利用率。

客廳、陽臺直接貫通,擁有絕佳的采光視野。同時做了拱形門洞的設計,愈加柔化客廳空間。正面漂亮的環形大吊燈搭配周遭的軌道燈系統,保留充足的光源,營造溫馨的氛圍。

客廳選用650*1200的木紋磚通鋪,取消了門檻石的過渡,顯得整個空間更開闊。搭配純黑色皮質沙發,盡享SPA級的舒適享受。色彩鮮艷亮麗的裝飾給人帶來更多愉悅之感,體現了業主別致獨特的品位。

客廳墻面用桔色和白色做了左右分色的處理,加上石膏線條的點綴,使得家居空間活力十足。黑色的電視柜和墻面制造了色彩上的對比,視覺效果鮮明,非常具有現代感。

陽臺位置鋪貼了一層復古小花磚,富有一定的美感。為了實現功能最大化,這里定制了到頂的白色柜體,不僅彰顯美觀性,還起到輔助收納的作用。

原本廚房餐廳不夠大,通過將墻體打通,做成開放式廚房,并有效連結了餐桌+島臺。洗衣機更是藏在島臺處,功能性更強,同時擴大了使用面積。

另一側墻面定制了到頂的黑色餐邊柜兼鞋柜,擁有豐富的儲物空間。黑色柜體和白色墻面產生了強烈的視覺沖擊,彰顯出別樣的美感。雙開門冰箱也放在同側,節省空間的同時,提高整體利用率。

餐廳區域中古風格的吊燈簡潔大氣,使得每個角落都透亮清晰。搭配餐桌+島臺,兼具功能和顏值。厚實穩重的餐桌承載著日常的一日三餐,生活的平淡和熱鬧都值得細細珍藏。

開放式的餐廚空間,給人留下了深刻的印象。L型的櫥柜設計,最大化利用到廚房邊角,同時通過細化廚房作用,很好地實現了洗切炒功能。轉身即可端盤上桌,借以減輕不少烹飪壓力。

廚房多選用鮮艷色調,展現出一個頗具情調和質感的廚房環境。墻面選用小花磚,起到點綴裝飾的效果。地面則淺淺鋪了一層黑白磚,越看越高級,無形之中彰顯出豐富的復古韻味。

過道背景墻則用綠色做了撞色搭配,相應豐富了空間色調。墻上還掛著一幅拱形的裝飾畫,更加貼合復古法式的主題。隨著過道逐步深入,抽絲剝繭,不禁讓人心潮澎湃。

主臥寬敞明亮,尤其是裝了大面積的落地玻璃,采光更為豐厚。搭配咖色窗簾,一眼望去,便覺驚艷幾分。結合地面木紋磚,給人一種大氣自然的直觀感受。

主臥墻面同樣用到綠色,加上桔色床頭的點綴,涌現蓬勃的生機力,便于營造溫馨的睡眠氛圍。復古老巴黎床簡潔優雅,又透露著一絲高級感,經典搭配組合,充分體驗不一樣的小資生活。

靠床位置則定制了L型的到頂衣柜,實際收納空間很足。整體柜子用到NEF級萬華禾箱板,觸感非常不錯。里側安裝了燈帶照明,方便日常找衣服。

主臥色彩搭配極具格調,門口多用白色,搭配灰色的衣柜,顯得簡潔素雅。再加上綠色墻面和花色床飾的組合,使人眼花繚亂,展現出格外鮮明的視覺效果。

次臥設計稍顯簡單,但同樣運用多種色彩搭配。偏灰色的窗簾搭配黑色的床體架構,顯得肅穆安靜。沒有多余的物品堆砌,純粹呈現平淡自然的生活樣貌。

衛生間把干區放在外面,很好地實現了干濕分離。干區大面積用到紅色涂料,搭配白色羽毛磚,顯得熱情大方。黑色浴室柜搭配金色框架鏡面,氣場立馬提升N個level。同時還做了磨砂玻璃的隔斷,相應保障區域穩定性。

衛生間濕區則完全不同,采用了清新的綠色調,給人的感覺非常放松。綠植花卉版畫的點綴,帶來幾縷新意。地面則通鋪小花磚,小面積點綴,效果超贊!
碧桂園泰富城45平loft混搭風格裝修效果圖
盛世江城美式輕奢風格裝修效果圖
藍光林肯公園現代極簡風格裝修效果圖
置頂—— 知精準報價 避裝修深坑 ——
平均七年以上的設計經驗資深設計師為您服務