武漢
家裝服務熱線 400-666-4637
當前位置:首頁 >裝修案例 >案例詳情

望江府118平現代風格裝修效果圖

來源:山水人家裝飾 瀏覽人數:256次 更新時間:2023-12-15

作品信息

  1. 現代 案例風格
  2. 118平方米 房屋面積
  3. 16萬 參考造價

作品詳情

項目地址:望江府

項目面積:118㎡

項目風格:現代風

項目施工:山水人家裝飾

工程造價:16w


望江府118平現代風格裝修效果圖


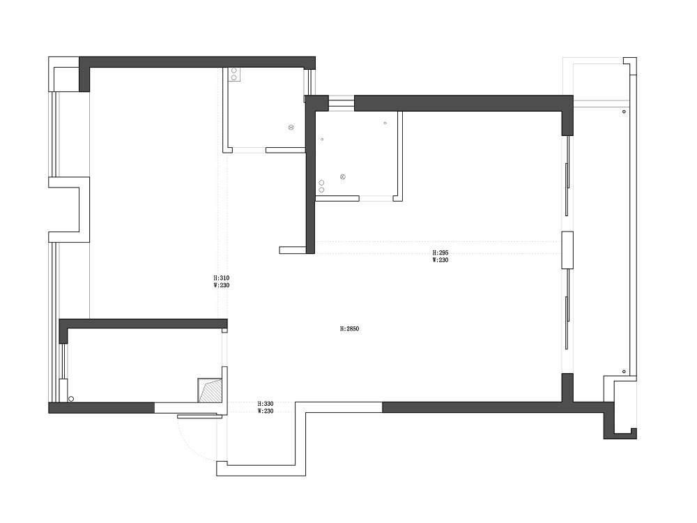
戶型解析


本案業主是做金融行業的美女小姐姐,家里是一家三口居住,她們希望家里充滿氛圍與宜居感,于是采用現代風格加以詮釋??臻g大量應用清淺色調,室內變得明亮而通透,呈現出純潔輕柔的感覺。同時選擇簡潔時尚的家具配飾,提供絕佳的舒適感,由此營造出一個高檔有氣質的生活空間。


望江府118平現代風格裝修效果圖


房屋信息:三室兩廳,新房裝修


望江府118平現代風格裝修效果圖


本案戶型方正,沒有硬傷,屬于是毛坯房裝修。根據業主實際需要,對房屋結構做出如下調整改造:(1)入戶定制玄關柜,起到基礎收納的作用;(2)客廳、主臥、陽臺之間打通,整體形成溯回動線;(3)將公主房擴大,床尾定制整排衣柜墻,增加公主房的舒適性;(4)公衛干濕分離處理,利用走道空間安置浴室柜和冰箱,提升空間利用率。


客廳


望江府118平現代風格裝修效果圖


陽臺完全融入客廳,增加整體的使用面積,視覺感也提升不少。通過選擇柔軟的棉質窗簾,以增加溫馨度和舒適感。顏色上,則是用到淺灰色和米白色,同周圍環境相協調。


望江府118平現代風格裝修效果圖


客廳的頂部做了雙眼皮吊頂,還加了相應的裝飾線條,空間在視覺上更加簡潔顯高。地面則通鋪750*1500的柔光大磚,更顯沉穩大氣。


望江府118平現代風格裝修效果圖


客廳選擇簡潔時尚的現代家具,比如琉璃藍色大象耳朵沙發,品味難得的松弛感。沒有擺放茶幾,空間更顯寬敞,四面吹起緩緩慵懶風。墻面用乳膠漆調色處理,搭配藝術畫,強化整體裝飾效果。


望江府118平現代風格裝修效果圖


電視背景墻做了裝飾造型,愈加豐富了空間層次。內嵌了電視和裝飾柜,整體給人一種優雅時尚的感覺。懸空地臺的設計,將功能性進一步發揮,更具高級調性。


餐廳


望江府118平現代風格裝修效果圖


將餐廳和客廳放在一起,合理利用到空間,營造一種舒適、不壓抑的感覺。采用客餐廳一體吊頂,使客餐廳裝修有效結合,更具空間感和整體感。


望江府118平現代風格裝修效果圖


空間照明是營造氛圍的關鍵。應用頂部吊燈提供充足照明,營造出溫馨的就餐氛圍??繅ξ恢枚ㄖ屏斯耋w,進行了黑白撞色處理,兼具美觀性。


望江府118平現代風格裝修效果圖


餐廳一側直接打造了到頂的餐邊柜,儲物功能巨大。采用白色柜面,保持整體的干凈和諧。中間做了較大的開放格,便于儲物和展示,功能性更足。


望江府118平現代風格裝修效果圖


巖板餐桌紋理大氣且不笨重,還比較耐高溫,使用場景變化多樣。整體流暢的線條極具設計感,搭配舒適餐椅,擁有絕佳的坐感。一家人坐在溫馨的餐廳里吃飯聊天,這樣的畫面真是令人期待。


廚房


望江府118平現代風格裝修效果圖


狹長的廚房采用L型的櫥柜設計,充分利用更多生活空間。臺盆區和烹飪區之間做了高低差,符合人體工學,方便業主日常烹飪。


望江府118平現代風格裝修效果圖


灰色的櫥柜讓廚房空間看起來更加干凈清爽,搭配上方白色吊柜,非常具有層次感。采用拉槽式暗把手設計,搭配淺灰色瓷磚不顯沉悶壓抑。


主臥


主臥空間寬敞大氣,源于跟客廳陽臺做了貫通,整體形成溯回動線,采光視野愈加通透。地面搭配淺色系的地磚,在光線明亮的前提下,空間顯得素雅而穩重。


望江府118平現代風格裝修效果圖


主臥墻面用乳膠漆進行調色處理,柔和感提升不少。同時還用燈條加以點綴,增加溫馨氛圍。床飾搭配簡潔大氣,提供極強的舒適度,以此保障業主極佳的睡眠質量。


望江府118平現代風格裝修效果圖


臥室靠近主衛的位置,定制了一整面的通頂衣柜,借以滿足業主衣物方面的收納需要。淺咖色柜面優雅時尚,搭配條形拉手,更顯豐富層次。


望江府118平現代風格裝修效果圖


與此同時,入戶位置打造了到頂轉角柜,增加入戶視覺延伸性。這樣的做法避免了空間浪費,還保留了流暢的使用動線,增強整體實用性。


公主房


望江府118平現代風格裝修效果圖


打掉原有小陽臺,進而實際擴大公主房的面積。地面做了部分高低差,業主可以在這邊運動休閑,享受難得的娛樂時光。整體采光也很充裕,光線格外明亮。


望江府118平現代風格裝修效果圖


房間墻面同樣用乳膠漆調色處理,凸顯恬淡自然的意蘊??看拔恢眠€設置了梳妝臺及床頭柜,作為空間的延伸,以此滿足業主化妝打扮的需要。


望江府118平現代風格裝修效果圖


傳統柜體的設計方法會是在靠床位置打造柜體,而本案則更多利用床尾空間,定制了一整面的內嵌柜體,大幅提升了空間利用率。淺色系的柜門搭配開放格設計,增添了整體趣味性。


衛生間


主臥衛生間空間雖小,但基本滿足了衛浴的各項實際需要。采用懸空浴室柜+鏡柜的組合,收納在線的同時,空間在視覺上更顯簡潔。


望江府118平現代風格裝修效果圖


衛生間內部通鋪墻地一體磚,擁有極佳的展示效果。這樣做能奠定整個衛生間基調,渲染干凈衛生的使用環境,給人的印象不會太差。


TAG標簽: 望江府 現代風格 王亞東

算一算

我家裝修需要多少錢?

173739
m2

猜你喜歡

查看更多 >>
置頂

免費報價量房

×

算一算,你家裝修要花多少錢?

—— 知精準報價 避裝修深坑 ——

您的報價已生成完畢

  • 材料費用:21000
  • 人工費用:39000
  • 設計費用:0
  • 管理費用:0
×

預約您的設計師

平均七年以上的設計經驗資深設計師為您服務

您的稱呼:
手機號碼:
裝修小區:
房屋面積:
* 為了您的權益,您的一切信息將被嚴格保密
×

預約線下參觀

您的稱呼:
手機號碼:
* 為了您的權益,您的一切信息將被嚴格保密