王成立 - 高級主任設計師
入行時間:2011 年 職稱:高級主任設計師
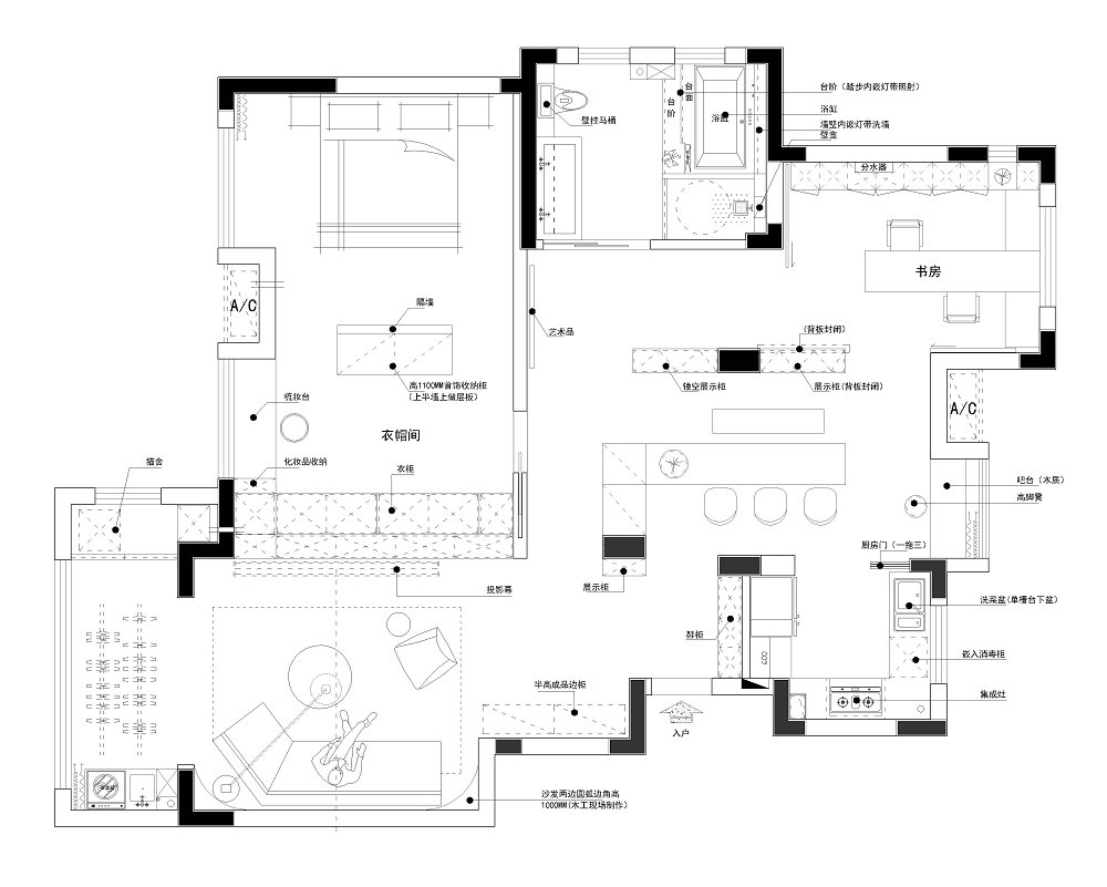
項目地址:保利清能西海岸
項目面積:126㎡
項目風格:侘寂風
項目施工:山水人家裝飾
工程造價:22w

本案業主是甜蜜的兩口之家,男才女貌,家里還養了兩只可愛的小貓。業主喜歡純粹干凈的感覺,尤其是當前侘寂風盛行,十分貼合業主心中所想。侘寂并非寂寥之美,而是沉淀了更多生活氣息與歲月感,是化繁為簡的呈現,使人內心更易歸于寧靜。為此居室大量應用大地色系,營造出質樸自然的氛圍,墻面多運用微水泥材料,空間更顯高級感。

房屋信息:四室兩廳,新房裝修。
本案戶型方正,南北通透,擁有絕佳的采光通風條件,結構改造方面變動很大,主要包括:(1)兩衛合并成一衛,并增加了浴缸;主臥做成大套房,包括衣帽間和臥室在內;(3)拆除多余墻體,將書房做成半開放式,并打造了鏤空展示柜充當隔斷;(4)進門位置多打造成品邊柜,滿足基礎收納需求;(5)中島臺與餐桌一體設計,靠窗位置設立了吧臺區;(6)陽臺位置設置了貓舍,體驗感很好。

進門一側墻面內移增加玄關,進而提升室內隱私。定制通頂玄關柜,方便行使進屋時的儲物功能。頂面局部加入了弧形邊角設計,增加層次感又讓空間更顯親和力。
將客廳和陽臺打通,空間變得愈加寬敞大氣。拱形門洞造型中和了直線帶來的僵硬感,增加了整體的柔和度。四時之景不同,皆裹藏在超大落地窗下。

客廳沒有做繁雜的吊頂設計,而是用無主燈渲染空間。大量運用大地色系,營造出沉靜自然的質感。墻面運用微水泥材料,簡單而不失美觀。

客廳的家具頗具格調,色調的融入極盡和諧。米色弧形布藝沙發,搭配黑色圓形茶幾,讓整體視覺效果簡而不空。尤其是落地燈的鋪墊,空間光源變得更加充盈。

電視背景墻定制了整面儲物柜,提升空間收納力。柜體局部鏤空設計,避免厚重感的同時,兼具美觀展示性。柜面光滑整潔,摸上去手感甚佳。值得注意的是,墻面上沿內置了投影幕布,平時看電視放下來即可。

偌大的客廳空間也成為了貓兒的游樂園,它們可以盡情地嬉戲玩鬧,或小憩、或舔毛,獨享屬于它們的歡喜自由。

由于重新規劃了餐廚空間,整體使用面積大幅增加,從而改變原有餐廚緊湊的格局。墻面藝術漆的選用,恰到好處地點綴了空間,平添安定和諧的生活意境。

餐廳區域靠墻打造了過道柜,起到輔助收納的效用。同步定制了餐邊柜,白色柜面+玻璃柜門,多種搭配更顯干凈齊整。中間部位做了大批量的方格設計,專門放置一些精品酒類,富含濃郁的格調之美。

中島臺與木質餐桌一體設計,最大化利用到空間。原木蔓延的質感,蘊含著歲月磨刻后的緲緲木香。憑借著柔和色調及擺件造型,打造出一個優雅清麗的用餐環境。

在此基礎上,在靠窗位置增設了一處休息區。懸空桌面搭配高腳椅,承載著淡然自若的氣息。無論是高談闊論還是品茗自賞,都別有一番風味。

廚房做成封閉式,讓空間得到最大化利用。U型的烹飪動線,極大程度滿足業主的使用需要。由進門開始沿著一個方向,將廚房劃分為準備、清洗、烹飪和儲存等區域,并根據具體操作配備了相應的餐具廚具。

廚房整體以咖色調為主,給人以明亮大方的感受。咖色吊柜搭配地柜,非常有層次感,且儲物空間很足。另一側墻面內置了雙開門冰箱,實際使用更加便利。在此基礎上,還定制了抽拉式柜體,存放著各種調料用品,有效利用空間,又不易變形。

為滿足業主生活休閑方面的需求,特意將兩間臥室合并成一個大套房,讓主臥有了衣帽間區域,由此一來很好地提升了生活品質。

臥室做了較大的開窗,可以讓更多光線自由地進入室內,采光更顯通透。搭配懸浮吊頂+無主燈,與臥室造型相得益彰,顯著增加了空間層次。

主臥大面積運用微水泥材料,營造高級感。搭配吊燈等輔助光源,渲染了溫馨甜美的就寢氛圍。整體布置符合業主的審美,成為整個家的風格延伸。

房間內部打造了一面隔墻,充當空間隔斷,借以保障了一定的隱私性。騰出來的位置擺放了經典掛衣架,讓自己的衣物觸手可及。

靠墻定制了一整面通頂衣柜,最大限度地節省室內空間。造型方面有著極強的可塑性,咖色柜面搭配黑色拉手,現代感十足。

靠窗位置還定制了女業主專屬的梳妝臺,充分滿足業主愛美的心思。側面內置高柜,起到化妝品收納的功能。平時業主也可以在這邊辦公學習,簡直功能多變。
將原房間墻面全部拆掉,改造成半開放式書房,緊密連接著客餐廳。同時重新安排了空間動線,讓實際居家生活變得更便捷。墻面一側還設置了端景造型,更顯格調。

空間轉而用鏤空展示柜充當門面,有效地劃分了區域范圍。同時保有充足的儲物空間,相應緩解了收納壓力。憑借玻璃隔斷,保持了書房的獨立性,擁有開放式的視覺效果。

書房區域以大面積書柜為背景,有一種窗明幾凈的既視感??臻g純粹以閱讀休閑為主,沒有設置書桌,而是用到舒適沙發,邊喝茶邊看書,趣味性滿滿。
衛生間采用了干濕分離的設計手法,方便一家人使用。尤其是運用到雙盆浴室柜設計,極大程度提升洗漱效率。旁邊的馬桶區設置有高臺,方便放置物品。壁掛馬桶不沾地,便于日常衛生清潔,保障干凈使用環境。

衛生間墻面和地面采用同款瓷磚,仿自然石材的肌理多了幾分侘寂之美。濕區同樣做了精細化的布局設計,分成洗浴區和浴缸兩部分。玻璃門隔斷,加上壁龕的設計,讓洗浴區更簡單實用。

浴缸的布置極具儀式感,采用臺階強化設計概念,踏步更是內嵌了照射燈帶。后面的墻壁內嵌有洗墻燈,由此營造浪漫氛圍感。
碧桂園蜜柚loft公寓現代風格裝修效果圖
旭輝江悅府120平奶油風格裝修效果圖
桂苑小區145平簡歐風格裝修效果圖
置頂—— 知精準報價 避裝修深坑 ——
平均七年以上的設計經驗資深設計師為您服務