侯海濤 - 首席設計師
入行時間:2010 年 職稱:首席設計師
項目地址:香江花園
項目面積:300㎡
項目風格:現代風
項目施工:山水人家裝飾
工程造價:45w

本案來自香江花園300㎡的頂層復式,整體裝修以現代風格為基調,在軟裝細節加入石材裝飾,突出空間的場域感,讓視覺更開闊明亮,由此呈現出一個舒適優雅的高檔居住空間。其中,軟裝設計主創拋開冗余的裝飾堆砌,注重環境與人的貫通尺度,以簡單樸素的語言和利落干凈的線條,構建屬于現代復式的空間秩序。


房屋信息:復式,新房裝修。


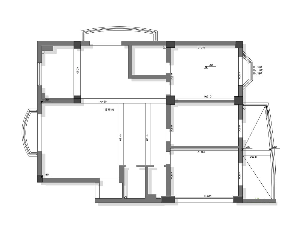
本案戶型方正,南北通透,作為復式結構的一樓,格局相當寬敞。主要的調整在于:(1)客廳上方挑空,視覺上更加開闊;(2)客餐廳一體,形成大橫廳格局,客廳與餐廳相互延續并貫通,打開了整體視覺;(3)將主臥設置在一層,調整臥室門位置,創造更為合理的洄游動線;(4)將原有廚房位置改到陽臺,空間變得開闊又敞亮。
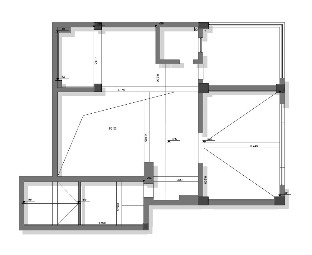
二樓有很多待擴建的結構部分,主要包括:(1)考慮到家庭成員的生活需求,將挑空部分做成隔層,形成練琴區和衣帽間;(2)利用頂層優勢,隔出一間客房及雜物間,露臺的利用率也發揮到極致;(3)二樓原屬于異型結構,借此打造出完美起居廳,引入泡泡瑪特展示柜,休閑放松一應俱全。
入戶正對面打造了到頂鞋柜,膚感膜柜面質地優良。中間留空處采用石材裝飾,上面還安裝了移動插排,整體功能強大。底部留出足夠空隙,用以放置日常拖鞋,回到家里可以輕裝上陣。

進門口的位置還設計了一個拱形門洞,愈加柔化空間。搭配時尚掛鐘及擺件,使簡單的設計體現出難能可貴的高級。

客廳整體寬敞大氣,窗邊的紗簾在自然光線的烘托下,顯得意境悠遠,通過強化了自然紋理的細節,讓空間更具韻律感。

客廳上方挑空,整個公共區域顯得高挑又大氣,視覺上也愈加開闊。而地面通鋪大塊灰色地磚,凸顯出豐富質感,充分烘托著空間的整體氛圍。

家具的選擇上整體以淺色為主,形態簡單,同時富有細節。莫蘭迪綠的沙發和白色石材的搭配,讓家充滿了靈動與生機。圓形茶幾和米色腳踏造型低矮,但卻更能讓人放松下來,卸下一身的疲憊,享受難得的溫情。

電視背景墻中間用巖板拉到頂,強化立面造型。兩邊留空做裝飾,自帶大宅氣息,勾勒出層次豐富的視覺空間。底部還采用了3D壁爐設計,如同真實升騰的火焰,讓人眼前一亮。

挑空的設計,更顯氣勢。從二樓往下瞧,能夠透徹地查看客廳的整體樣貌,使人在精神上感覺到舒緩、放松,有效釋放壓力。水晶吊燈高高懸掛,奠定優雅基調。
大橫廳借助家具與頂面燈飾,分隔出客餐廳場域。天花做成多級吊頂的造型,實現典雅端莊的高級氛圍感??蛷d與餐廳相互延續并貫通,打開了整體視覺,光線和空氣得以自由地穿插。

餐廳采用定制島臺+成品餐桌的組合,這樣空間的利用會更加靈活,整體質感趨于統一。有時業主趕時間,需要快速用餐時可使用島臺;有時需要細細品味,相對較高的島臺也可提升用餐的體驗感。

餐廳的餐桌選用木質腳架+巖板臺面的設計,干凈還易打理。搭配白色餐椅,為業主布置出一個實用優雅的用餐區域。

樓梯底下做抬高式設計,合理引入植物造景。滿屏綠色格外鮮亮,相應放大空間觀感。陽光透過玻璃勾勒出具體的形影與色彩,展現出空間豐富的層次感,轉折自然的秩序性。

將原有廚房位置改到陽臺,空間便覺開闊又敞亮。廚房整體做成U型格局,最大化利用空間,收納功能更強勁。同時實現洗滌區、烹飪區及操作臺等多功能分區,多人準備餐食也不受影響。

櫥柜和餐邊柜統一采用無把手柜門,整體呈現光滑潔亮的狀態。預留空間嵌入了冰箱和蒸烤箱,使用更方便。廚房臺面引入寶格麗巖板,清冷石材+自然紋路,盡顯高級奢貴。

大理石材質的疊式樓梯,高級感十足。極簡的樓梯設計,搭配金屬線條及玻璃隔斷,更能突出空間的場域感,讓視覺更顯開闊明亮。

上了樓梯后的二樓過道,灰色地磚鋪上地面。結合側邊樓梯墻邊的裝飾物與吊燈呼應,讓整個過道顯得文雅高級。

將主臥設置在一層,加上調整臥室門的位置,形成更為合理的洄游動線。沉穩和寧靜是臥室的主基調,以溫潤的床頭背景凸顯室內的質感,借助簡潔的燈光營造舒適的睡眠時光。

主臥床頭墻以護墻板為背景,點綴部分大理石材質,強化了空間基調。布置一張奶油色皮藝床,搭配席夢思床單,讓臥室空間顯得優雅舒適。

衣柜區域做了一個雙排型的入墻式衣柜,以此收納各類日用衣物,為業主打造出一個輕松優雅的衣帽間功能區域;咖色衣柜+黑色玻璃柜,讓空間顯得簡約時尚。最里側則是房間主衛,更為細致地保障了私密性。

臥室專門保留飄窗,有利于進行大面積的玻璃采光,使得室內空間在視覺上得以延伸。寬敞的窗臺變成了更實用的空間,閑暇的時候可以坐在上面休息看書。

臥室背景墻滿刷淺咖色乳膠漆,呈現恬淡自然的居室氛圍。同時選用同款色系的衣柜,搭配金色條紋拉手,進一步增強空間的統一性。

女孩房整體配色以粉色系為主,流露出一派自然而慵懶的率性,整個空間變得舒適又舒心。尤其是衣柜處的色彩搭配很巧妙,柔和過度的同時不失甜美氣息。

房間主體應用粉色窗簾+紗簾,顯得實用而又活潑??臻g合理規劃出書桌區,擺上書籍與裝飾品,更顯得文藝精致。

陽臺空間格外寬敞,過道非常之長,地面通鋪仿木紋磚,更顯通透自然。陽臺端頭被設置成洗衣區和儲物區,后期會把家具電器統一安排上。如此嵌入式的設計更高效地利用到角落空間,空間采光和空間規整度均達到最佳狀態。

二樓閣樓區域也被充分利用,被改造成一個起居室。天花采光格外優越,當清晨的第一束陽光射向床頭一側,那便是天然的鬧鐘,讓人感到溫和舒適。
二樓原屬于異型結構,設計師在硬裝設計中采用顛覆性的修飾手法,致使空間隔而不斷。光線肆意穿透,視野也可無障礙穿梭,為業主創造出一個自由隨性的生活空間。

屋瓴位置地面略有抬升,跟周圍區域互有分隔。這對于業主而言,成為一處偷閑的妙地。無論是做運動、做瑜伽還是睡懶覺都非常合適。恰逢美麗好時光,享受悠閑生活的魅力。

靠墻位置打造了一整面的手辦墻,從高到低排列,格外壯觀。柜體內置暖光燈帶,各種收藏精品翹首以待。正面還擺設了一張方桌,專門展示業主的珍藏——“泡泡瑪特”。毫不夸張地說,這就是一個泡泡瑪特展示屋。

鑒于多種材質和裝飾品的融入,使得整個空間愈加浪漫獨特。在滿足書房功能的前提下,還配備了超大幕布,休閑觀影看劇時間也格外愜意。

露臺區域整個用美式圍欄進行包裹,修飾美觀的同時,有效防止意外事件的發生。地面通鋪戶外木地板,就著彩陽釋放出蓬勃向上的力量。平時也可以邀請好友到這里燒烤聚餐,舒適又安逸。
走進一個明亮整潔的衛生間,會讓人感到一定程度的放松。墻地一體的通鋪磚,讓空間更顯通透。浴室的合理規劃,鉆石淋浴間的應用,則將現代大氣的風格貫徹到極致。

主衛選用大單盆的設計,使用更為輕便。為了保持背景的純粹性,使用基礎的巖板和玻璃進行搭配,無斧鑿痕的設計足以窺見業主對于高品質生活的追求。
綠地國際理想城現代輕奢風格裝修效果圖
美林青城110平簡美風格裝修效果圖
深業泰云府128平美式風格裝修效果圖
置頂—— 知精準報價 避裝修深坑 ——
平均七年以上的設計經驗資深設計師為您服務