陳磊 - 首席設計師
入行時間:2007 年 職稱:首席設計師
項目地址:紐賓凱錦城
項目面積:280㎡
項目風格:新中式風
項目施工:山水人家裝飾
工程造價:60w

本案地址位于漢陽四新片區,業主是四口之家,包括一兒一女。業主從事工程行業,同時開了一家茶莊,他本身也是愛茶之人,且有著很深的中式情節。諸多要素早已具備,這個充滿新中式元素的新家應運而生……整體設計以紅木本色為主調,加入大理石瓷磚以及形式山水畫的石材搭配,這樣既有中式的韻味,又不失現代感。

房屋信息:四室三廳,新房裝修。

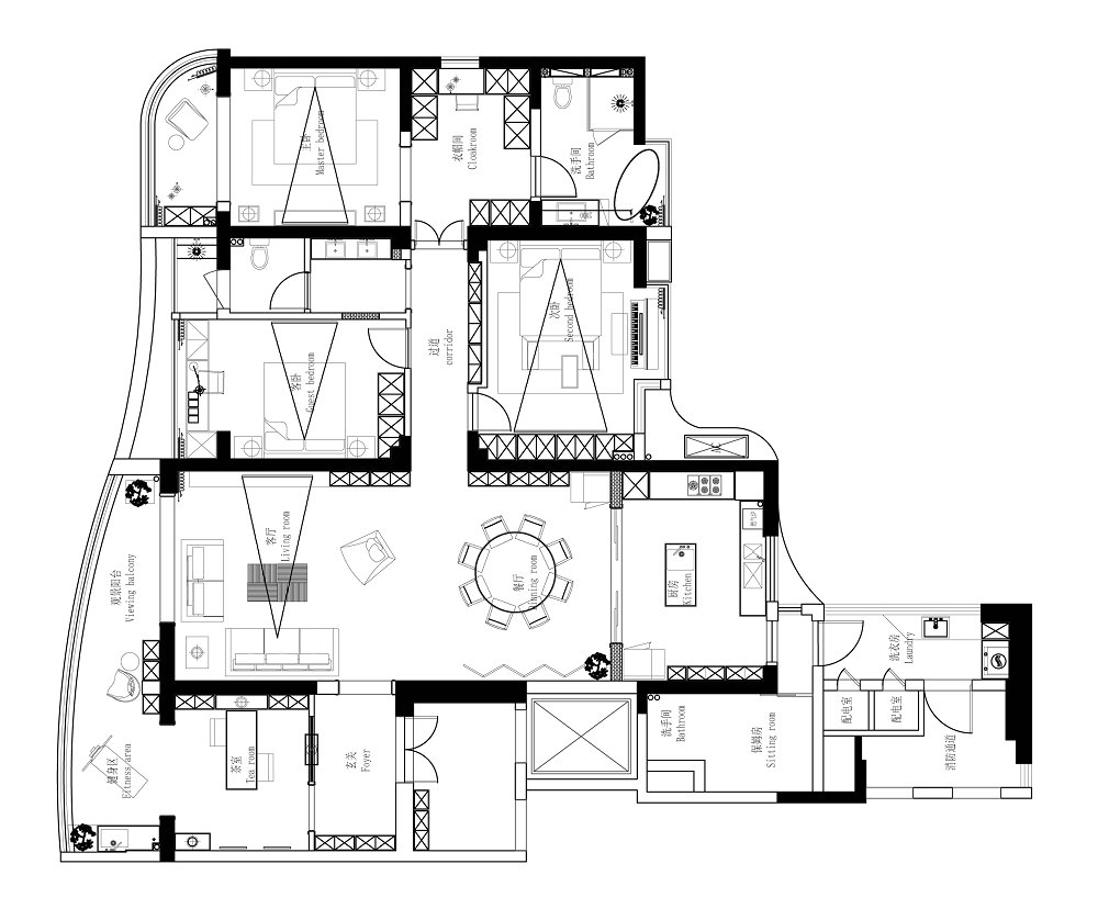
本案戶型方正,南北通透,且擁有優越的采光通風條件。房屋用途為改善居住型,主要改造點也多以業主的生活訴求為主,尤其是全房改造成了三個大套房的設計。每個房間都有獨立的衣帽間,有獨立的自己活動空間(書桌、梳妝臺、按摩椅等),按不同居住人群獨立設計功能需求。

打開古樸大氣的房門,來到中式風格濃厚的新家。側面設置了通頂玄關柜,整體保留充裕的儲物面積。室內的清新之氣由實木鏤空屏風引導流通,它是空間區域的鏈接與分隔,讓內外的景象框成兩幅畫面,美好而靜謐。

客廳中正大氣,開放式的空間布局融入更多自然清新、具有現代感的元素,和中式綿綿的意韻相融合,無聲渲染著幽靜的生活氛圍??臻g色調素雅,諸多景觀清朗又秀氣。

客廳吊頂石膏線條與裝飾線條交錯,加上適當的留白,給人一種寬敞大氣的感覺。公共區域地面采用白色大理石紋理,并勾勒了中式古典線條,給人渾然一體的視覺感。

空間采用實木家具,家具工藝看上去十分古典,將整個新中式風格展現得淋漓盡致。家具憑借其周正的擺設布局及實木雕刻的中式紋樣,深刻詮釋著中式設計的意境方圓。

電視背景墻的寫意山水畫,涌現一股磅礴大氣的意境。搭配木飾面及各種擺件造型,整體布局端莊陳雅,給人留下深刻的印象。

餐廳的設計風格意在簡雅,紅木色作為點綴,讓餐廳的氣氛更加舒適、層次感更豐富。白色石膏吊頂憑借造型設計裝飾出輕貴之感,典雅吊燈同樣中和著空間的挑高。

餐廳側面直接打了一面實木定制柜,儲物性能極強。除去開放格里展示的各類精美裝飾品外,玻璃展柜后還收藏了各種珍品酒類,顯得高端上檔次。

餐廳區域還加入了字畫元素,同時將佛堂搬到了家里。“?!弊指裢庑涯?,搭配大象雕像使整體造型更加清爽休閑,既彰顯業主的底蘊與愛好,又有溫馨舒適的氣息。

寬敞的餐廳布局,動線優越,四通八達。因為家中時常邀請好友做客,所以買的是實木大圓桌。餐廳家具的色彩保持沉穩的木色,大家和和睦睦地圍在一起吃飯聊天,談天說地。

餐廳空間也格外地大,首先是用四聯動推拉門進行日常的維護隔斷,保障了相對封閉的烹飪環境。其次是在廚房中央增設了島臺,便于端盤上菜及儲存物品,能更好地詮釋優良烹飪動線。

廚房櫥柜布局呈L型,相應配置了水槽和灶具,臺面保持同一高度,家里人使用起來方便且舒適。柜面用到木色柜門+金屬線條的組合,氣質俱佳,整體造型大氣有牌面。

廚房空間寬敞整潔,整體布置凸顯細節。因為外面還有一間洗衣房,臺盆區域顯得格外敞亮,擁有極佳的采光條件。對于業主而言,保持一個良好的烹飪心情相當關鍵。

廚房設計在保障功能的同時,在美感的追求上也更加嚴格。木色吊柜搭配同色系地柜,整體色調更加多元平衡,愈加強調了中式廚房的干凈整潔。

走廊設計給人一種古色古香的感覺,天花做了豐富的吊頂造型,十分具有傳統韻味。為實現更多的儲物需求,甚至在尾部乃至中間部位設置了實木定制柜,兼具美觀與實用性。

主臥滿鋪卡斯摩紅木地板,重塑穩重踏實的生活境界。搭配精美造型的吊頂設計,加之吊燈點綴,多了些許光影溫馨。結合部分小陽臺區域,采光達到最佳狀態,不禁讓人心生舒坦。

主臥背景墻通過應用清新花卉壁紙增強居室空靈感。新中式床頭舒適而顯得小巧,搭配褐木色床頭柜,彰顯非凡氣韻。藍色床品的融入,則給整體注入了時尚氣息,讓人享受中式沉靜和現代含蓄之美。

床尾背景墻用中式線條實木勾邊,承接起空間的寬敞大氣。往里面走,便可以來到主臥的衣帽間,褐木色衣柜以現代實用設計增加收納區,借以滿足業主的儲物需要,最里面則是主臥衛生間。

小陽臺區域加大變得寬松,巧妙地變為主臥的休閑區。且增加了休息放松的按摩椅,更有利于業主的身心健康,讓生活更富品質。

女孩房實際上改造成大套房的樣式,里面幾乎是應有盡有。整體以白色和木調為主,搭配大面積的玻璃采光,呈現明亮通透的視覺觀感。

床尾銜接了一整面衣柜墻,造型精美別致。稍加點綴的柜門設計,顯著提升了衣柜的存在感,完美契合了女孩房的精致基調??看拔恢眠€合理布置出梳妝臺,以此滿足女孩的個性需求。

男孩正處于考試學習的關鍵時期,房間布局規劃稍顯簡潔,主要涵蓋休息與學習功能??看皶来钆淇繅Χㄖ频母褡訒?,充分展現孩子優良的學習生活環境,有章法的空間劃分,對于培養孩子的興趣愛好也有著極大幫助。

房間背景墻大量應用山水壁畫,渲染了濃郁的書生意氣。搭配古樸造型的床頭床飾,顯得氣韻非凡。轉角衣柜更貼近實用性,儲物、展示兩不耽誤。

書房借助中式畫及各類中式書柜、擺件,來體現古調新意。桌上的毛筆和攤開的書法作品則將記憶拉回到傳統文化的生活中,方便業主修身養性。同時利用大片實木鏤空屏風進行隔斷,營造出柔和感,居室變得愈加岑靜。

書房設立的目的,用以平時的辦公交談。書桌書椅應用紅木材質,分量與質感并重。后方則是書架展示柜,可將很多物件收納其中,起到美觀裝飾的效果。

除此之外,靠窗位置還設置了一個品茗區。喝茶不但是一種味道,更多的是一種狀態和心情。整體以假石造型格外矚目,自帶古色古香的韻味。后方打造到頂柜體,用以燒水及儲存茶罐。在這里品茗幽香,享受片刻的寧靜安逸。
走進一個明亮整潔的衛生間,會使人有松弛愉快的體驗。尤其是在木調的加持下,空間更顯清新自然。墻地一體的通鋪磚,讓空間更顯通透。

在滿足衛生間干濕分離的前提下,更好規劃出馬桶、淋浴區及浴缸位置,彼此之間互不影響,空間功能性也大幅提升。墻面更是實現了大面積的壁龕設計,愈加方便衛浴生活。
保利城現代風格硬裝效果圖
復地東湖國際130平美式風格裝修效果圖
花房姑娘100平美式風格完工案例
置頂—— 知精準報價 避裝修深坑 ——
平均七年以上的設計經驗資深設計師為您服務